Atwell Martin says ..
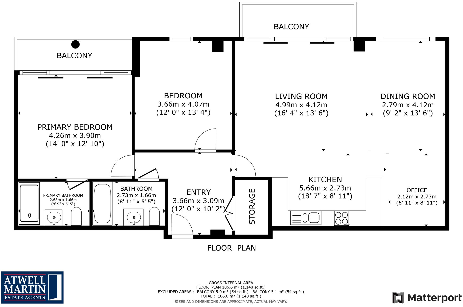
Leeward House - urban living meets waterside in contemporary apartments. 4th floor premium unit includes 2 west-facing balconies with views to Mount Edgcumbe & Tamar estuary. Communal entrance, open living area, U-shaped kitchen, 2 double bedrooms (1 en-suite), 2 parking spaces.
Property Oracle says ..
Therefore, we give this property 6 / 10. *Disclaimer: This is our option and does constitute a recommendation or financial advice. Do your own research. *
- Price
- 7
- Condition
- 9
- Location
- 8
- Land
- 3
- Bedrooms
- 2
- Bathrooms
- 2
- Sqft (est)
- 1,131.44
The heatmap indicates the level of crime in the area. The color of the heatmap indicates the crime severity and recency.
Metrics Year-on-Year
- Average area value
- 177,475.00 £Decreased by 2.93 %
- Est sale value
- 221,762.24 £Decreased by 10.50 %
- Average area rental value
- 1,174.00 £/moIncreased by 51.48 %
- Est letting value
- 1,131.44 £/mo
- Est rental Yield
- 7.94 %Increased by 55.99 %
- Crime Rate
- 0.00 %
from 182,830.00 £
from 247,785.36 £
from 775.00 £/mo
from 0.00 £/mo
from 5.09 %
from 0.00 %
Agent Activity
Atwell Martin created the listing.
Nearby Schools
| Name | Type | Ofsted | Distance |
|---|---|---|---|
| City College Plymouth | Further Education | Good | 0.73 KM |
| St Joseph'S Catholic Primary School | Academy Converter | Good | 0.80 KM |
| Green Ark Children'S Centre | Children's Centre | 0.87 KM | |
| Mount Wise Community Primary School | Academy Converter | 0.91 KM | |
| High Street Primary Academy | Academy Sponsor Led | Serious Weaknesses | 0.99 KM |
Images
Nearby Streets
| Name | Average Price | Average Sqft | Distance |
|---|---|---|---|
| Cumberland Street | £ 0 | 0 | 0.00 KM |
| Kings Road | £ 0 | 0 | 0.00 KM |
| Ker St Ope | £ 0 | 0 | 0.00 KM |
| Keyes Close | £ 0 | 0 | 0.00 KM |
| Bennett Street | £ 0 | 0 | 0.00 KM |
Nearby Transport
| Name | NLC | TLC | Distance |
|---|---|---|---|
| Devonport | 3579 | DPT | 1.25 KM |
| Dockyard (Devonport) | 3588 | DOC | 1.81 KM |
| Keyham | 3571 | KEY | 2.76 KM |
| Plymouth | 3580 | PLY | 3.06 KM |
| St Budeaux Ferry Road | 3590 | SBF | 4.26 KM |
Nearby Listings
| Address | Price | Type | Score | Distance |
|---|---|---|---|---|
| Discovery Road, Plymouth, PL1 | £ 350,000 | BUY | 7 / 10 | 0.00 KM |
| Discovery Road, Mount Wise | £ 395,000 | BUY | 6 / 10 | 0.00 KM |
| Discovery Road, Plymouth | £ 200,000 | BUY | Unknown | 0.00 KM |
| Mount Wise, Plymouth | £ 575,000 | BUY | Unknown | 0.02 KM |
| Mount Wise, Plymouth | £ 1,200,000 | BUY | 7 / 10 | 0.02 KM |
Nearby Properties
| Address | Price | Distance |
|---|---|---|
| 74 Discovery Road | £ 170,000 | 0.05 KM |
| 44 Discovery Road | £ 200,000 | 0.05 KM |
| 70 Discovery Road | £ 170,000 | 0.05 KM |
| 60 Discovery Road | £ 190,000 | 0.05 KM |
| 58 Discovery Road | £ 190,000 | 0.05 KM |