Heath Street, Burnley
By E & M Property Solutions
£ 94,995
Reviews
2 out of 5 stars
E & M Property Solutions says ..
Looking for a hassle-free investment in Burnley? Look no further! This fully tenanted HMO (House in Multiple Occupation) is ready to be your next lucrative venture. Location: Situated close to all local amenities and main transport links, convenience is at your doorstep. Propert...
Property Oracle says ..
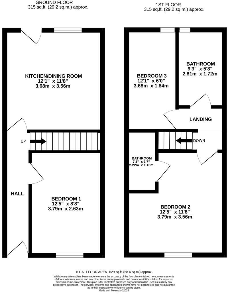
This three-bedroom terraced house in Burnley, Lancashire, is listed for £94,995. The property is described as a fully tenanted HMO. The provided photos showcase a recently modernised kitchen and bathroom. The kitchen features modern cabinetry, appliances, and laminate flooring. The bathroom is also contemporary and clean. The hallway is neat and tidy. The external photo displays a typical terraced house on Heath Street, indicating its position in a row of similar properties. However, the property appears to lack a garden. The proximity to several schools including Heasandford Primary School, Rawdhatul Uloom, and Olive High School (all with good Ofsted ratings) within close proximity, makes this an appealing investment property, especially when considering the proximity to Burnley Central Train Station making it convenient for transportation. The fact that it’s a tenanted HMO means the potential for income is high. However, further investigation into the property’s condition beyond the limited photos (e.g., structural integrity, heating systems etc) and a detailed analysis of the rental income potential for the HMO would help verify its value. Further investigation is also required to properly calculate the average price per sqft, and provide a more accurate assessment. The lack of land (no garden) is a significant drawback. Ultimately, this property presents a potentially profitable investment opportunity, but the asking price needs careful consideration considering comparable properties on nearby streets which are listed at a lower price point.
Therefore, we give this property 5 / 10. *Disclaimer: This is our option and does constitute a recommendation or financial advice. Do your own research. *
- Price
- 6
- Condition
- 7
- Location
- 7
- Land
- 1
- Bedrooms
- 3
- Bathrooms
- 1
- Sqft (est)
- 629.00
The heatmap indicates the level of crime in the area. The color of the heatmap indicates the crime severity and recency.
Metrics Year-on-Year
- Average area value
- 67,990.00 £Decreased by 33.86 %
- Est sale value
- 64,787.00 £Unchanged by 0.00 %
- Average area rental value
- 577.00 £/moIncreased by 76.45 %
- Est letting value
- 0.00 £/mo
- Est rental Yield
- 10.18 %Increased by 166.49 %
- Crime Rate
- 15.00 %Unchanged by 0.00 %
Agent Activity
E & M Property Solutions created the listing.
Nearby Schools
| Name | Type | Ofsted | Distance |
|---|---|---|---|
| Heasandford Primary School | Community School | Good | 0.39 KM |
| Rawdhatul Uloom | Other Independent School | Good | 0.53 KM |
| Olive High | Other Independent School | Good | 0.67 KM |
| Reedley Hallows Children'S Centre | Children's Centre | 0.74 KM | |
| Holly Grove School | Community Special School | Outstanding | 0.74 KM |
Images
Nearby Streets
| Name | Average Price | Average Sqft | Distance |
|---|---|---|---|
| Waterbarn Street | £ 0 | 0 | 0.00 KM |
| Browhead Road | £ 115,000 | 0 | 0.00 KM |
| Saint Georges Square | £ 0 | 0 | 0.00 KM |
| Saint Cuthbert Street | £ 0 | 0 | 0.00 KM |
| Boundary Street | £ 84,995 | 0 | 0.00 KM |
Nearby Transport
| Name | NLC | TLC | Distance |
|---|---|---|---|
| Burnley Central | 2550 | BNC | 1.61 KM |
| Brierfield | 2554 | BRF | 2.48 KM |
| Burnley Manchester Road | 2549 | BYM | 2.57 KM |
| Burnley Barracks | 2743 | BUB | 3.03 KM |
| Nelson | 2565 | NEL | 4.25 KM |
Nearby Listings
| Address | Price | Type | Score | Distance |
|---|---|---|---|---|
| Heath Street, Burnley | £ 94,995 | BUY | 5 / 10 | 0.00 KM |
| 19 Shackleton Street, Burnley, Lancashire, BB10 3BJ | £ 55,000 | BUY | Unknown | 0.10 KM |
| 5 Rylands Street, Burnley, Lancashire, BB10 1RG | £ 65,000 | BUY | 5 / 10 | 0.11 KM |
| 5 Rylands Street, Burnley, Lancashire, BB10 1RG | £ 60,000 | BUY | 5 / 10 | 0.11 KM |
| Ribblesdale, Smithyfield Avenue, Worsthorne | £ 395,000 | BUY | Unknown | 0.14 KM |
Nearby Properties
| Address | Price | Distance |
|---|---|---|
| 66 Heath Street | £ 31,000 | 0.01 KM |
| 32 Heath Street | £ 32,000 | 0.01 KM |
| 44 Heath Street | £ 38,000 | 0.01 KM |
| 64 Heath Street | £ 59,000 | 0.01 KM |
| 42 Heath Street | £ 61,000 | 0.01 KM |