Iconic says ..
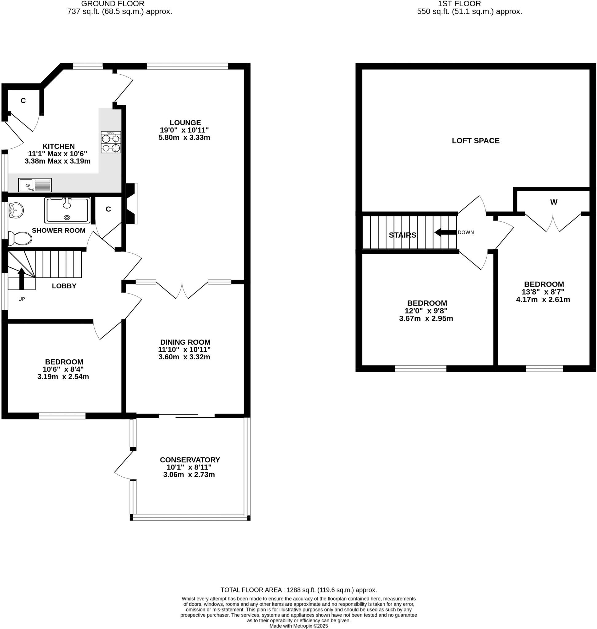
***OFFERED WITH NO CHAIN*** Iconic estate agents are pleased to offer for sale, this well-presented three-bedroom semi-detached chalet which is ideally located close to local schools, shops and amenities. The property boasts accommodation which comprises a fitted kitchen with a range of wall and ...
Property Oracle says ..
This is a 3-bedroom semi-detached property located in Hellesdon, Norwich. It features a bathroom, a garden with a shed, and a garage. The property is conveniently located near schools and transportation links. While the property is in reasonable condition, some areas could benefit from modernisation. The asking price of £270,000 appears competitive compared to the average property price in the area.
Therefore, we give this property 6 / 10. *Disclaimer: This is our option and does constitute a recommendation or financial advice. Do your own research. *
- Price
- 7
- Condition
- 6
- Location
- 7
- Land
- 7
- Bedrooms
- 3
- Bathrooms
- 1
- Sqft (est)
- 1,288.00
The heatmap indicates the level of crime in the area. The color of the heatmap indicates the crime severity and recency.
Metrics Year-on-Year
- Average area value
- 417,969.00 £Increased by 36.61 %
- Est sale value
- 481,712.00 £Increased by 1.91 %
- Average area rental value
- 1,251.00 £/moIncreased by 48.05 %
- Est letting value
- 1,288.00 £/moUnchanged by 0.00 %
- Est rental Yield
- 3.59 %Increased by 8.46 %
- Crime Rate
- 5.00 %Unchanged by 0.00 %
Agent Activity
Iconic created the listing.
Nearby Schools
| Name | Type | Ofsted | Distance |
|---|---|---|---|
| Arden Grove Infant And Nursery School | Academy Converter | Outstanding | 0.65 KM |
| Firside Junior School | Academy Converter | Good | 0.82 KM |
| Kinsale Infant School | Community School | Good | 0.91 KM |
| Kinsale Junior School | Academy Converter | 0.91 KM | |
| Hellesdon High School | Academy Converter | Good | 1.12 KM |
Images
Nearby Streets
| Name | Average Price | Average Sqft | Distance |
|---|---|---|---|
| Holt Road | £ 0 | 0 | 0.00 KM |
| Saint Andrews Road | £ 335,000 | 0 | 0.00 KM |
| Shrub Lane | £ 290,000 | 0 | 0.00 KM |
| Oak Tree Lane | £ 0 | 0 | 0.00 KM |
| Heath Close | £ 325,000 | 0 | 0.00 KM |
Nearby Transport
| Name | NLC | TLC | Distance |
|---|---|---|---|
| Norwich | 7309 | NRW | 6.73 KM |
Nearby Listings
| Address | Price | Type | Score | Distance |
|---|---|---|---|---|
| Saracen Road, Hellesdon, Norwich | £ 270,000 | BUY | 6 / 10 | 0.00 KM |
| Saracen Road, Norwich | £ 200,000 | BUY | 6 / 10 | 0.01 KM |
| Saracen Road, Hellesdon, Norwich, Norfolk, NR6 | £ 230,000 | BUY | 6 / 10 | 0.05 KM |
| Berrington Road, NORWICH | £ 140,000 | BUY | 6 / 10 | 0.09 KM |
| Berrington Road, Hellesdon, Norwich | £ 270,000 | BUY | Unknown | 0.09 KM |
Nearby Properties
| Address | Price | Distance |
|---|---|---|
| 7 Saracen Road | £ 149,995 | 0.01 KM |
| 21 Saracen Road | £ 246,000 | 0.01 KM |
| 19 Saracen Road | £ 175,000 | 0.01 KM |
| 1 Saracen Road | £ 315,000 | 0.01 KM |
| 23 Saracen Road | £ 230,000 | 0.01 KM |