Henry Adams says ..
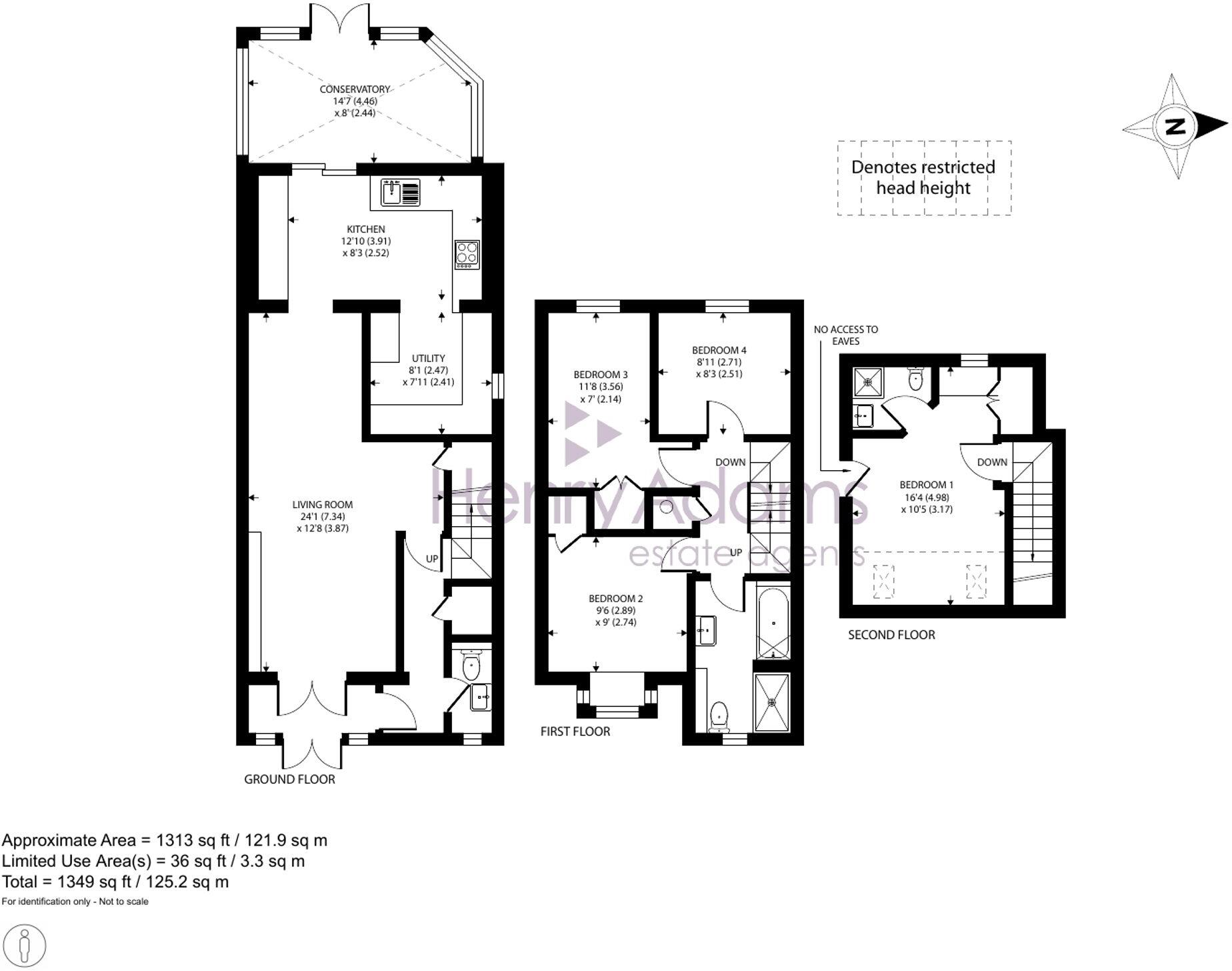
Extended semi-detached home. 24ft living/dining area, kitchen with utility room. Conservatory, westerly garden. En-suite & family bathroom. Garage and off-road parking. EPC-tbc Council tax-C
Property Oracle says ..
This 4-bedroom semi-detached house in Acorn Close, Selsey, offers a comfortable family home. The property boasts a modern kitchen with integrated appliances and what appears to be recently updated bathrooms. A conservatory provides additional living space and extends the living area into the garden. The garden itself is relatively small but well-maintained, offering a paved patio area and some landscaping features. At least one bedroom requires flooring to be completed. The location is convenient, with good schools nearby and the town centre within walking distance. While specific transportation details are missing, the overall proximity to amenities makes it an attractive option for families. The asking price seems consistent with other properties in the area, although a detailed price-per-square-foot analysis is hampered by a lack of data for comparable properties. Overall, the property presents a solid, if not exceptional, investment opportunity in a desirable location.
Therefore, we give this property 6 / 10. *Disclaimer: This is our option and does constitute a recommendation or financial advice. Do your own research. *
- Price
- 7
- Condition
- 6
- Location
- 7
- Land
- 4
- Bedrooms
- 4
- Bathrooms
- 2
- Sqft (est)
- 1,347.64
The heatmap indicates the level of crime in the area. The color of the heatmap indicates the crime severity and recency.
Metrics Year-on-Year
- Average area value
- 291,999.00 £Decreased by 21.52 %
- Est sale value
- 202,146.00 £Decreased by 56.65 %
- Average area rental value
- 1,050.00 £/moIncreased by 9.95 %
- Est letting value
- 0.00 £/mo
- Est rental Yield
- 4.32 %Increased by 40.26 %
- Crime Rate
- 9.00 %Unchanged by 0.00 %
Agent Activity
Henry Adams created the listing.
Nearby Schools
| Name | Type | Ofsted | Distance |
|---|---|---|---|
| The Academy, Selsey | Academy Sponsor Led | Good | 0.67 KM |
| Medmerry Primary School | Academy Converter | Good | 0.72 KM |
| Seal Primary Academy | Academy Sponsor Led | Good | 1.07 KM |
| Selsey Children & Family Centre | Children's Centre | 1.09 KM | |
| Sidlesham Primary School | Community School | Good | 4.29 KM |
Images
Nearby Streets
| Name | Average Price | Average Sqft | Distance |
|---|---|---|---|
| Coppice Lane | £ 309,975 | 0 | 0.00 KM |
| Freeways | £ 130,000 | 0 | 0.00 KM |
| Hersee Way | £ 0 | 0 | 0.00 KM |
| Malden Way | £ 335,000 | 0 | 0.00 KM |
| Croft Road | £ 375,000 | 0 | 0.00 KM |
Nearby Listings
| Address | Price | Type | Score | Distance |
|---|---|---|---|---|
| Acorn Close, Selsey, PO20 | £ 375,000 | BUY | 6 / 10 | 0.00 KM |
| Acorn Close, Selsey, Chichester, PO20 | £ 375,000 | BUY | 6 / 10 | 0.05 KM |
| Acorn Close, Selsey, PO20 | £ 345,000 | BUY | 7 / 10 | 0.10 KM |
| Drift Lane, Selsey, West Sussex | £ 310,000 | BUY | 6 / 10 | 0.10 KM |
| McNair Close, Selsey, PO20 | £ 329,500 | BUY | Unknown | 0.12 KM |
Nearby Properties
| Address | Price | Distance |
|---|---|---|
| 12 Acorn Close | £ 179,995 | 0.04 KM |
| 2 Acorn Close | £ 180,000 | 0.04 KM |
| 15 Acorn Close | £ 280,000 | 0.04 KM |
| 16 Acorn Close | £ 307,500 | 0.04 KM |
| 5 Acorn Close | £ 260,000 | 0.04 KM |