Wickham Close, Church Crookham, Fleet, Hampshire, GU52
By Vickery
£ 650,000
Reviews
3 out of 5 stars
Vickery says ..
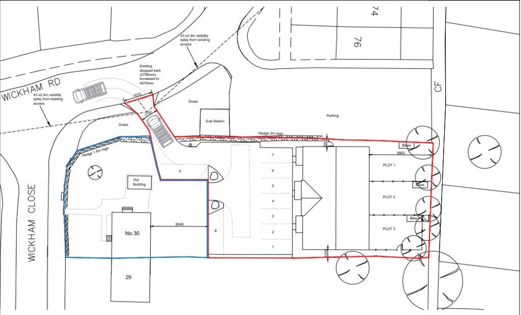
***Planning Permission Granted*** UNEXPECTIDLY RE-AVAILABLE Vickery are proud to present a development opportunity with full planning consent. Planning consent has been granted to erect a terrace of three, three bedroom houses in the rear garden of the existing house. Fu...
Property Oracle says ..
The property is located in Wickham Close, Church Crookham, Fleet, Hampshire. It’s a two-bedroom property with a plot size of 810 sqft and a total area of 576 sqft. The list price is £650,000.
The property appears to be in need of some modernisation. The interior photos show dated decor and finishes throughout. While structurally sound, significant updating would likely be required to bring it to a contemporary standard. The garden is a good size, offering potential for landscaping and outdoor living.
Church Crookham is a desirable residential area in Fleet, Hampshire. The proximity to good schools like Court Moor School (0.54km), Crookham Church of England Aided Infant School (0.68km), and Heatherside Infant & Junior Schools (1.29km), all rated ‘Good’ or ‘Outstanding’ by Ofsted, is a significant positive. The area also benefits from relatively easy access to Fleet train station (3.27km), providing convenient rail links.
Considering the property’s condition, the need for modernisation, and the relatively small size (576 sqft) compared to the average for the area (882 sqft), the list price of £650,000 appears high. The average price per sqft in the area is £441, while this property’s price per sqft is significantly higher. While the location and garden are positive aspects, the condition and size do not justify the price compared to the local market average. The nearby comparable properties, while lacking sqft data, suggest a lower price range for similar properties in the area.
Therefore, we give this property 6 / 10. *Disclaimer: This is our option and does constitute a recommendation or financial advice. Do your own research. *
- Price
- 4
- Condition
- 6
- Location
- 8
- Land
- 7
- Bedrooms
- 2
- Bathrooms
- 0
- Sqft (est)
- 576.00
- Lot (est)
- 810.00
The heatmap indicates the level of crime in the area. The color of the heatmap indicates the crime severity and recency.
Metrics Year-on-Year
- Average area value
- 399,167.00 £Increased by 7.59 %
- Est sale value
- 213,120.00 £Increased by 3.64 %
- Average area rental value
- 1,292.00 £/moIncreased by 3.03 %
- Est letting value
- 576.00 £/moUnchanged by 0.00 %
- Est rental Yield
- 3.88 %Decreased by 4.43 %
- Crime Rate
- 38.00 %Unchanged by 0.00 %
Agent Activity
Vickery created the listing.
Nearby Schools
| Name | Type | Ofsted | Distance |
|---|---|---|---|
| Court Moor School | Community School | Good | 0.54 KM |
| Crookham Church Of England Aided Infant School | Voluntary Aided School | Good | 0.68 KM |
| Heatherside Infant School | Community School | Outstanding | 1.29 KM |
| Heatherside Junior School | Community School | Outstanding | 1.29 KM |
| All Saints Church Of England Aided Junior School | Voluntary Aided School | Good | 1.38 KM |
Images
Nearby Streets
| Name | Average Price | Average Sqft | Distance |
|---|---|---|---|
| Rustic Glen | £ 280,000 | 0 | 0.00 KM |
| Woodland Rise | £ 176,665 | 0 | 0.00 KM |
| Rowan Dale | £ 0 | 0 | 0.00 KM |
| Sylvan Way | £ 115,000 | 0 | 0.00 KM |
| Green Glades | £ 204,983 | 0 | 0.00 KM |
Nearby Transport
| Name | NLC | TLC | Distance |
|---|---|---|---|
| Fleet | 5522 | FLE | 3.27 KM |
| Winchfield | 5528 | WNF | 6.91 KM |
| Farnham | 5545 | FNH | 8.57 KM |
| Bentley (Hampshire) | 5624 | BTY | 9.74 KM |
| Aldershot | 5623 | AHT | 9.92 KM |
Nearby Listings
| Address | Price | Type | Score | Distance |
|---|---|---|---|---|
| Wickham Close, Church Crookham, Fleet, Hampshire, GU52 | £ 650,000 | BUY | 6 / 10 | 0.00 KM |
| Fleet, Hampshire, GU52 | £ 115,000 | BUY | Unknown | 0.05 KM |
| Fleet, Hampshire, GU52 | £ 130,000 | BUY | Unknown | 0.05 KM |
| Wickham Place, Church Crookham, Fleet, Hart, GU52 | £ 210,000 | BUY | 5 / 10 | 0.09 KM |
| Wickham Place, Church Crookham, Fleet, GU52 | £ 350,000 | BUY | Unknown | 0.14 KM |
Nearby Properties
| Address | Price | Distance |
|---|---|---|
| 46 Wickham Road | £ 280,500 | 0.03 KM |
| 68 Wickham Road | £ 76,000 | 0.03 KM |
| 32 Wickham Road | £ 224,950 | 0.03 KM |
| 66 Wickham Road | £ 295,000 | 0.03 KM |
| 26 Wickham Road | £ 383,000 | 0.03 KM |