Sutton Close, Bury St. Edmunds
By Tennens Properties Ltd
£ 260,000
Reviews
3 out of 5 stars
Tennens Properties Ltd says ..
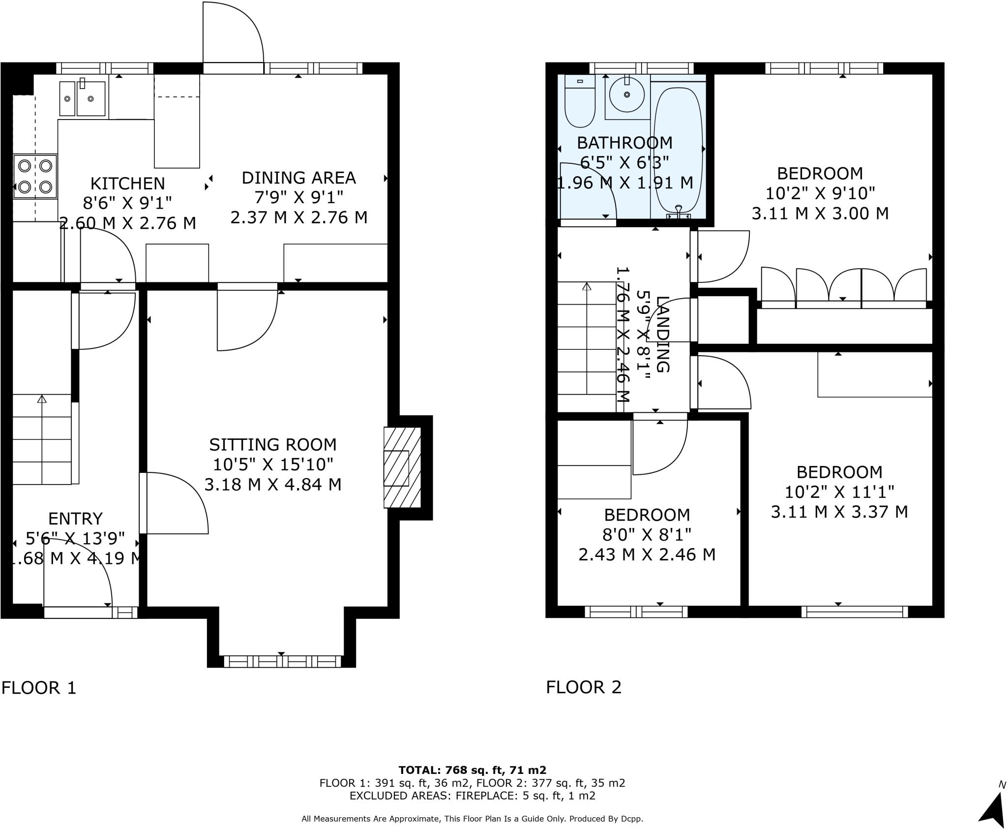
This three bedroom semi detached home is perfectly located on Moreton Hall with access to all amenities on the doorstep. The property briefly comprises of entrance hallway, sitting room, kitchen / dining room, three bedrooms and bathroom. There are front and rear gardens, driveway and garage. ...
Property Oracle says ..
This property is located in Moreton Hall, Bury St Edmunds, a popular residential area known for its family-friendly atmosphere and proximity to local amenities. The area benefits from several well-regarded schools, including Sebert Wood Community Primary School (Outstanding Ofsted rating) and Priory School (Outstanding Ofsted rating), both within a reasonable distance. Transport links are also convenient, with Bury St Edmunds train station approximately 3.35km away. The property itself is a three-bedroom semi-detached house. Based on the provided images, the property appears to be well-maintained and in good condition, although it has a traditional style. The kitchen and bathroom seem modern and updated. There is a garden present, though the exact size is not specified. The list price of £260,000 is slightly below the average price for the area (£349,349), however, the average price per sqft is not available for this property. Considering comparable properties in the area, the price appears reasonable, especially given the property’s condition and location. However, further information regarding the property’s square footage would be beneficial for a more precise evaluation.
Therefore, we give this property 7 / 10. *Disclaimer: This is our option and does constitute a recommendation or financial advice. Do your own research. *
- Price
- 7
- Condition
- 8
- Location
- 9
- Land
- 7
- Bedrooms
- 3
- Bathrooms
- 1
- Sqft (est)
- 764.24
The heatmap indicates the level of crime in the area. The color of the heatmap indicates the crime severity and recency.
Metrics Year-on-Year
- Average area value
- 350,000.00 £Increased by 1.28 %
- Est sale value
- 317,923.84 £Increased by 19.20 %
- Average area rental value
- 1,917.00 £/moIncreased by 28.06 %
- Est letting value
- 1,528.48 £/moIncreased by 100.00 %
- Est rental Yield
- 6.57 %Increased by 26.35 %
- Crime Rate
- 15.00 %Unchanged by 0.00 %
Agent Activity
Tennens Properties Ltd created the listing.
Nearby Schools
| Name | Type | Ofsted | Distance |
|---|---|---|---|
| Sebert Wood Community Primary School | Community School | Outstanding | 0.30 KM |
| First Base Bury St Edmunds | Academy Alternative Provision Converter | 1.25 KM | |
| Abbots Green Primary Academy | Academy Sponsor Led | 1.25 KM | |
| Priory School | Academy Special Converter | Outstanding | 1.63 KM |
| Sybil Andrews Academy | Academy Sponsor Led | Requires improvement | 1.87 KM |
Images
Nearby Streets
| Name | Average Price | Average Sqft | Distance |
|---|---|---|---|
| Orttewell Road | £ 225,000 | 0 | 0.00 KM |
| Beale Close | £ 385,000 | 0 | 0.00 KM |
| Vale Lane | £ 180,000 | 0 | 0.00 KM |
| Barton Road | £ 750,000 | 0 | 0.00 KM |
| Chapel Pond Hill | £ 0 | 0 | 0.00 KM |
Nearby Transport
| Name | NLC | TLC | Distance |
|---|---|---|---|
| Bury St Edmunds | 7008 | BSE | 3.35 KM |
| Thurston | 7356 | TRS | 7.44 KM |
Nearby Listings
| Address | Price | Type | Score | Distance |
|---|---|---|---|---|
| Sutton Close, Bury St. Edmunds | £ 260,000 | BUY | 7 / 10 | 0.00 KM |
| Sutton Close, Bury St. Edmunds | £ 400,000 | BUY | 7 / 10 | 0.01 KM |
| Sutton Close, Bury St. Edmunds | £ 325,000 | BUY | 7 / 10 | 0.03 KM |
| Darcy Close, Bury St. Edmunds | £ 250,000 | BUY | 7 / 10 | 0.08 KM |
| Darcy Close, Bury St Edmunds | £ 300,000 | BUY | 7 / 10 | 0.08 KM |
Nearby Properties
| Address | Price | Distance |
|---|---|---|
| 20 Sutton Close | £ 235,000 | 0.00 KM |
| 22 Sutton Close | £ 56,500 | 0.00 KM |
| 7 Sutton Close | £ 208,500 | 0.00 KM |
| 6 Sutton Close | £ 210,000 | 0.00 KM |
| 33 Sutton Close | £ 265,000 | 0.03 KM |