Grove Street, NEWBRIDGE, NP114FD
By Cariad Property
£ 149,995
Reviews
2 out of 5 stars
Cariad Property says ..
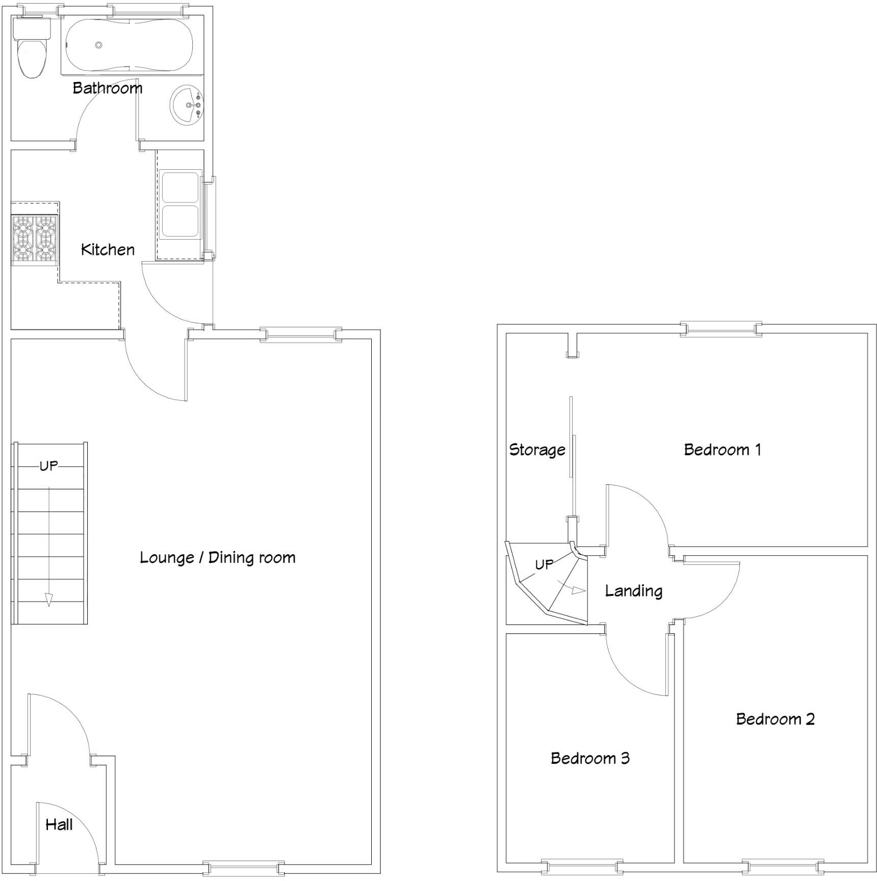
PERFECT FIRST TIME HOME, town location, ideal for all amenities and commutes, three bedrooms, extended and spacious, no chain!
Property Oracle says ..
This three-bedroom property in Newbridge, Caerphilly is listed at £149,995. While the provided square footage is missing, its location near the train station and local amenities is a plus. The property shows signs of needing some renovation, particularly the flooring and possibly the kitchen. There is a small yard/patio area. Compared to the area average price of £418,366, this property is significantly cheaper, potentially making it attractive to first-time buyers or investors looking for a fixer-upper. However, the lack of information regarding the property’s size makes it difficult to make a definitive judgment on value for money.
Therefore, we give this property 5 / 10. *Disclaimer: This is our option and does constitute a recommendation or financial advice. Do your own research. *
- Price
- 6
- Condition
- 4
- Location
- 7
- Land
- 3
- Bedrooms
- 3
- Bathrooms
- 1
The heatmap indicates the level of crime in the area. The color of the heatmap indicates the crime severity and recency.
Metrics Year-on-Year
- Average area value
- 318,211.00 £Decreased by 21.80 %
- Average area rental value
- 2,110.00 £/moIncreased by 60.46 %
- Est rental Yield
- 7.96 %Increased by 105.15 %
- Crime Rate
- 45.00 %Unchanged by 0.00 %
Agent Activity
Cariad Property created the listing.
Nearby Schools
| Name | Type | Ofsted | Distance |
|---|---|---|---|
| Newbridge School | Welsh Establishment | 0.36 KM | |
| Tynewydd Primary School | Welsh Establishment | 0.74 KM | |
| Pantside Primary School | Welsh Establishment | 1.38 KM | |
| Crumlin High Level Primary School | Welsh Establishment | 1.43 KM | |
| Abercarn Primary School | Welsh Establishment | 1.64 KM |
Images
Nearby Streets
| Name | Average Price | Average Sqft | Distance |
|---|---|---|---|
| Victoria Terrace | £ 0 | 0 | 0.00 KM |
| North Road | £ 295,000 | 0 | 0.00 KM |
| Ty-Llwydd Place | £ 0 | 0 | 0.00 KM |
| Church Road | £ 0 | 0 | 0.00 KM |
| Yewtree Road | £ 0 | 0 | 0.00 KM |
Nearby Transport
| Name | NLC | TLC | Distance |
|---|---|---|---|
| Newbridge | 9919 | NBE | 0.25 KM |
| Llanhilleth | 9916 | LTH | 4.16 KM |
| Crosskeys | 9902 | CKY | 5.20 KM |
| Risca And Pontymister | 9920 | RCA | 8.66 KM |
| Hengoed | 4028 | HNG | 9.02 KM |
Nearby Listings
| Address | Price | Type | Score | Distance |
|---|---|---|---|---|
| Grove Street, NEWBRIDGE, NP114FD | £ 149,995 | BUY | 5 / 10 | 0.00 KM |
| Golden Grove, NP11 | £ 129,950 | BUY | 6 / 10 | 0.08 KM |
| Parry buildings, Newbridge, Newport | £ 100,000 | BUY | 6 / 10 | 0.10 KM |
| Main Street, NEWBRIDGE, Caerphilly | £ 144,950 | BUY | Unknown | 0.10 KM |
| Torlais Street, Newbridge, Caerphilly | £ 119,950 | BUY | 6 / 10 | 0.10 KM |
Nearby Properties
| Address | Price | Distance |
|---|---|---|
| 16 Grove Street | £ 75,000 | 0.00 KM |
| 18 Grove Street | £ 136,000 | 0.00 KM |
| 14 Grove Street | £ 92,000 | 0.00 KM |
| 6 Grove Street | £ 95,000 | 0.00 KM |
| 5 Grove Street | £ 83,500 | 0.00 KM |