Peachtree Close, Fulwood, Preston, PR2
By Kingswood
£ 325,000
Reviews
3 out of 5 stars
Kingswood says ..
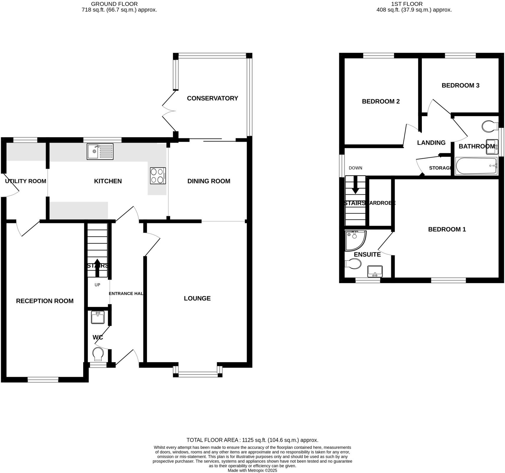
Situated in a beautifully laid out estate in Fulwood and set on a very generous size plot, this gorgeous detached house is the perfect long term family home. With two reception rooms, a dining area, a kitchen, a conservatory and three bedrooms, it offers ample space for families of all ages and s...
Property Oracle says ..
This three-bedroom, two-bathroom property located in the desirable Fulwood area of Preston presents a compelling opportunity for prospective buyers. The property boasts a modern and well-maintained interior, with updated kitchen and bathroom fixtures and fittings that suggest recent renovations. The open-plan living and dining area creates a spacious and welcoming ambiance. The visual appeal of the property is enhanced by the tasteful interior decor and design elements. The exterior includes a paved driveway and a sizeable garden with a patio, providing ample space for outdoor activities and entertainment. The proximity to well-regarded primary schools and relatively easy access to transport links add to the appeal of this location for families. However, a lack of information on the overall property age and structural assessment prevents a definitive conclusion. Further investigation into the precise plot size and a professional survey of the property’s condition are recommended before purchase.
Therefore, we give this property 7 / 10. *Disclaimer: This is our option and does constitute a recommendation or financial advice. Do your own research. *
- Price
- 7
- Condition
- 8
- Location
- 7
- Land
- 6
- Bedrooms
- 3
- Bathrooms
- 2
- Sqft (est)
- 1,125.00
The heatmap indicates the level of crime in the area. The color of the heatmap indicates the crime severity and recency.
Metrics Year-on-Year
- Average area value
- 255,000.00 £Decreased by 10.10 %
- Est sale value
- 149,625.00 £Decreased by 30.37 %
- Average area rental value
- 1,005.00 £/moIncreased by 12.29 %
- Est letting value
- 0.00 £/mo
- Est rental Yield
- 4.73 %Increased by 24.80 %
- Crime Rate
- 1.00 %Unchanged by 0.00 %
Agent Activity
Kingswood created the listing.
Nearby Schools
| Name | Type | Ofsted | Distance |
|---|---|---|---|
| Longsands Community Primary School | Community School | Good | 0.34 KM |
| Brookfield Community Primary School | Community School | Good | 1.34 KM |
| Holme Slack Community Primary School | Community School | Good | 1.42 KM |
| Sure Start Preston East Children'S Centre | Children's Centre | 1.75 KM | |
| Preston Greenlands Community Primary School | Community School | Good | 1.80 KM |
Images
Nearby Streets
| Name | Average Price | Average Sqft | Distance |
|---|---|---|---|
| Almond Close | £ 325,000 | 0 | 0.00 KM |
| Cherry Close | £ 320,000 | 0 | 0.00 KM |
| The Brambles | £ 0 | 0 | 0.00 KM |
| Willow Gate | £ 706,000 | 0 | 0.00 KM |
| The Warren | £ 0 | 0 | 0.00 KM |
Nearby Transport
| Name | NLC | TLC | Distance |
|---|---|---|---|
| Preston (Lancs) | 2753 | PRE | 5.01 KM |
| Bamber Bridge | 2561 | BMB | 7.09 KM |
| Lostock Hall | 2689 | LOH | 7.29 KM |
Nearby Listings
| Address | Price | Type | Score | Distance |
|---|---|---|---|---|
| Peachtree Close, Fulwood, Preston, PR2 | £ 325,000 | BUY | 7 / 10 | 0.00 KM |
| Peachtree Close, PRESTON, Lancashire, PR2 | £ 330,000 | BUY | 6 / 10 | 0.03 KM |
| The Blossoms, Fulwood, Preston, PR2 9RF | £ 315,000 | BUY | 7 / 10 | 0.16 KM |
| Almond Close, Fulwood, Preston | £ 300,000 | BUY | 6 / 10 | 0.17 KM |
| The Blossoms, Preston, PR2 | £ 290,000 | BUY | Unknown | 0.21 KM |
Nearby Properties
| Address | Price | Distance |
|---|---|---|
| 8 Peachtree Close | £ 266,000 | 0.03 KM |
| 13 Peachtree Close | £ 182,000 | 0.03 KM |
| 24 Peachtree Close | £ 179,950 | 0.03 KM |
| 3 Peachtree Close | £ 220,000 | 0.03 KM |
| 4 Peachtree Close | £ 178,500 | 0.03 KM |