Fry & Kent says ..
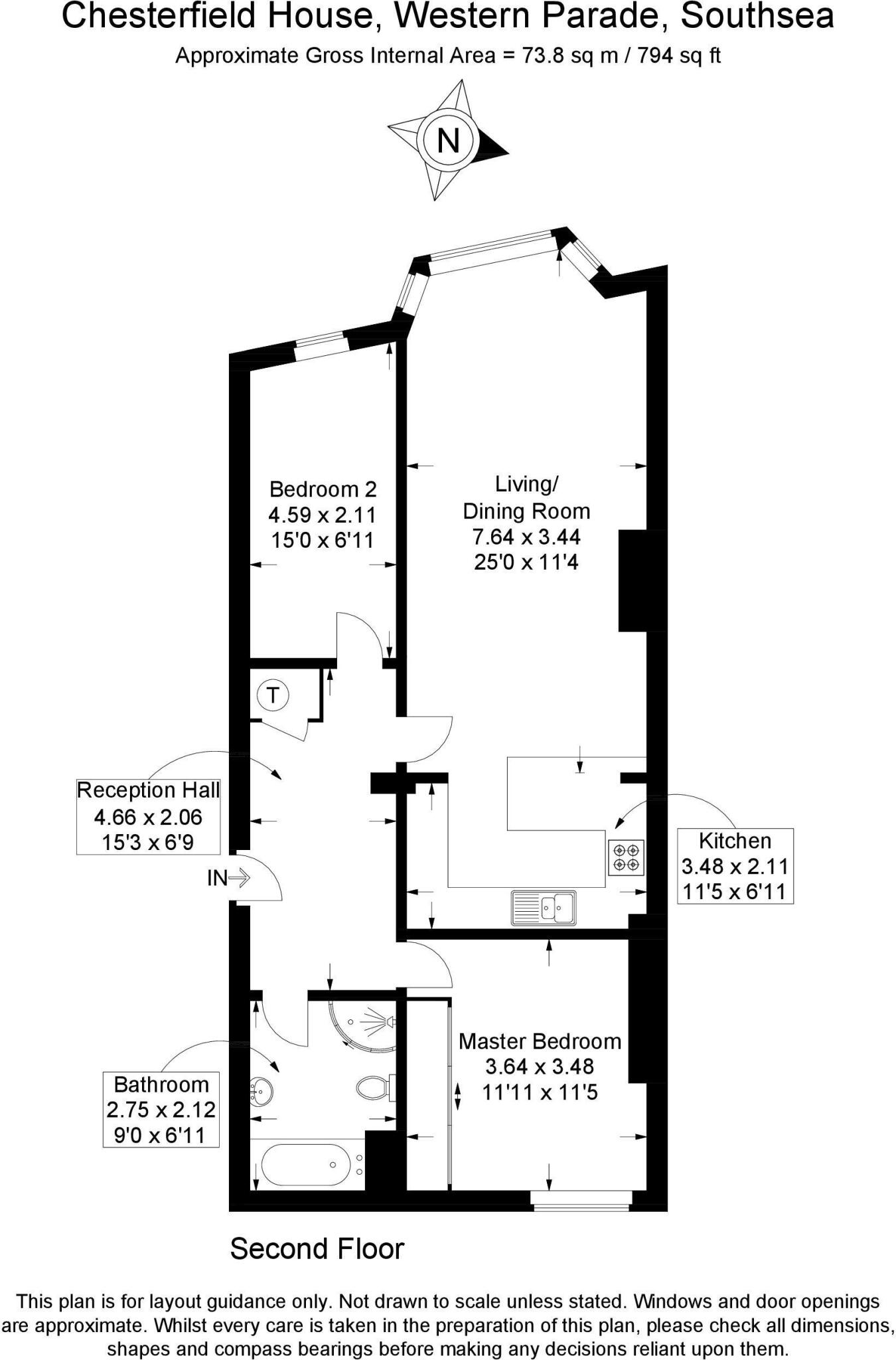
** VIEW OUR 360 DEGREE VIRTUAL TOUR ** We are delighted to offer for sale this spacious two bedroom apartment with sea views. Upon entering, you're greeted by a welcoming hallway with light wooden flooring. The hallway features built-in storage, optimizing space utilisation. The heart of the ...
Property Oracle says ..
This property is a 2 bedroom, 1 bathroom detached property located on Western Parade in Southsea, Portsmouth. The property benefits from a desirable location close to the seafront and local amenities. While the provided images showcase a well-maintained and modern interior, the lack of information regarding the exterior and garden prevents a complete assessment of the property’s condition and land size. The list price of £299,950 is slightly below the average price for the area (£378,775), but significantly higher than the average price per square foot (£375). Considering the property’s size (677.35 sqft) and the limited information available, further investigation is needed to determine the overall value.
Therefore, we give this property 7 / 10. *Disclaimer: This is our option and does constitute a recommendation or financial advice. Do your own research. *
- Price
- 7
- Condition
- 9
- Location
- 9
- Land
- 3
- Bedrooms
- 2
- Bathrooms
- 1
- Sqft (est)
- 677.35
- Lot (est)
- 794.00
The heatmap indicates the level of crime in the area. The color of the heatmap indicates the crime severity and recency.
Metrics Year-on-Year
- Average area value
- 190,742.00 £Decreased by 45.70 %
- Est sale value
- 244,523.35 £Decreased by 1.10 %
- Average area rental value
- 1,259.00 £/moDecreased by 5.12 %
- Est letting value
- 1,354.70 £/moIncreased by 100.00 %
- Est rental Yield
- 7.92 %Increased by 74.83 %
- Crime Rate
- 3.00 %Unchanged by 0.00 %
Agent Activity
Fry & Kent created the listing.
Nearby Schools
| Name | Type | Ofsted | Distance |
|---|---|---|---|
| Portsmouth High School | Other Independent School | 0.24 KM | |
| St Jude'S Cofe Primary School | Voluntary Controlled School | Good | 0.77 KM |
| St John'S College | Other Independent School | 0.88 KM | |
| The Portsmouth Grammar School | Other Independent School | 0.91 KM | |
| Cottage Grove Primary School | Academy Converter | 0.94 KM |
Images
Nearby Streets
| Name | Average Price | Average Sqft | Distance |
|---|---|---|---|
| Duisburg Way | £ 0 | 0 | 0.00 KM |
| Regent Place | £ 340,000 | 0 | 0.00 KM |
| Sussex Road | £ 0 | 0 | 0.00 KM |
| Kent Road | £ 0 | 0 | 0.00 KM |
| Queens Way | £ 0 | 0 | 0.00 KM |
Nearby Transport
| Name | NLC | TLC | Distance |
|---|---|---|---|
| Portsmouth And Southsea | 5537 | PMS | 1.44 KM |
| Portsmouth Harbour | 5540 | PMH | 1.93 KM |
| Fratton | 5509 | FTN | 2.52 KM |
| Hilsea | 5539 | HLS | 6.13 KM |
| Cosham | 5896 | CSA | 6.90 KM |
Nearby Listings
| Address | Price | Type | Score | Distance |
|---|---|---|---|---|
| Western Parade, Southsea | £ 299,950 | BUY | 7 / 10 | 0.00 KM |
| Western Parade, Southsea | £ 275,000 | BUY | 6 / 10 | 0.01 KM |
| Western Parade, Southsea | £ 150,000 | BUY | 5 / 10 | 0.01 KM |
| Western Parade, Southsea, Hampshire, PO5 | £ 315,000 | BUY | 7 / 10 | 0.02 KM |
| Western Parade, Southsea | £ 1,650,000 | BUY | 5 / 10 | 0.03 KM |
Nearby Properties
| Address | Price | Distance |
|---|---|---|
| 26a Western Parade | £ 50,000 | 0.01 KM |
| 24 Western Parade | £ 560,000 | 0.01 KM |
| 26c Western Parade | £ 410,000 | 0.01 KM |
| 27 Western Parade | £ 208,000 | 0.01 KM |
| 26 Western Parade | £ 285,000 | 0.01 KM |