Chancellors says ..
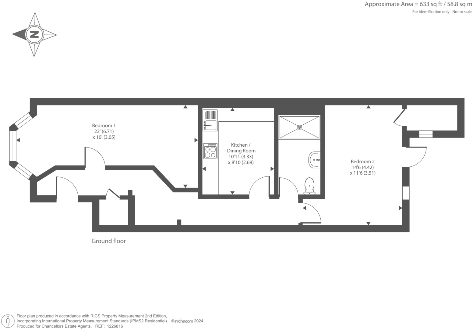
Set in this popular location in the heart of West Reading just 0.4 miles from the station, is this ground floor apartment with living room, kitchen, bathroom, bedroom and courtyard garden space.
Property Oracle says ..
This one-bedroom flat in West Reading, Berkshire, is located on Oxford Road, close to Reading West train station and several schools. The property offers a functional living space with one bedroom, one bathroom, and a small kitchen. The photographs indicate a clean, well-maintained interior with modern fixtures. However, the property lacks substantial outdoor space beyond a small courtyard. The location is convenient, but being on a busy road next to commercial properties could be seen as a disadvantage by some buyers. The listing price of £175,000 appears reasonable when compared to other similar properties nearby, however there is a wide range of prices amongst these, some much lower and some much higher. It’s important to note that the available data lacks detailed information on the property’s specifics, such as leasehold details (if applicable), which could influence its value. A potential buyer should undertake a comprehensive survey and seek professional valuation to make an informed decision.
Therefore, we give this property 5 / 10. *Disclaimer: This is our option and does constitute a recommendation or financial advice. Do your own research. *
- Price
- 7
- Condition
- 6
- Location
- 7
- Land
- 2
- Bedrooms
- 1
- Bathrooms
- 1
- Sqft (est)
- 633.00
The heatmap indicates the level of crime in the area. The color of the heatmap indicates the crime severity and recency.
Metrics Year-on-Year
- Average area value
- 317,000.00 £Increased by 3.08 %
- Est sale value
- 307,638.00 £Increased by 24.94 %
- Average area rental value
- 1,341.00 £/moIncreased by 9.47 %
- Est letting value
- 1,266.00 £/moIncreased by 100.00 %
- Est rental Yield
- 5.08 %Increased by 6.28 %
- Crime Rate
- 11.00 %Unchanged by 0.00 %
Agent Activity
Chancellors created the listing.
Nearby Schools
| Name | Type | Ofsted | Distance |
|---|---|---|---|
| Battle Primary Academy | Academy Sponsor Led | Good | 0.36 KM |
| Cranbury College | Academy Alternative Provision Converter | 0.46 KM | |
| Wilson Primary School | Community School | Good | 0.59 KM |
| St Edward'S Prep | Other Independent School | 0.71 KM | |
| The Wren School | Free Schools | Good | 1.15 KM |
Images
Nearby Streets
| Name | Average Price | Average Sqft | Distance |
|---|---|---|---|
| Richmond Road | £ 350,000 | 0 | 0.00 KM |
| Suffolk Road | £ 0 | 0 | 0.00 KM |
| Thornton Road | £ 0 | 0 | 0.00 KM |
| Connaught Road | £ 0 | 0 | 0.00 KM |
| Monck Court | £ 0 | 0 | 0.00 KM |
Nearby Transport
| Name | NLC | TLC | Distance |
|---|---|---|---|
| Reading West | 3160 | RDW | 0.89 KM |
| Reading | 3149 | RDG | 2.90 KM |
| Tilehurst | 3154 | TLH | 3.87 KM |
| Theale | 3153 | THE | 8.91 KM |
| Earley | 5694 | EAR | 9.02 KM |
Nearby Listings
| Address | Price | Type | Score | Distance |
|---|---|---|---|---|
| West Reading, Berkshire, RG30 | £ 175,000 | BUY | 5 / 10 | 0.00 KM |
| Kensington Road, Reading | £ 220,000 | BUY | 6 / 10 | 0.05 KM |
| Cranbury Road, Reading, RG30 | £ 315,000 | BUY | 6 / 10 | 0.07 KM |
| Oxford Road, Reading | £ 110,000 | BUY | Unknown | 0.07 KM |
| Reading, Berkshire, RG30 | £ 225,000 | BUY | 5 / 10 | 0.11 KM |
Nearby Properties
| Address | Price | Distance |
|---|---|---|
| 449 Oxford Road | £ 94,950 | 0.01 KM |
| 8 Cranbury Road | £ 140,000 | 0.08 KM |
| 50 Cranbury Road | £ 235,000 | 0.08 KM |
| 10 Cranbury Road | £ 170,000 | 0.08 KM |
| 18 Cranbury Road | £ 224,950 | 0.08 KM |