Barbers says ..
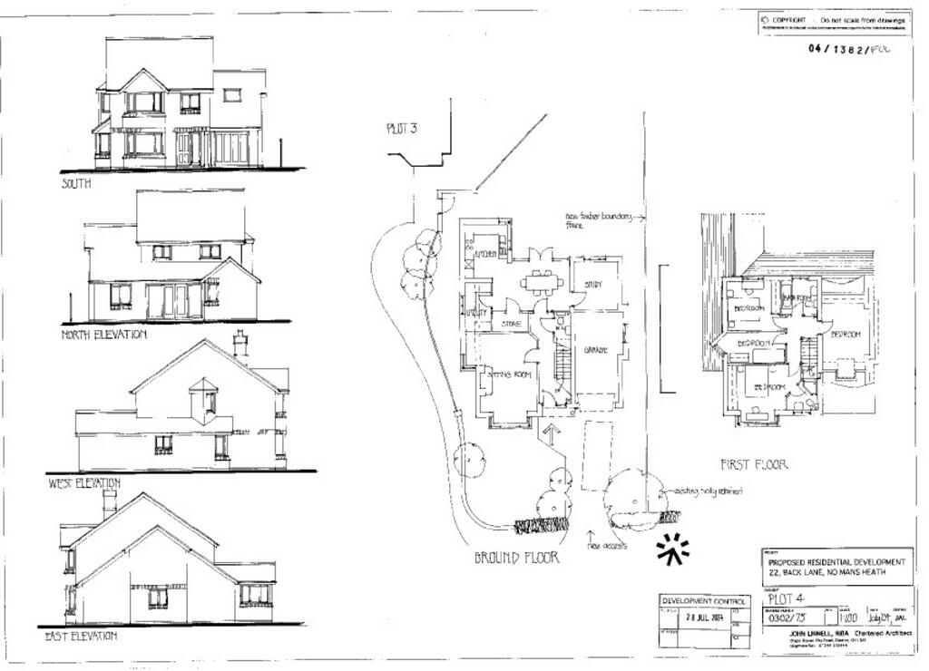
An excellent opportunity to purchase a large building plot having full planning permission, with conditions, for the erection of four new dwellings with garages. Application Number: 04/01382/FUL
Property Oracle says ..
This property presents a unique opportunity in the No Man’s Heath area of Cheshire. The listing is for a plot of land with an existing property, which seems suitable for demolition or extensive renovation given its condition. The most significant aspect is the approved planning permission for constructing four new dwellings. This dramatically changes the property’s investment potential, transforming it into a development opportunity. The rural location of No Man’s Heath offers a peaceful environment, relatively close to Malpas which offers some amenities. Nearby schools are well-regarded, making the location appealing to families. While the existing house may require substantial work, the value lies in the potential for development. Buyers need to consider factors such as construction costs, development timelines and potential risks associated with new builds. The location and substantial land area contribute significantly to the overall value, but thorough due diligence is necessary before committing to a purchase. Proximity to other properties on Back Lane shows some range in recent selling prices suggesting careful consideration of the market value at the point of purchase is required. Buyers should also be cautious of the current and future market in the region.
Therefore, we give this property 6 / 10. *Disclaimer: This is our option and does constitute a recommendation or financial advice. Do your own research. *
- Price
- 6
- Condition
- 4
- Location
- 7
- Land
- 8
- Bedrooms
- 0
- Bathrooms
- 0
The heatmap indicates the level of crime in the area. The color of the heatmap indicates the crime severity and recency.
Metrics Year-on-Year
- Average area value
- 258,571.00 £Decreased by 18.16 %
- Average area rental value
- 1,230.00 £/moIncreased by 21.30 %
- Est rental Yield
- 5.71 %Increased by 48.31 %
- Crime Rate
- 72.00 %Unchanged by 0.00 %
Agent Activity
Barbers created the listing.
Nearby Schools
| Name | Type | Ofsted | Distance |
|---|---|---|---|
| Tushingham With Grindley Cofe Primary School | Voluntary Controlled School | Outstanding | 2.45 KM |
| Bishop Heber High School | Foundation School | Outstanding | 3.52 KM |
| Malpas Alport Endowed Primary School | Community School | Good | 4.18 KM |
| Bickerton Holy Trinity Cofe Primary School | Voluntary Controlled School | Good | 5.11 KM |
| Physis Heathgates Academy | Other Independent Special School | Good | 8.35 KM |
Images
Nearby Streets
| Name | Average Price | Average Sqft | Distance |
|---|---|---|---|
| Bradley Lane | £ 500,000 | 0 | 0.00 KM |
Nearby Transport
| Name | NLC | TLC | Distance |
|---|---|---|---|
| Whitchurch (Shropshire) | 1348 | WTC | 9.03 KM |
Nearby Listings
| Address | Price | Type | Score | Distance |
|---|---|---|---|---|
| Back Lane, Nomans Heath | £ 400,000 | BUY | 6 / 10 | 0.00 KM |
| Cross O'th Hill Road, Nomans Heath | £ 279,950 | BUY | Unknown | 0.05 KM |
| Nomans Heath, Malpas | £ 275,000 | BUY | Unknown | 0.11 KM |
| Back Lane, Nomans Heath | £ 510,000 | BUY | Unknown | 0.15 KM |
| Cross O'th Hill Road, Nomans Heath | £ 55,000 | BUY | 6 / 10 | 0.16 KM |
Nearby Properties
| Address | Price | Distance |
|---|---|---|
| 8 Back Lane | £ 110,000 | 0.05 KM |
| Corn Riggs | £ 410,000 | 0.05 KM |
| 12 Back Lane | £ 385,000 | 0.05 KM |
| 10 Back Lane | £ 347,500 | 0.05 KM |
| 38 Back Lane | £ 290,000 | 0.05 KM |