Upper North Street, London, E14
PU

Upper North Street, London, E14

By Purplebricks

£ 1,750,000

Reviews

2 out of 5 stars

Purplebricks says ..

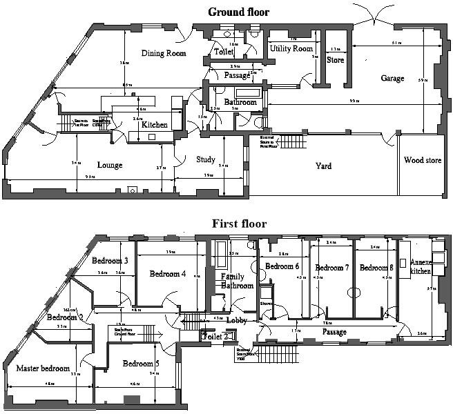
This is a large eight bedroomed family home, set on the edge of Barlett Park, situated one mile from Canary Wharf. The front door faces south, with views to Canary Wharf and Bartlett Park. Entering the house you come into a large dining room, 25 feet long, an adjoining kitchen. The ceilings ar...

Property Oracle says ..

This property is located in the Lansbury area of Tower Hamlets, London. The area benefits from several outstanding primary schools within a short distance, including Mayflower Primary School and St Saviour’s Church of England Primary School. Public transportation links are also relatively close by, with Limehouse station (c2c) being approximately 2.23km away. The property itself is a large, 8-bedroom house with 3 bathrooms, spanning 4,876.05 sqft. The images show the property to be in need of some modernisation and updating. While the interior features original period details, many areas appear dated and could benefit from renovation. The property does include a small yard area, but it is not extensive. Given the size of the property and its location, the list price of £1,750,000 is relatively high compared to the average house price in the area (£495,011) and average price per sqft (£640). However, the large number of bedrooms and bathrooms could justify a higher price, especially in a desirable area of London. A comparative market analysis of similar properties in the area would be beneficial to determine a more precise valuation.

Therefore, we give this property 4 / 10. *Disclaimer: This is our option and does constitute a recommendation or financial advice. Do your own research. *

Price
5
Condition
4
Location
7
Land
2
Bedrooms
8
Bathrooms
3
Sqft (est)
4,876.05

The heatmap indicates the level of crime in the area. The color of the heatmap indicates the crime severity and recency.

Metrics Year-on-Year

Average area value
413,500.00 £
Decreased by 5.80 %
from 438,951.00 £
Est sale value
2,184,470.40 £
Increased by 33.33 %
from 1,638,352.80 £
Average area rental value
1,874.00 £/mo
Decreased by 12.31 %
from 2,137.00 £/mo
Est letting value
9,752.10 £/mo
Increased by 100.00 %
from 4,876.05 £/mo
Est rental Yield
5.44 %
Decreased by 6.85 %
from 5.84 %
Crime Rate
8.00 %
Unchanged by 0.00 %
from 8.00 %

Agent Activity

  • Purplebricks created the listing.

Nearby Schools

NameTypeOfstedDistance
Bygrove Primary SchoolAcademy Converter0.26 KM
Lansbury Lawrence Primary SchoolCommunity SchoolGood0.33 KM
St Saviour'S Church Of England Primary SchoolVoluntary Aided SchoolOutstanding0.33 KM
Mayflower Primary SchoolCommunity SchoolOutstanding0.34 KM
Our Lady And St Joseph Catholic Primary SchoolVoluntary Aided SchoolGood0.53 KM

Images

Bedroom Five Bathroom Garage Garage Garage Log store Front View Dining Room Front View Entrance Dining Room Dining Room Dining Room Kitchen/Dining Room Kitchen/Dining Room Lounge Lounge Lounge Study Downstairs Bathroom Downstairs Bathroom Downstairs Cloakroom Utility Room Utility Room Landing Master Bathroom Master Bedroom Bedroom Two Bedroom Three Bedroom Four Family Bathroom Annexe Hallway Bedroom Six Bedroom Eight Annexe Kitchen Annexe Kitchen Annexe Shower Room Cellar Cellar Loft Garage Garage Garden Patio Rear View Rear View

Nearby Streets

NameAverage PriceAverage SqftDistance
Northumbria Street £ 550,00000.00 KM
Cotall Street £ 000.00 KM
Seaborne Wharf £ 000.00 KM
Limehouse Cut £ 000.00 KM
Canton Street £ 325,00000.00 KM

Nearby Transport

NameNLCTLCDistance
Limehouse7491LHS2.23 KM
West Ham7474WEH3.18 KM
Hackney Wick6978HKW3.25 KM
Stratford6969SRA3.53 KM
Stratford International7222SFA3.57 KM

Nearby Listings

AddressPriceTypeScoreDistance
Bellcote Apartments, Arcadia Street, E14 £ 425,000BUY6 / 100.09 KM
Wardell Apartments, Bow Common, E14 £ 525,000BUYUnknown0.10 KM
Cordelia Street, London £ 435,000BUY5 / 100.13 KM
Jonzen Walk, London, E14 £ 420,000BUY8 / 100.13 KM
Flat 39 Colebrook House, Ellesmere Street, Poplar, London, E14 6LB £ 150,000BUYUnknown0.13 KM

Nearby Properties

AddressPriceDistance
44 Augusta Street £ 99,5000.08 KM
20 Augusta Street £ 410,0000.08 KM
32 Augusta Street £ 138,0000.08 KM
30 Augusta Street £ 175,0000.08 KM
22 Augusta Street £ 224,0000.08 KM