Frampton Terrace, Montbelle Road, London
By John Payne
£ 575,000
Reviews
3 out of 5 stars
John Payne says ..
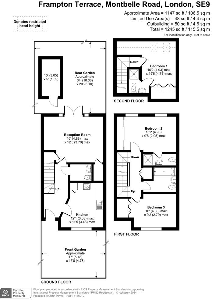
*GUIDE PRICE £575,000 - £600,000* Offered chain free is this delightful three-bedroom, three-bathroom semi-detached home in a popular spot in SE9, also on the cusp of Chislehurst High Street! Providing spacious accommodation throughout consisting of; Entrance hall, Mo...
Property Oracle says ..
A semi-detached property located in Coldharbour And New Eltham, Greenwich, London. The property features 3 bedrooms and 3 bathrooms. It is conveniently located near schools and transportation links. The property is in good condition and features a garden.
Therefore, we give this property 7 / 10. *Disclaimer: This is our option and does constitute a recommendation or financial advice. Do your own research. *
- Price
- 9
- Condition
- 8
- Location
- 7
- Land
- 7
- Bedrooms
- 3
- Bathrooms
- 3
- Sqft (est)
- 1,845.79
The heatmap indicates the level of crime in the area. The color of the heatmap indicates the crime severity and recency.
Metrics Year-on-Year
- Average area value
- 537,500.00 £Increased by 0.87 %
- Est sale value
- 1,120,394.53 £Increased by 47.33 %
- Average area rental value
- 1,800.00 £/moDecreased by 9.14 %
- Est letting value
- 3,691.58 £/moIncreased by 100.00 %
- Est rental Yield
- 4.02 %Decreased by 9.87 %
- Crime Rate
- 3.00 %Unchanged by 0.00 %
Agent Activity
John Payne created the listing.
Nearby Schools
| Name | Type | Ofsted | Distance |
|---|---|---|---|
| Montbelle Primary School | Community School | Good | 0.41 KM |
| St Olave'S Prep School | Other Independent School | 0.67 KM | |
| Edgebury Primary School | Foundation School | Good | 0.84 KM |
| Greenacres Children'S Centre | Children's Centre Linked Site | 0.99 KM | |
| Red Hill Primary School | Academy Converter | Good | 0.99 KM |
Images
Nearby Streets
| Name | Average Price | Average Sqft | Distance |
|---|---|---|---|
| Greenway | £ 575,000 | 0 | 0.00 KM |
| Buckingham Drive | £ 0 | 0 | 0.00 KM |
| Hillview Road | £ 0 | 0 | 0.00 KM |
| Longcroft | £ 442,500 | 0 | 0.00 KM |
| White Horse Hill | £ 437,000 | 0 | 0.00 KM |
Nearby Transport
| Name | NLC | TLC | Distance |
|---|---|---|---|
| New Eltham | 5119 | NEH | 1.08 KM |
| Mottingham | 5118 | MTG | 2.09 KM |
| Elmstead Woods | 5135 | ESD | 2.75 KM |
| Chislehurst | 5099 | CIT | 2.83 KM |
| Eltham | 5103 | ELW | 3.24 KM |
Nearby Listings
| Address | Price | Type | Score | Distance |
|---|---|---|---|---|
| Frampton Terrace, Montbelle Road, London | £ 575,000 | BUY | 7 / 10 | 0.00 KM |
| Frampton Terrace, London, SE9 | £ 590,000 | BUY | 8 / 10 | 0.01 KM |
| Oaktree Gardens, New Eltham, SE9 | £ 350,000 | BUY | 6 / 10 | 0.03 KM |
| Oaktree Gardens, New Eltham, London | £ 300,000 | BUY | 7 / 10 | 0.03 KM |
| Oaktree Gardens, London, SE9 | £ 560,000 | BUY | 6 / 10 | 0.03 KM |
Nearby Properties
| Address | Price | Distance |
|---|---|---|
| 333 Green Lane | £ 572,000 | 0.16 KM |
| 339 Green Lane | £ 501,250 | 0.16 KM |
| 337 Green Lane | £ 320,000 | 0.16 KM |
| 345 Green Lane | £ 590,000 | 0.16 KM |
| 341 Green Lane | £ 585,000 | 0.16 KM |