Chancellors says ..
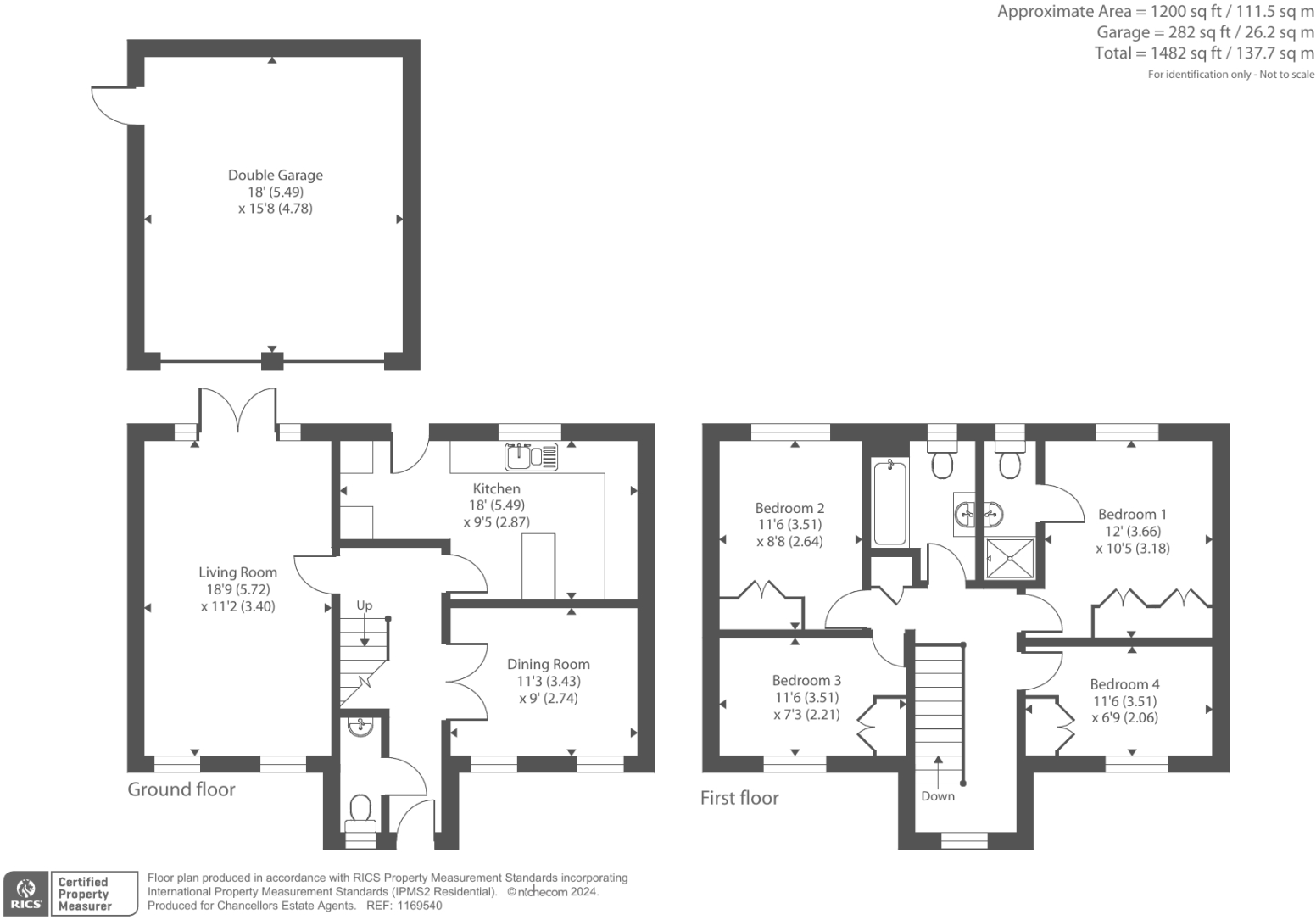
The property is located within a private cul-de-sac of just three houses and offers driveway parking for up to four vehicles and access to the detached double garage via twin up and over doors. The property offers both front and rear gardens which are mainly laid to lawn.
Property Oracle says ..
This four-bedroom, three-bathroom detached house in Fleet, Hampshire, is presented in seemingly good condition. The property benefits from a well-maintained garden, as shown in the photos. The interior shows signs of modernisation, particularly in the kitchen and bathrooms, giving a contemporary feel. The location in Crookham West and Ewshot offers a balance between a peaceful residential environment and convenient access to amenities and transport links. Fleet’s railway station provides a commute option to London and other areas, while nearby good schools make it attractive to families. While precise details on plot size and the average price per square foot for comparable properties in the immediate vicinity are limited, the asking price of £700,000 appears to sit within a reasonable band, considering the property’s attributes and the overall market trends in Fleet. A full structural survey would be recommended before finalising any purchase to assess any potential hidden issues.
Therefore, we give this property 7 / 10. *Disclaimer: This is our option and does constitute a recommendation or financial advice. Do your own research. *
- Price
- 7
- Condition
- 8
- Location
- 7
- Land
- 6
- Bedrooms
- 4
- Bathrooms
- 3
- Sqft (est)
- 1,482.00
The heatmap indicates the level of crime in the area. The color of the heatmap indicates the crime severity and recency.
Metrics Year-on-Year
- Average area value
- 474,943.00 £Increased by 6.76 %
- Est sale value
- 1,342,692.00 £Increased by 129.37 %
- Average area rental value
- 2,010.00 £/moIncreased by 42.65 %
- Est letting value
- 4,446.00 £/moIncreased by 200.00 %
- Est rental Yield
- 5.08 %Increased by 33.68 %
- Crime Rate
- 6.00 %Unchanged by 0.00 %
Agent Activity
Chancellors created the listing.
Nearby Schools
| Name | Type | Ofsted | Distance |
|---|---|---|---|
| Crookham Church Of England Aided Infant School | Voluntary Aided School | Good | 1.01 KM |
| Court Moor School | Community School | Good | 1.31 KM |
| St Nicholas' School | Other Independent School | 1.38 KM | |
| All Saints Church Of England Aided Junior School | Voluntary Aided School | Good | 1.42 KM |
| Tavistock Infant School | Community School | Good | 1.56 KM |
Images
Nearby Streets
| Name | Average Price | Average Sqft | Distance |
|---|---|---|---|
| Woodland Court | £ 0 | 0 | 0.00 KM |
| (raised kerb) | £ 0 | 0 | 0.00 KM |
| Rustic Glen | £ 280,000 | 0 | 0.00 KM |
| Rebecca Close | £ 0 | 0 | 0.00 KM |
| Langley Close | £ 0 | 0 | 0.00 KM |
Nearby Transport
| Name | NLC | TLC | Distance |
|---|---|---|---|
| Fleet | 5522 | FLE | 4.05 KM |
| Winchfield | 5528 | WNF | 6.37 KM |
| Farnham | 5545 | FNH | 8.83 KM |
| Bentley (Hampshire) | 5624 | BTY | 9.17 KM |
Nearby Listings
| Address | Price | Type | Score | Distance |
|---|---|---|---|---|
| Fleet, Hampshire, GU52 | £ 700,000 | BUY | 7 / 10 | 0.00 KM |
| Silvester Way, Church Crookham, Fleet, Hampshire, GU52 | £ 800,000 | BUY | 7 / 10 | 0.01 KM |
| Gally Hill Road, Church Crookham, GU52 | £ 1,100,000 | BUY | 8 / 10 | 0.18 KM |
| Camus Close, Church Crookham, Fleet | £ 725,000 | BUY | 7 / 10 | 0.21 KM |
| Gally Hill Road, Church Crookham, GU52 | £ 1,250,000 | BUY | 7 / 10 | 0.22 KM |
Nearby Properties
| Address | Price | Distance |
|---|---|---|
| 18 Silvester Way | £ 835,000 | 0.01 KM |
| 3 Silvester Way | £ 650,000 | 0.01 KM |
| 1 Silvester Way | £ 481,000 | 0.01 KM |
| 8 Silvester Way | £ 395,000 | 0.01 KM |
| 10 Silvester Way | £ 429,900 | 0.01 KM |