Jordans Lane East, Eastbourne
By Archer & Partners
£ 415,000
Reviews
3 out of 5 stars
Archer & Partners says ..
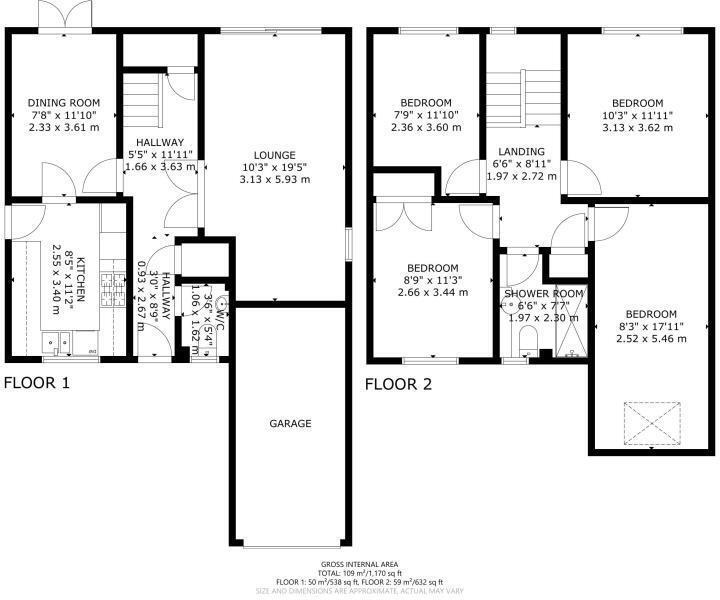
SEE OUR 360 VIRTUAL TOUR - Spacious Detached Family House - Westerly Rear Garden - Views of South Downs - 2 Reception Rooms - Modern Kitchen - Downstairs Cloakroom/wc - 4 Good Size Bedrooms - Superb Shower Room/wc - Gas Central Heating - Double Glazing - Ample Parking - Garage A spacious...
Property Oracle says ..
The property is located in Hampden Park, Eastbourne, which is a residential area with a mix of housing types. The area benefits from being relatively close to local schools, including The Lindfield School (Outstanding Ofsted rating) and The Eastbourne Academy (Good Ofsted rating), although Oakwood Primary Academy is in special measures. Hampden Park railway station is also within a reasonable distance, providing access to Eastbourne and other towns. The property itself appears to be in good condition from the photos, although some minor updates or cosmetic improvements might enhance its appeal. The presence of a garden is a definite plus, offering outdoor space. Pricing in the area shows some variation, with properties of similar size and type ranging from £295,000 to £443,495. Considering the condition, location, and garden, the list price of £415,000 seems to fall within the reasonable range for the area, although it is towards the higher end.
Therefore, we give this property 7 / 10. *Disclaimer: This is our option and does constitute a recommendation or financial advice. Do your own research. *
- Price
- 6
- Condition
- 8
- Location
- 7
- Land
- 7
- Bedrooms
- 4
- Bathrooms
- 1
- Sqft (est)
- 1,173.27
The heatmap indicates the level of crime in the area. The color of the heatmap indicates the crime severity and recency.
Metrics Year-on-Year
- Average area value
- 318,317.00 £Decreased by 11.84 %
- Est sale value
- 532,664.58 £Increased by 81.60 %
- Average area rental value
- 1,183.00 £/moDecreased by 9.00 %
- Est letting value
- 1,173.27 £/mo
- Est rental Yield
- 4.46 %Increased by 3.24 %
- Crime Rate
- 14.00 %Unchanged by 0.00 %
Agent Activity
Archer & Partners created the listing.
Nearby Schools
| Name | Type | Ofsted | Distance |
|---|---|---|---|
| Oakwood Primary Academy | Academy Sponsor Led | Special Measures | 0.47 KM |
| The Lindfield School | Academy Special Converter | Outstanding | 0.77 KM |
| The Eastbourne Academy | Academy Sponsor Led | Good | 0.83 KM |
| Parkland Junior School | Academy Converter | Good | 1.22 KM |
| Parkland Infant School | Academy Converter | 1.22 KM |
Images
Nearby Streets
| Name | Average Price | Average Sqft | Distance |
|---|---|---|---|
| St. Pauls Close | £ 0 | 0 | 0.00 KM |
| Bluebird Way | £ 195,000 | 0 | 0.00 KM |
| St Martins Road | £ 384,380 | 0 | 0.00 KM |
| Westminster Close | £ 337,500 | 0 | 0.00 KM |
| Wooller Street | £ 457,000 | 0 | 0.00 KM |
Nearby Transport
| Name | NLC | TLC | Distance |
|---|---|---|---|
| Hampden Park (Sussex) | 5450 | HMD | 2.09 KM |
| Polegate | 5455 | PLG | 2.60 KM |
| Eastbourne | 5448 | EBN | 4.65 KM |
| Pevensey And Westham | 5461 | PEV | 6.76 KM |
| Pevensey Bay | 5462 | PEB | 8.77 KM |
Nearby Listings
| Address | Price | Type | Score | Distance |
|---|---|---|---|---|
| Jordans Lane East, Eastbourne | £ 400,000 | BUY | 7 / 10 | 0.00 KM |
| St. Pauls Close, Eastbourne, East Sussex, BN22 | £ 325,000 | BUY | 6 / 10 | 0.10 KM |
| Rowan Avenue, Eastbourne | £ 300,000 | BUY | Unknown | 0.10 KM |
| Hazelwood Avenue, Eastbourne, BN22 0SQ | £ 300,000 | BUY | 7 / 10 | 0.15 KM |
| Pendine Gardens, Eastbourne | £ 325,000 | BUY | 7 / 10 | 0.16 KM |
Nearby Properties
| Address | Price | Distance |
|---|---|---|
| 54 Jordans Lane East | £ 270,000 | 0.01 KM |
| 67 Jordans Lane East | £ 93,000 | 0.01 KM |
| 63 Jordans Lane East | £ 325,000 | 0.01 KM |
| 71 Jordans Lane East | £ 234,950 | 0.01 KM |
| 57 Jordans Lane East | £ 295,000 | 0.01 KM |