BR
Victoria Road, Farnborough, Hampshire, GU14
By Bridges Estate Agents
£ 100,000
Reviews
3 out of 5 stars
Bridges Estate Agents says ..
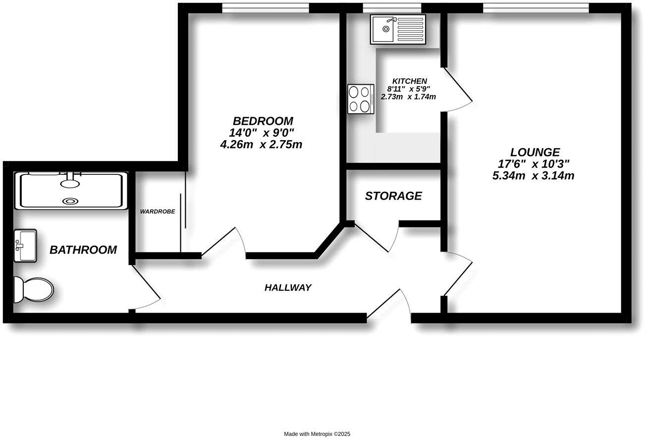
Welcome to Fern Hill Lodge, a spacious second floor apartment offering some lovely views over the gardens and well presented throughout by the current owners. Boasting a generous main bedroom with fitted wardrobe space, modern family bathroom with a shower and a kitchen with built-in applian...
Property Oracle says ..
Therefore, we give this property 7 / 10. *Disclaimer: This is our option and does constitute a recommendation or financial advice. Do your own research. *
- Price
- 8
- Condition
- 7
- Location
- 7
- Land
- 6
- Bedrooms
- 1
- Bathrooms
- 1
- Sqft (est)
- 357.71
The heatmap indicates the level of crime in the area. The color of the heatmap indicates the crime severity and recency.
Metrics Year-on-Year
- Average area value
- 360,272.00 £Increased by 4.93 %
- Est sale value
- 159,896.37 £Increased by 9.29 %
- Average area rental value
- 1,439.00 £/moIncreased by 4.50 %
- Est letting value
- 357.71 £/moUnchanged by 0.00 %
- Est rental Yield
- 4.79 %Decreased by 0.42 %
- Crime Rate
- 3.00 %Unchanged by 0.00 %
from 343,336.00 £
from 146,303.39 £
from 1,377.00 £/mo
from 357.71 £/mo
from 4.81 %
from 3.00 %
Agent Activity
Bridges Estate Agents created the listing.
Nearby Schools
| Name | Type | Ofsted | Distance |
|---|---|---|---|
| St Bernadette'S Catholic Primary School | Voluntary Aided School | Requires improvement | 0.96 KM |
| Owls Children'S Centre | Children's Centre | 1.16 KM | |
| Tower Hill Primary School | Community School | Outstanding | 1.20 KM |
| Cherrywood Community Primary School | Community School | Good | 1.25 KM |
| St Peter'S Church Of England Aided Junior School | Voluntary Aided School | Requires improvement | 1.33 KM |
Images
Nearby Streets
| Name | Average Price | Average Sqft | Distance |
|---|---|---|---|
| Helen Court | £ 0 | 0 | 0.00 KM |
| Kingsmead | £ 0 | 0 | 0.00 KM |
| Firgrove Road | £ 0 | 0 | 0.00 KM |
| Church Path | £ 0 | 0 | 0.00 KM |
| Vickers Close | £ 266,667 | 0 | 0.00 KM |
Nearby Transport
| Name | NLC | TLC | Distance |
|---|---|---|---|
| Farnborough (Main) | 5521 | FNB | 0.69 KM |
| Farnborough North | 5688 | FNN | 2.21 KM |
| Frimley | 5683 | FML | 2.60 KM |
| North Camp | 5636 | NCM | 3.79 KM |
| Blackwater | 5625 | BAW | 4.64 KM |
Nearby Listings
| Address | Price | Type | Score | Distance |
|---|---|---|---|---|
| Victoria Road, Farnborough, Hampshire, GU14 | £ 100,000 | BUY | 7 / 10 | 0.00 KM |
| Victoria Road, Farnborough, Hampshire, GU14 | £ 150,000 | BUY | 6 / 10 | 0.00 KM |
| Victoria Road, Farnborough, Hampshire | £ 100,000 | BUY | Unknown | 0.01 KM |
| Victoria Road, Farnborough, Hampshire | £ 115,000 | BUY | Unknown | 0.01 KM |
| Fern Hill Lodge, Farnborough | £ 135,000 | BUY | 6 / 10 | 0.04 KM |
Nearby Properties
| Address | Price | Distance |
|---|---|---|
| 131 Victoria Road | £ 438,500 | 0.09 KM |
| 85 Victoria Road | £ 143,000 | 0.09 KM |
| 125 Victoria Road | £ 265,000 | 0.09 KM |
| 115a Victoria Road | £ 126,500 | 0.09 KM |
| 93 Victoria Road | £ 245,000 | 0.09 KM |