Newlands, Honiton
ST

Newlands, Honiton

By Stags

£ 235,000

Reviews

3 out of 5 stars

Stags says ..

A well presented character cottage with parking, in the heart of Honiton.

Property Oracle says ..

This is a two-bedroom terraced house in Honiton, Devon. The property is in a good location, close to schools and transport links. The property is in reasonable condition but would benefit from some modernisation. The property has a garden, which is a desirable feature. The asking price is reasonable for the location and the size of the property.

Therefore, we give this property 6 / 10. *Disclaimer: This is our option and does constitute a recommendation or financial advice. Do your own research. *

Price
7
Condition
6
Location
7
Land
7
Bedrooms
2
Bathrooms
1
Sqft (est)
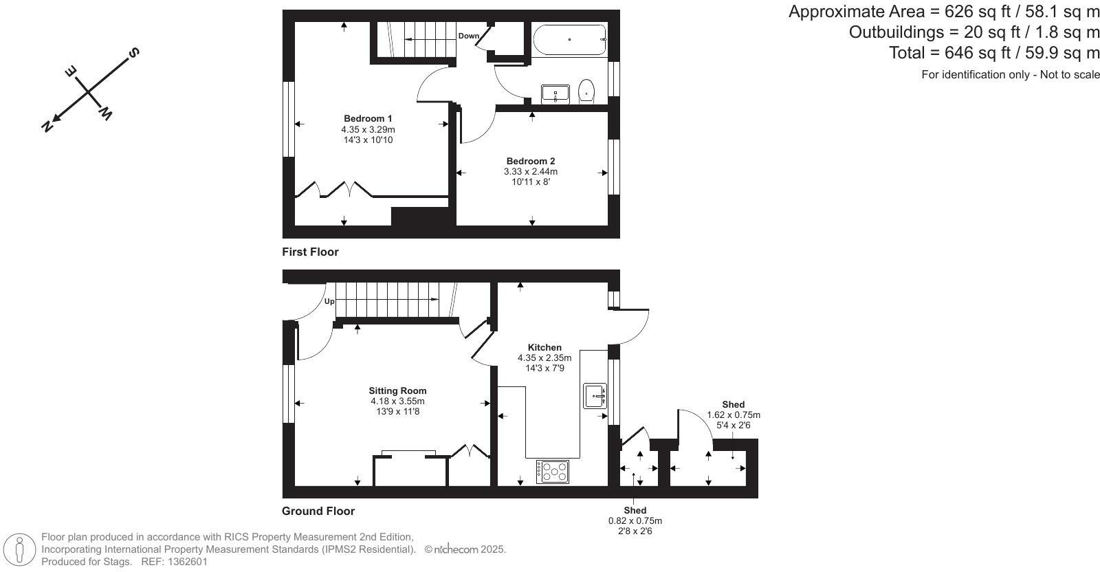
646.00

The heatmap indicates the level of crime in the area. The color of the heatmap indicates the crime severity and recency.

Metrics Year-on-Year

Average area value
345,000.00 £
Increased by 13.42 %
from 304,176.00 £
Est sale value
154,394.00 £
Decreased by 16.14 %
from 184,110.00 £
Average area rental value
1,213.00 £/mo
Increased by 47.75 %
from 821.00 £/mo
Est letting value
0.00 £/mo
from 0.00 £/mo
Est rental Yield
4.22 %
Increased by 30.25 %
from 3.24 %
Crime Rate
27.00 %
Unchanged by 0.00 %
from 27.00 %

Agent Activity

  • Stags created the listing.

Nearby Schools

NameTypeOfstedDistance
Honiton Primary SchoolCommunity SchoolRequires improvement0.15 KM
Honiton Community CollegeAcademy ConverterGood0.27 KM
Littletown Primary AcademyAcademy ConverterGood1.03 KM
Honiton & District Children'S CentreChildren's Centre1.15 KM
Awliscombe Church Of England Primary SchoolVoluntary Aided SchoolGood4.58 KM

Images

1362601-2-68e51370c4b46.jpg 1362601-16-68e515670162b.jpg 1362601-12-68e5141e3287b.jpg 1362601-9-68e513d53bdca.jpg 1362601-22-68e516234f93c.jpg 1362601-19-68e515b5e45f0.jpg 1362601-24-68e516b1149f3.jpg 1362601-7-68e513b1e0684.jpg 1362601-8-68e513be0c6dc.jpg 1362601-5-68e513927f45e.jpg 1362601-17-68e515880a4cc.jpg 1362601-20-68e515da20526.jpg 1362601-21-68e5160668d50.jpg 1362601-1-68e51366961c3.jpg 1362601-3-68e5137c5250e.jpg 1362601-4-68e51386a72a8.jpg 1362601-6-68e513a08181f.jpg 1362601-10-68e513f25a91c.jpg 1362601-11-68e5140be15a7.jpg 1362601-14-68e514926b3ab.jpg 1362601-13-68e514447cf87.jpg 1362601-18-68e515986c9d1.jpg

Nearby Streets

NameAverage PriceAverage SqftDistance
New Street £ 302,47500.00 KM
Kings Arms Cottages £ 000.00 KM
East View Cottages £ 000.00 KM
Ridgeleigh Court £ 111,25000.00 KM
Kings Gardens £ 000.00 KM

Nearby Transport

NameNLCTLCDistance
Honiton5717HON0.51 KM

Nearby Listings

AddressPriceTypeScoreDistance
Newlands, Honiton £ 235,000BUY6 / 100.00 KM
Silver Street, Honiton, Devon, EX14 £ 190,000BUY5 / 100.08 KM
Silver Street, Honiton £ 250,000BUYUnknown0.08 KM
Silver Street, Honiton, EX14 £ 280,000BUY6 / 100.08 KM
Silver Street, HONITON, Devon, EX14 £ 200,000BUY5 / 100.11 KM

Nearby Properties

AddressPriceDistance
8 Newlands £ 230,0000.02 KM
2 Newlands £ 67,0000.02 KM
6 Newlands £ 155,0000.02 KM
15 Newlands £ 110,0000.03 KM
3 Newlands £ 190,0000.03 KM