LO
Craighall Road, Kilmarnock, KA3
By Lomond Property
£ 200,000
Reviews
3 out of 5 stars
Lomond Property says ..
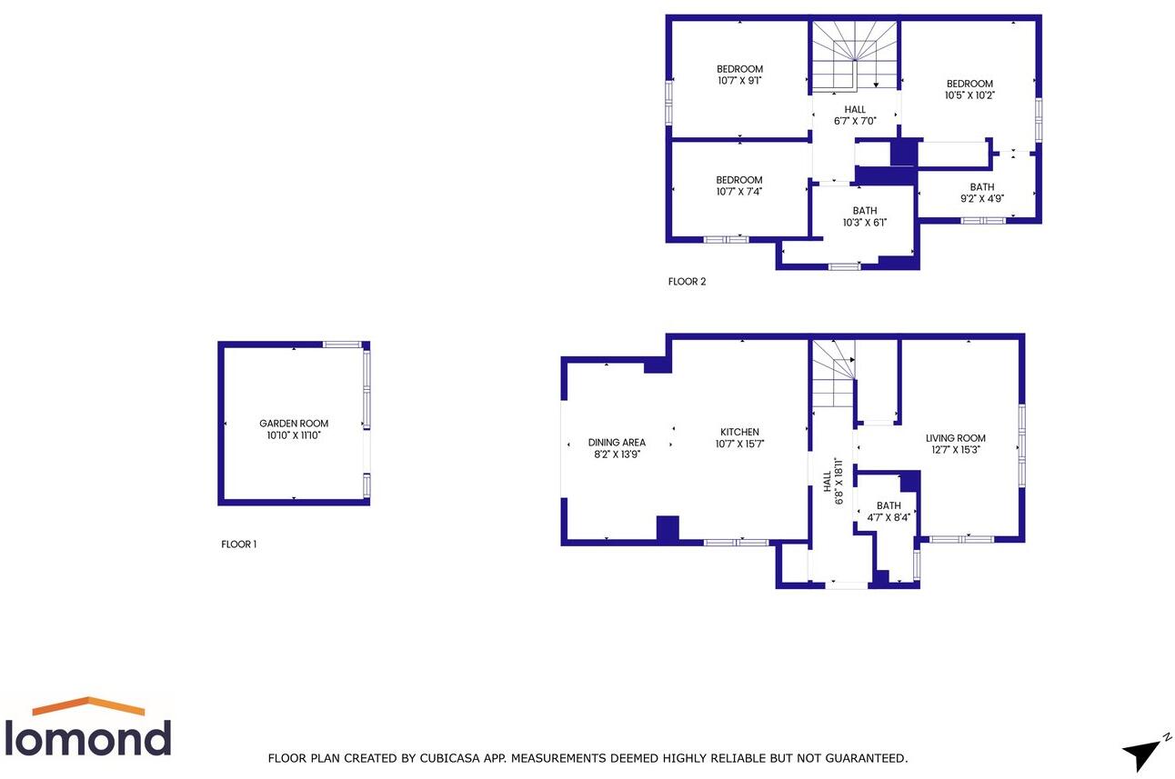
This beautifully presented modern semi-detached villa, built by the highly regarded Barratt Homes, offers a perfect blend of style, space, and practicality, further enhanced by a fantastic extension that has transformed the heart of the home into a stunning dining-sized kitchen.
Property Oracle says ..
Therefore, we give this property 7 / 10. *Disclaimer: This is our option and does constitute a recommendation or financial advice. Do your own research. *
- Price
- 8
- Condition
- 9
- Location
- 6
- Land
- 7
- Bedrooms
- 3
- Bathrooms
- 3
- Sqft (est)
- 733.22
The heatmap indicates the level of crime in the area. The color of the heatmap indicates the crime severity and recency.
Metrics Year-on-Year
- Average area value
- 317,330.00 £Decreased by 9.75 %
- Est sale value
- 313,084.94 £Increased by 25.96 %
- Average area rental value
- 1,425.00 £/moIncreased by 27.12 %
- Est letting value
- 733.22 £/moUnchanged by 0.00 %
- Est rental Yield
- 5.39 %Increased by 40.73 %
- Crime Rate
- 0.00 %
from 351,619.00 £
from 248,561.58 £
from 1,121.00 £/mo
from 733.22 £/mo
from 3.83 %
from 0.00 %
Agent Activity
Lomond Property created the listing.
Images
Nearby Streets
| Name | Average Price | Average Sqft | Distance |
|---|---|---|---|
| Borland | £ 549,000 | 0 | 0.00 KM |
| Southcraig Avenue | £ 357,495 | 0 | 0.00 KM |
| Rumford Place | £ 0 | 0 | 0.00 KM |
| Dalgarven Mews | £ 0 | 0 | 0.00 KM |
| Ochiltree Place | £ 195,000 | 0 | 0.00 KM |
Nearby Transport
| Name | NLC | TLC | Distance |
|---|---|---|---|
| Kilmarnock | 9512 | KMK | 4.04 KM |
| Kilmaurs | 9516 | KLM | 6.34 KM |
| Stewarton | 9554 | STT | 6.96 KM |
Nearby Listings
| Address | Price | Type | Score | Distance |
|---|---|---|---|---|
| Craighall Road, Kilmarnock, KA3 | £ 200,000 | BUY | 7 / 10 | 0.00 KM |
| Craighall Road, Kilmarnock, KA3 | £ 285,000 | BUY | 7 / 10 | 0.00 KM |
| Craighall Road, Kilmarnock, KA3 | £ 295,000 | BUY | 8 / 10 | 0.00 KM |
| Craighall Road, Kilmarnock, KA3 | £ 215,000 | BUY | Unknown | 0.00 KM |
| Craighall Road, Kilmarnock, KA3 | £ 295,000 | BUY | 8 / 10 | 0.00 KM |