Ashtons says ..
A spacious two double bedroom ground floor apartment in an excellent location, just over half a mile from St Albans City Station.
Property Oracle says ..
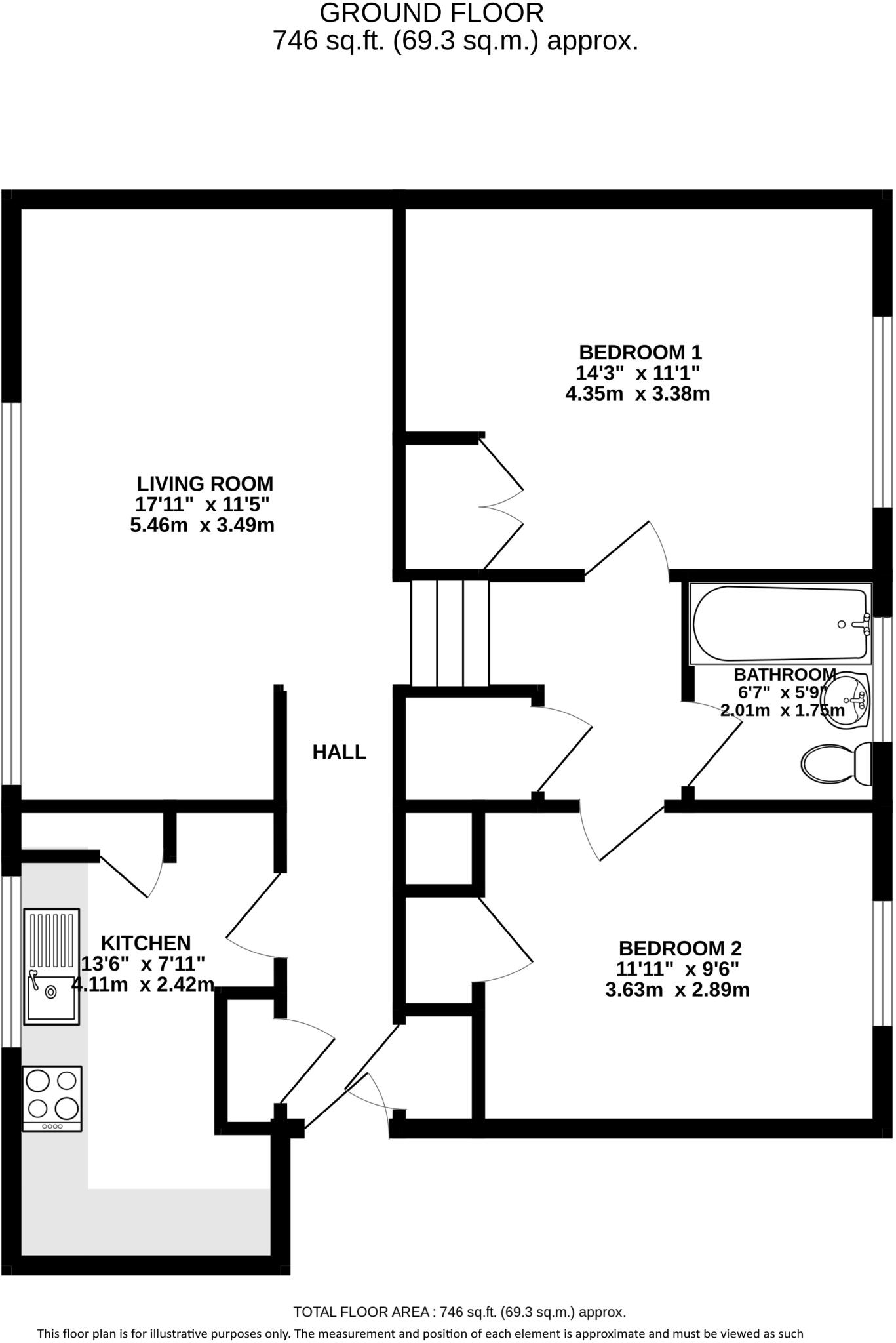
This is a two-bedroom flat located on Riverside Road in St. Albans. The property offers 746 sqft of living space. The flat is situated in a location with good access to transportation, with St Albans City and St Albans Abbey train stations nearby, and several schools. While the property appears to be in generally acceptable condition, some aspects such as the bathroom and kitchen could benefit from modernization. The flat benefits from communal garden space. Considering the location, size, and condition, the asking price of £300,000 seems reasonable and in line with the local market for similar properties. The property is being marketed by Ashtons estate agents.
Therefore, we give this property 6 / 10. *Disclaimer: This is our option and does constitute a recommendation or financial advice. Do your own research. *
- Price
- 7
- Condition
- 6
- Location
- 7
- Land
- 5
- Bedrooms
- 2
- Bathrooms
- 1
- Sqft (est)
- 746.00
The heatmap indicates the level of crime in the area. The color of the heatmap indicates the crime severity and recency.
Metrics Year-on-Year
- Average area value
- 472,750.00 £Decreased by 21.88 %
- Est sale value
- 573,674.00 £Increased by 27.74 %
- Average area rental value
- 1,418.00 £/moDecreased by 35.04 %
- Est letting value
- 1,492.00 £/moUnchanged by 0.00 %
- Est rental Yield
- 3.60 %Decreased by 16.86 %
- Crime Rate
- 4.00 %Unchanged by 0.00 %
Agent Activity
Ashtons created the listing.
Nearby Schools
| Name | Type | Ofsted | Distance |
|---|---|---|---|
| St Peter'S School | Community School | Good | 0.21 KM |
| St Albans Independent College | Other Independent School | Good | 0.33 KM |
| Sa6 St Albans Family Centre | Children's Centre | 0.80 KM | |
| Loreto College | Academy Converter | Outstanding | 0.87 KM |
| Alban City School | Free Schools | Good | 0.96 KM |
Images
Nearby Streets
| Name | Average Price | Average Sqft | Distance |
|---|---|---|---|
| Riverside Court | £ 0 | 0 | 0.00 KM |
| London Road | £ 1,000,000 | 0 | 0.00 KM |
| Jenny Lane | £ 0 | 0 | 0.00 KM |
| Jubilee Square | £ 200,833 | 0 | 0.00 KM |
| The Brambles | £ 374,999 | 0 | 0.00 KM |
Nearby Transport
| Name | NLC | TLC | Distance |
|---|---|---|---|
| St Albans City | 1548 | SAC | 0.80 KM |
| St Albans Abbey | 1562 | SAA | 1.04 KM |
| Park Street | 1561 | PKT | 2.42 KM |
| How Wood (Hertfordshire) | 1563 | HWW | 3.39 KM |
| Bricket Wood | 1560 | BWO | 5.35 KM |
Nearby Listings
| Address | Price | Type | Score | Distance |
|---|---|---|---|---|
| Riverside Road, St Albans, AL1 | £ 300,000 | BUY | 6 / 10 | 0.00 KM |
| Riverside Road, St. Albans | £ 325,000 | BUY | 7 / 10 | 0.03 KM |
| Millers Rise, St. Albans, AL1 1QW | £ 625,000 | BUY | 8 / 10 | 0.04 KM |
| Millers Rise, St. Albans, Hertfordshire | £ 575,000 | BUY | 6 / 10 | 0.05 KM |
| Millers Rise, St Albans, Herts, AL1 | £ 350,000 | BUY | Unknown | 0.05 KM |
Nearby Properties
| Address | Price | Distance |
|---|---|---|
| 15 Millers Rise | £ 187,000 | 0.04 KM |
| 50 Millers Rise | £ 405,000 | 0.04 KM |
| 41 Millers Rise | £ 248,500 | 0.04 KM |
| 28 Millers Rise | £ 187,500 | 0.04 KM |
| 7 Millers Rise | £ 185,000 | 0.04 KM |