Fox Street, Great Gransden. SG19 3AA
By Gatehouse Estates
£ 650,000
Reviews
4 out of 5 stars
Gatehouse Estates says ..
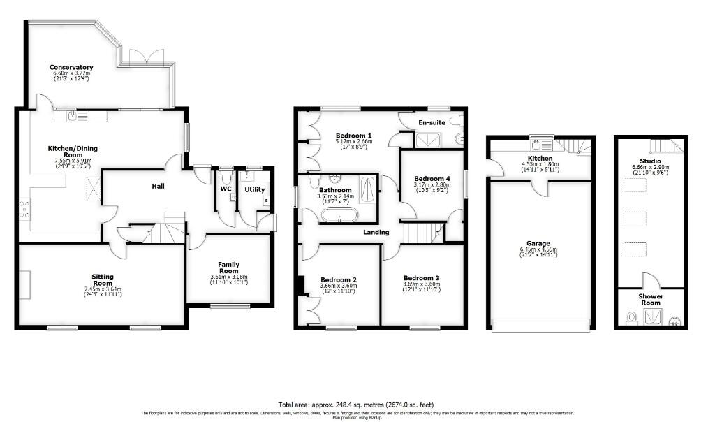
Located in the heart of the village this well-established four bedroom family home has a mature South West facing garden and a guest annexe.
Property Oracle says ..
This property is a 5 bedroom house located in Great Gransden, Cambridgeshire. The property benefits from a large garden and is within easy reach of local amenities and highly-rated schools. The house itself appears well-maintained and benefits from some recent modernisation, but retains some traditional character. The list price is higher than the average for the area but is in line with other similar properties in the immediate vicinity. The property has a spacious layout and includes a conservatory, garage and studio. Overall, this is a desirable family home in a sought-after location.
Therefore, we give this property 8 / 10. *Disclaimer: This is our option and does constitute a recommendation or financial advice. Do your own research. *
- Price
- 7
- Condition
- 8
- Location
- 9
- Land
- 8
- Bedrooms
- 5
- Bathrooms
- 3
- Sqft (est)
- 2,300.04
- Lot (est)
- 2,674.00
The heatmap indicates the level of crime in the area. The color of the heatmap indicates the crime severity and recency.
Metrics Year-on-Year
- Average area value
- 265,066.00 £Increased by 22.85 %
- Est sale value
- 1,000,517.40 £Increased by 59.34 %
- Average area rental value
- 1,330.00 £/moIncreased by 2.94 %
- Est letting value
- 4,600.08 £/moIncreased by 100.00 %
- Est rental Yield
- 6.02 %Decreased by 16.27 %
- Crime Rate
- 27.00 %Unchanged by 0.00 %
Agent Activity
Gatehouse Estates created the listing.
Nearby Schools
| Name | Type | Ofsted | Distance |
|---|---|---|---|
| Barnabas Oley Cofe Primary School | Voluntary Controlled School | Outstanding | 0.19 KM |
| The Newton Community Primary School | Community School | Good | 3.53 KM |
| Gamlingay Village Primary | Academy Converter | Good | 6.23 KM |
| Cambourne Village College | Free Schools | Outstanding | 7.53 KM |
| Pendragon Community Primary School | Community School | Good | 7.59 KM |
Images
Nearby Streets
| Name | Average Price | Average Sqft | Distance |
|---|---|---|---|
| East Street | £ 0 | 0 | 0.00 KM |
| Webbs Meadow | £ 0 | 0 | 0.00 KM |
| Poplar Close | £ 470,000 | 0 | 0.00 KM |
| Primrose Walk | £ 325,000 | 0 | 0.00 KM |
| The Leys | £ 0 | 0 | 0.00 KM |
Nearby Listings
| Address | Price | Type | Score | Distance |
|---|---|---|---|---|
| Fox Street, Great Gransden. SG19 3AA | £ 650,000 | BUY | 8 / 10 | 0.00 KM |
| Eltisley Road, Great Gransden SG19 3AR | £ 795,000 | BUY | 6 / 10 | 0.17 KM |
| Caxton Road, Great Gransden, Sandy, Bedfordshire, SG19 | £ 800,000 | BUY | 8 / 10 | 0.21 KM |
| Winchfield, Great Gransden, Sandy, SG19 | £ 725,000 | BUY | Unknown | 0.21 KM |
| Winchfield, Great Gransden | £ 600,000 | BUY | 7 / 10 | 0.22 KM |
Nearby Properties
| Address | Price | Distance |
|---|---|---|
| 6 - 8 Fox Street | £ 430,000 | 0.07 KM |
| 30 Fox Street | £ 430,000 | 0.07 KM |
| 10 Fox Street | £ 430,000 | 0.07 KM |
| 4 Fox Street | £ 420,000 | 0.07 KM |
| 20 Fox Street | £ 450,000 | 0.07 KM |