AU
Flat 4, 11 Conygre Road, Filton, Bristol BS34 7DA
By Auction House
£ 120,000
Reviews
3 out of 5 stars
Auction House says ..
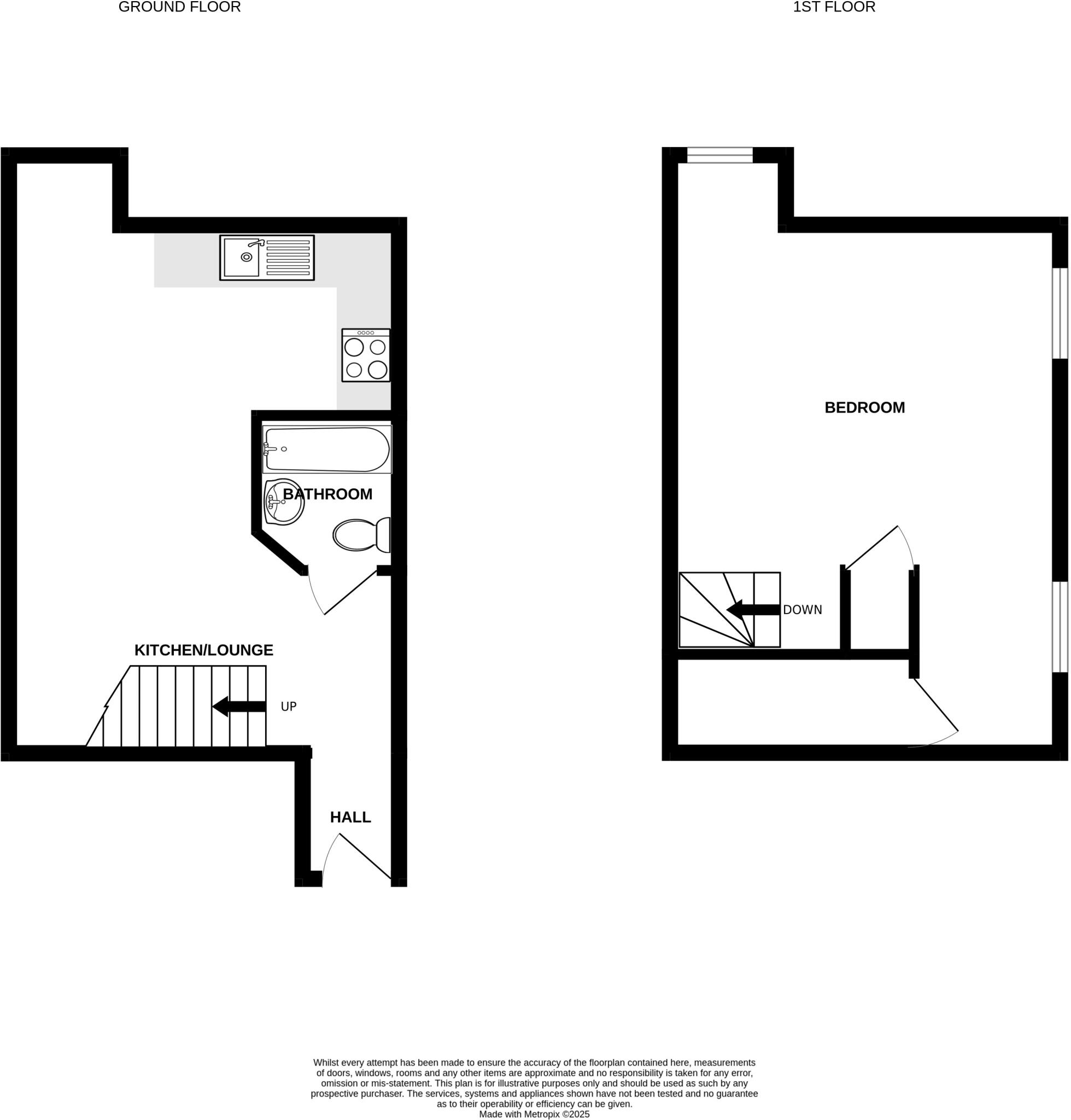
*Guide Price £120,000. For Sale by Unconditional Livestream Auction on Tuesday 29th July 2025 at 14:00. First floor flat with bedroom, bathroom and an open plan living room / dining room / kitchen. Legal pack available to download free of charge from our website.
Property Oracle says ..
Therefore, we give this property 6 / 10. *Disclaimer: This is our option and does constitute a recommendation or financial advice. Do your own research. *
- Price
- 7
- Condition
- 7
- Location
- 7
- Land
- 4
- Bedrooms
- 1
- Bathrooms
- 1
- Sqft (est)
- 464.00
The heatmap indicates the level of crime in the area. The color of the heatmap indicates the crime severity and recency.
Metrics Year-on-Year
- Average area value
- 334,369.00 £Decreased by 4.41 %
- Est sale value
- 181,888.00 £Increased by 0.51 %
- Average area rental value
- 2,075.00 £/moIncreased by 5.22 %
- Est letting value
- 928.00 £/moUnchanged by 0.00 %
- Est rental Yield
- 7.45 %Increased by 10.04 %
- Crime Rate
- 9.00 %Unchanged by 0.00 %
from 349,793.00 £
from 180,960.00 £
from 1,972.00 £/mo
from 928.00 £/mo
from 6.77 %
from 9.00 %
Agent Activity
Auction House created the listing.
Nearby Schools
| Name | Type | Ofsted | Distance |
|---|---|---|---|
| South Gloucestershire And Stroud College | Further Education | Good | 0.51 KM |
| Filton Children'S Centre | Children's Centre | 0.53 KM | |
| Filton Hill Primary School | Academy Converter | Good | 0.59 KM |
| Stoke Park Primary School & Early Years Centre | Children's Centre | 0.71 KM | |
| Shield Road Primary School | Community School | Good | 0.79 KM |
Images
Nearby Streets
| Name | Average Price | Average Sqft | Distance |
|---|---|---|---|
| North Way | £ 0 | 0 | 0.00 KM |
| Stuart MacCallum Close | £ 0 | 0 | 0.00 KM |
| The Sidings | £ 0 | 0 | 0.00 KM |
| Park Road | £ 582,857 | 0 | 0.00 KM |
| Belvedere Close | £ 0 | 0 | 0.00 KM |
Nearby Transport
| Name | NLC | TLC | Distance |
|---|---|---|---|
| Filton Abbey Wood | 3235 | FIT | 1.16 KM |
| Patchway | 3213 | PWY | 1.92 KM |
| Bristol Parkway | 3230 | BPW | 3.21 KM |
| Stapleton Road | 3250 | SRD | 4.85 KM |
| Montpelier | 3203 | MTP | 5.11 KM |
Nearby Listings
| Address | Price | Type | Score | Distance |
|---|---|---|---|---|
| Flat 4, 11 Conygre Road, Filton, Bristol BS34 7DA | £ 120,000 | BUY | 6 / 10 | 0.00 KM |
| Lower House, Conygre Road, Filton, Bristol, BS34 | £ 230,000 | BUY | 6 / 10 | 0.06 KM |
| Branksome Drive, Filton, Bristol | £ 315,000 | BUY | 6 / 10 | 0.07 KM |
| Station Road, Filton, Bristol | £ 375,000 | BUY | 7 / 10 | 0.09 KM |
| Mayville Avenue, Bristol, BS34 | £ 325,000 | BUY | Unknown | 0.10 KM |
Nearby Properties
| Address | Price | Distance |
|---|---|---|
| 24 Conygre Road | £ 255,000 | 0.06 KM |
| 7 Conygre Road | £ 159,000 | 0.06 KM |
| 5 Conygre Road | £ 120,000 | 0.06 KM |
| 6 Conygre Road | £ 310,000 | 0.06 KM |
| 32 Conygre Road | £ 318,000 | 0.06 KM |