Barnard Marcus says ..
Located in a peaceful cul-de-sac in High Barnet you will find this three-bedroom extended and well-presented end terraced family home. The residence with a modern feel throughout has been cared for by the current owners, offers bright and spacious accommodation throughout.
Property Oracle says ..
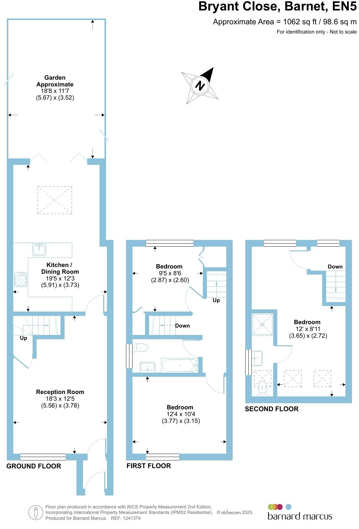
This three-bedroom, two-bathroom semi-detached house in Bryant Close, Barnet (EN5 2TG), is presented by Barnard Marcus. The property boasts a modern, updated interior, with a particular highlight being the recently renovated kitchen and bathrooms. The kitchen features contemporary cabinetry, granite-style countertops, and integrated appliances. The bathrooms showcase modern tiling and fixtures. The property also benefits from a rear extension, increasing the overall living space. The exterior of the property appears well-maintained, though the garden is relatively small. The location in Barnet offers access to various amenities including schools and transport links, although precise distances are not specified. The property’s asking price of £600,000 seems competitive within the Barnet market, although a precise price per square foot comparison is unavailable from the given data. Overall, the property presents as a well-maintained family home in a convenient location, suitable for those seeking a move-in ready property in North London. Further investigation into the precise distance to amenities and a detailed comparison with similar recently sold properties would provide a more comprehensive valuation.
Therefore, we give this property 6 / 10. *Disclaimer: This is our option and does constitute a recommendation or financial advice. Do your own research. *
- Price
- 7
- Condition
- 8
- Location
- 7
- Land
- 4
- Bedrooms
- 3
- Bathrooms
- 2
- Sqft (est)
- 1,062.00
The heatmap indicates the level of crime in the area. The color of the heatmap indicates the crime severity and recency.
Metrics Year-on-Year
- Average area value
- 611,244.00 £Decreased by 15.06 %
- Est sale value
- 578,790.00 £Decreased by 7.78 %
- Average area rental value
- 2,619.00 £/moIncreased by 31.34 %
- Est letting value
- 2,124.00 £/moIncreased by 100.00 %
- Est rental Yield
- 5.14 %Increased by 54.82 %
- Crime Rate
- 7.00 %Unchanged by 0.00 %
Agent Activity
Barnard Marcus created the listing.
Nearby Schools
| Name | Type | Ofsted | Distance |
|---|---|---|---|
| Ark Pioneer Academy | Free Schools | 0.40 KM | |
| St Catherine'S Rc School | Voluntary Aided School | Outstanding | 0.47 KM |
| Grasvenor Avenue Infant School | Academy Converter | Good | 0.75 KM |
| Queen Elizabeth'S Girls' School | Academy Converter | Good | 0.80 KM |
| The Totteridge Academy | Academy Sponsor Led | Good | 0.88 KM |
Images
Nearby Streets
| Name | Average Price | Average Sqft | Distance |
|---|---|---|---|
| Finch Close | £ 0 | 0 | 0.00 KM |
| Hermes Close | £ 0 | 0 | 0.00 KM |
| Underhill | £ 325,000 | 0 | 0.00 KM |
| Lion Yard | £ 0 | 0 | 0.00 KM |
| Rowan Walk | £ 585,000 | 0 | 0.00 KM |
Nearby Transport
| Name | NLC | TLC | Distance |
|---|---|---|---|
| New Barnet | 6018 | NBA | 2.48 KM |
| Oakleigh Park | 6020 | OKL | 3.29 KM |
| Hadley Wood | 6075 | HDW | 3.37 KM |
| Potters Bar | 6022 | PBR | 5.83 KM |
| New Southgate | 6019 | NSG | 6.70 KM |
Nearby Listings
| Address | Price | Type | Score | Distance |
|---|---|---|---|---|
| Bryant Close, Barnet, North London, EN5 | £ 550,000 | BUY | 6 / 10 | 0.00 KM |
| Bryant Close, BARNET | £ 255,000 | BUY | 5 / 10 | 0.00 KM |
| Bryant Close, BARNET | £ 299,000 | BUY | Unknown | 0.00 KM |
| Bryant Close, Barnet, EN5 | £ 500,000 | BUY | 6 / 10 | 0.04 KM |
| Bryant Close, Finchley | £ 600,000 | BUY | Unknown | 0.05 KM |
Nearby Properties
| Address | Price | Distance |
|---|---|---|
| 23 Bryant Close | £ 144,950 | 0.00 KM |
| 7 Bryant Close | £ 400,000 | 0.00 KM |
| 1 Bryant Close | £ 359,000 | 0.00 KM |
| 2 Bryant Close | £ 132,500 | 0.00 KM |
| 24 Bryant Close | £ 140,000 | 0.00 KM |