AU
Wensleydale Drive, Leeds, West Yorkshire
By Auction House
£ 45,000
Reviews
2 out of 5 stars
Auction House says ..
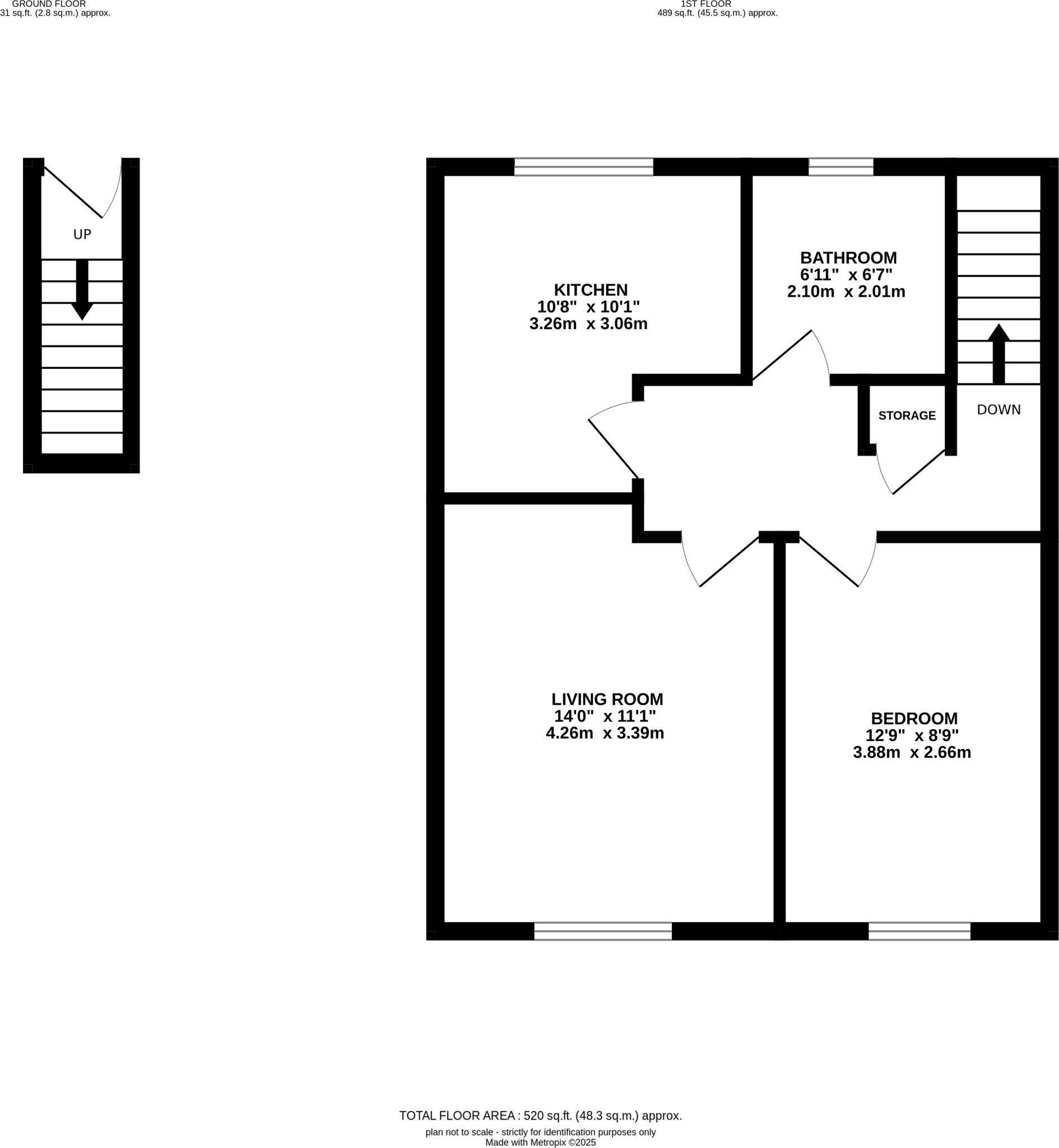
This one bedroom flat provides an opportunity for an investor seeking an affordable addition to a rental portfolio, as we believe this could achieve approximately £650-£700pcm rental income once refurbished throughout. Internally, it comprises a living room, kitchen, bedroom and bathr...
Property Oracle says ..
Therefore, we give this property 4 / 10. *Disclaimer: This is our option and does constitute a recommendation or financial advice. Do your own research. *
- Price
- 9
- Condition
- 3
- Location
- 6
- Land
- 1
- Bedrooms
- 1
- Bathrooms
- 1
- Sqft (est)
- 520.00
The heatmap indicates the level of crime in the area. The color of the heatmap indicates the crime severity and recency.
Metrics Year-on-Year
- Average area value
- 158,332.00 £Decreased by 16.71 %
- Est sale value
- 126,360.00 £Increased by 43.79 %
- Average area rental value
- 837.00 £/moIncreased by 15.13 %
- Est letting value
- 520.00 £/mo
- Est rental Yield
- 6.34 %Increased by 38.13 %
- Crime Rate
- 7.00 %Unchanged by 0.00 %
from 190,105.00 £
from 87,880.00 £
from 727.00 £/mo
from 0.00 £/mo
from 4.59 %
from 7.00 %
Agent Activity
Auction House created the listing.
Nearby Schools
| Name | Type | Ofsted | Distance |
|---|---|---|---|
| Future Horizons Leeds Ltd | Special Post 16 Institution | 0.73 KM | |
| Christ The King Catholic Primary School, A Voluntary Academy | Academy Sponsor Led | Good | 0.91 KM |
| Raynville Academy | Academy Converter | 1.03 KM | |
| Hollybush Primary | Community School | Good | 1.03 KM |
| Kirkstall Children'S Centre | Children's Centre | 1.48 KM |
Images
Nearby Streets
| Name | Average Price | Average Sqft | Distance |
|---|---|---|---|
| Wensleydale Avenue | £ 0 | 0 | 0.00 KM |
| Wensleydale Close | £ 0 | 0 | 0.00 KM |
| Wyther Park Close | £ 0 | 0 | 0.00 KM |
| Houghley Gill | £ 0 | 0 | 0.00 KM |
| The Courtyard | £ 0 | 0 | 0.00 KM |
Nearby Transport
| Name | NLC | TLC | Distance |
|---|---|---|---|
| Headingley | 8498 | HDY | 2.06 KM |
| Kirkstall Forge | 6544 | KLF | 2.27 KM |
| Bramley (West Yorkshire) | 8496 | BLE | 3.05 KM |
| Burley Park | 8500 | BUY | 3.57 KM |
| Horsforth | 8499 | HRS | 4.99 KM |
Nearby Listings
| Address | Price | Type | Score | Distance |
|---|---|---|---|---|
| Wensleydale Drive, Leeds, West Yorkshire | £ 45,000 | BUY | 4 / 10 | 0.00 KM |
| Wensleydale Drive, Leeds, West Yorkshire, LS12 | £ 104,995 | BUY | 6 / 10 | 0.04 KM |
| Wyther Park Hill, Leeds | £ 165,000 | BUY | 7 / 10 | 0.15 KM |
| Wensleydale Close, Leeds, LS12 | £ 210,000 | BUY | 7 / 10 | 0.17 KM |
| Wharfedale Close, Leeds | £ 205,000 | BUY | Unknown | 0.18 KM |
Nearby Properties
| Address | Price | Distance |
|---|---|---|
| 34 Wensleydale Drive | £ 56,000 | 0.03 KM |
| 19 Wensleydale Drive | £ 82,000 | 0.03 KM |
| 7 Wensleydale Drive | £ 180,000 | 0.03 KM |
| 14 Wensleydale Drive | £ 155,000 | 0.03 KM |
| 5 Wensleydale Drive | £ 102,000 | 0.03 KM |