Firwood Drive, Camberley, Surrey, GU15
By Orchard
£ 150,000
Reviews
3 out of 5 stars
Orchard says ..
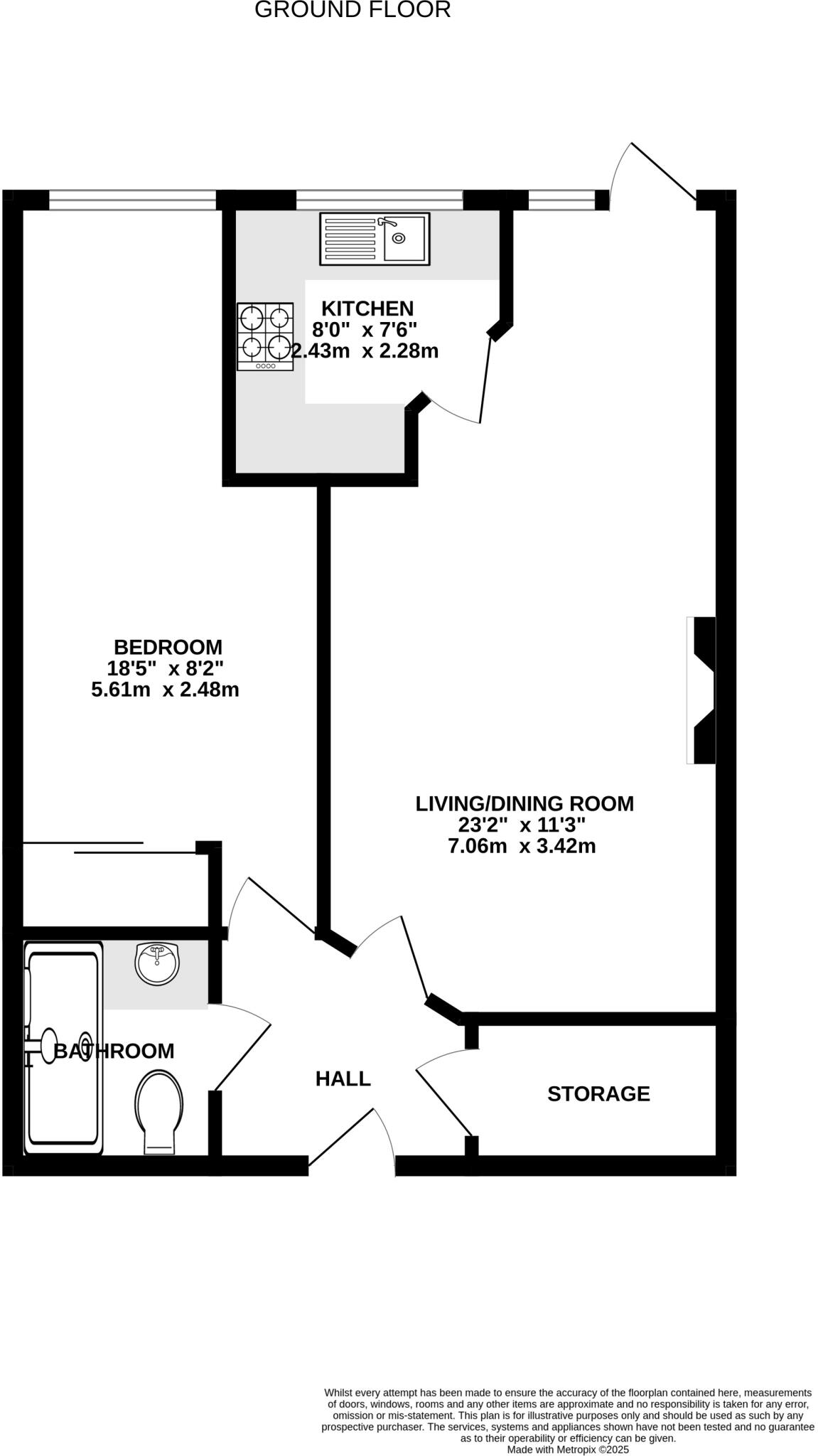
Offered for sale to the over 55s’, with no onward chain complications and situated in a peaceful location yet within the heart of the town centre, is this outstanding one double bedroom ground floor apartment with the added benefit of storage space, fitted wardrobes and access from the livi...
Property Oracle says ..
This one-bedroom apartment in Camberley, Surrey, presents a potentially attractive option for first-time buyers, downsizers, or investors. Located within a short distance of Camberley train station and several schools, the property benefits from a convenient location. The interior is presented in a clean and well-maintained condition, although some modernisation might enhance its appeal. While the property itself lacks a private garden, access to communal gardens offers a degree of outdoor space. The list price appears reasonable when compared to other similar properties in the area, although a precise assessment is hampered by the lack of detailed square footage information for comparable listings. Overall, the property offers a balanced combination of location, condition, and price, making it a worthwhile consideration for potential buyers within its target market.
Therefore, we give this property 6 / 10. *Disclaimer: This is our option and does constitute a recommendation or financial advice. Do your own research. *
- Price
- 7
- Condition
- 6
- Location
- 7
- Land
- 4
- Bedrooms
- 1
- Bathrooms
- 0
- Sqft (est)
- 846.80
The heatmap indicates the level of crime in the area. The color of the heatmap indicates the crime severity and recency.
Metrics Year-on-Year
- Average area value
- 226,464.00 £Decreased by 27.05 %
- Est sale value
- 243,878.40 £Decreased by 24.61 %
- Average area rental value
- 1,243.00 £/moDecreased by 7.99 %
- Est letting value
- 846.80 £/moUnchanged by 0.00 %
- Est rental Yield
- 6.59 %Increased by 26.25 %
- Crime Rate
- 31.00 %Unchanged by 0.00 %
Agent Activity
Orchard created the listing.
Nearby Schools
| Name | Type | Ofsted | Distance |
|---|---|---|---|
| South Camberley Sure Start Children'S Centre | Children's Centre Linked Site | 0.64 KM | |
| Lyndhurst School | Other Independent School | 0.71 KM | |
| Kings International College | Foundation School | Good | 1.48 KM |
| South Camberley Primary And Nursery School | Academy Converter | 1.52 KM | |
| The Orchard Sure Start Children'S Centre | Children's Centre | 1.75 KM |
Images
Nearby Streets
| Name | Average Price | Average Sqft | Distance |
|---|---|---|---|
| Charles Street cycle path | £ 185,000 | 0 | 0.00 KM |
| Shelley Court | £ 0 | 0 | 0.00 KM |
| Firlands Avenue | £ 735,000 | 0 | 0.00 KM |
| High Street | £ 140,000 | 0 | 0.00 KM |
| The Bowlings | £ 357,500 | 0 | 0.00 KM |
Nearby Transport
| Name | NLC | TLC | Distance |
|---|---|---|---|
| Camberley | 5682 | CAM | 0.48 KM |
| Frimley | 5683 | FML | 2.68 KM |
| Blackwater | 5625 | BAW | 3.15 KM |
| Farnborough North | 5688 | FNN | 3.82 KM |
| Farnborough (Main) | 5521 | FNB | 4.45 KM |
Nearby Listings
| Address | Price | Type | Score | Distance |
|---|---|---|---|---|
| Firwood Drive, Camberley, Surrey, GU15 | £ 150,000 | BUY | 6 / 10 | 0.00 KM |
| Firwood Drive, Camberley, Surrey, GU15 | £ 140,000 | BUY | 5 / 10 | 0.00 KM |
| The Courtyard, Camberley | £ 220,000 | BUY | 5 / 10 | 0.00 KM |
| Southwell Park Road, Camberley, Surrey, GU15 | £ 135,000 | BUY | 6 / 10 | 0.03 KM |
| Southwell Park Road, Camberley, Surrey, GU15 | £ 230,000 | BUY | 6 / 10 | 0.03 KM |
Nearby Properties
| Address | Price | Distance |
|---|---|---|
| 20 Southwell Park Road | £ 634,700 | 0.10 KM |
| 7 Southwell Park Road | £ 250,000 | 0.13 KM |
| 49 Firwood Drive | £ 665,000 | 0.18 KM |
| 21 Firwood Drive | £ 650,000 | 0.18 KM |
| 45 Firwood Drive | £ 306,000 | 0.18 KM |