Bay Close, Horley, Surrey, RH6
By Mayhew Estates
£ 425,000
Reviews
3 out of 5 stars
Mayhew Estates says ..
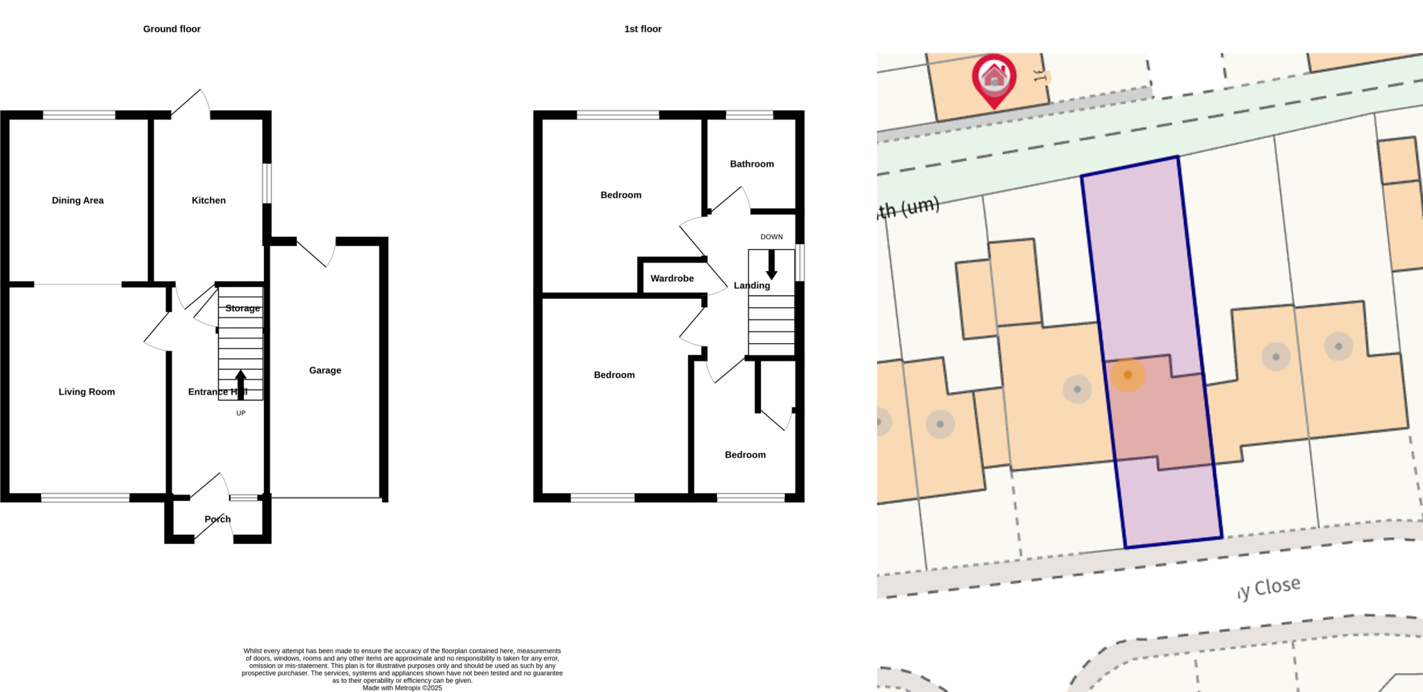
SOLD STC............................OFFERED TO THE MARKET ON A PRICE GUIDE OF £425,000 - £450,000. CHAIN FREE! Situated in a popular cul-de-sac is this three bedroom semi-detached family home. In need of some modernisation this is perfect for a family to put their mark on!
Property Oracle says ..
This three-bedroom semi-detached house in Horley, Surrey, presents a mixed bag of prospects. Its location is a key strength, offering convenient access to Gatwick Airport, London, and several well-rated schools. This makes it appealing to families and commuters. However, the property clearly requires some level of modernisation. The interior décor and fittings appear dated in most rooms, particularly in the bathroom. The images show some damage to walls and surfaces. While the garden is a nice feature and of reasonable size, there’s a lack of information provided about the plot’s total dimensions. The asking price of £425,000, while in line with reported sales in the area needs to be reviewed against comparable properties requiring similar renovation work. A buyer should budget for significant refurbishment costs to improve both the aesthetic appeal and energy efficiency of the property. Overall, this property might be attractive to buyers seeking a project who value the location and potential for increased value after renovation.
Therefore, we give this property 6 / 10. *Disclaimer: This is our option and does constitute a recommendation or financial advice. Do your own research. *
- Price
- 7
- Condition
- 5
- Location
- 7
- Land
- 6
- Bedrooms
- 3
- Bathrooms
- 1
- Sqft (est)
- 1,000.00
The heatmap indicates the level of crime in the area. The color of the heatmap indicates the crime severity and recency.
Metrics Year-on-Year
- Average area value
- 516,000.00 £Increased by 0.91 %
- Est sale value
- 476,000.00 £Increased by 62.46 %
- Average area rental value
- 2,011.00 £/moDecreased by 20.48 %
- Est letting value
- 1,000.00 £/moUnchanged by 0.00 %
- Est rental Yield
- 4.68 %Decreased by 21.08 %
- Crime Rate
- 2.00 %Unchanged by 0.00 %
Agent Activity
Mayhew Estates created the listing.
Nearby Schools
| Name | Type | Ofsted | Distance |
|---|---|---|---|
| Meath Green Junior School | Community School | Good | 0.45 KM |
| Westvale Park Primary Academy | Free Schools | 0.51 KM | |
| Meath Green Infant School | Community School | Outstanding | 0.96 KM |
| Horley Community Sure Start Children'S Centre | Children's Centre | 1.00 KM | |
| Manorfield Primary And Nursery School | Community School | Good | 1.49 KM |
Images
Nearby Streets
| Name | Average Price | Average Sqft | Distance |
|---|---|---|---|
| Mann Avenue | £ 470,000 | 0 | 0.00 KM |
| Earhart Drive | £ 375,000 | 0 | 0.00 KM |
| Stanton Crescent | £ 0 | 0 | 0.00 KM |
| Palmer Close | £ 0 | 0 | 0.00 KM |
| Anning Close | £ 0 | 0 | 0.00 KM |
Nearby Transport
| Name | NLC | TLC | Distance |
|---|---|---|---|
| Salfords (Surrey) | 5380 | SAF | 2.49 KM |
| Horley | 5365 | HOR | 2.72 KM |
| Gatwick Airport | 5416 | GTW | 3.81 KM |
| Earlswood (Surrey) | 5414 | ELD | 4.68 KM |
| Redhill | 5478 | RDH | 6.19 KM |
Nearby Listings
| Address | Price | Type | Score | Distance |
|---|---|---|---|---|
| Bay Close, Horley, Surrey, RH6 | £ 425,000 | BUY | 6 / 10 | 0.00 KM |
| Tarham Close, Horley, RH6 | £ 450,000 | BUY | 7 / 10 | 0.12 KM |
| Earhart Drive, Horley, Surrey, RH6 | £ 390,000 | BUY | 7 / 10 | 0.13 KM |
| Poynes Road, Horley, Surrey, RH6 | £ 475,000 | BUY | 7 / 10 | 0.18 KM |
| Stanton Crescent, Horley, Surrey, RH6 | £ 515,000 | BUY | 8 / 10 | 0.20 KM |
Nearby Properties
| Address | Price | Distance |
|---|---|---|
| 6 Bay Close | £ 248,000 | 0.00 KM |
| 30 Bay Close | £ 600,000 | 0.00 KM |
| 10 Bay Close | £ 245,000 | 0.00 KM |
| 28 Bay Close | £ 242,000 | 0.00 KM |
| 26 Bay Close | £ 220,000 | 0.00 KM |