Bewick Mews, Hungerford, Berkshire, RG17
By Marc Allen Estate Agents
£ 425,000
Reviews
3 out of 5 stars
Marc Allen Estate Agents says ..
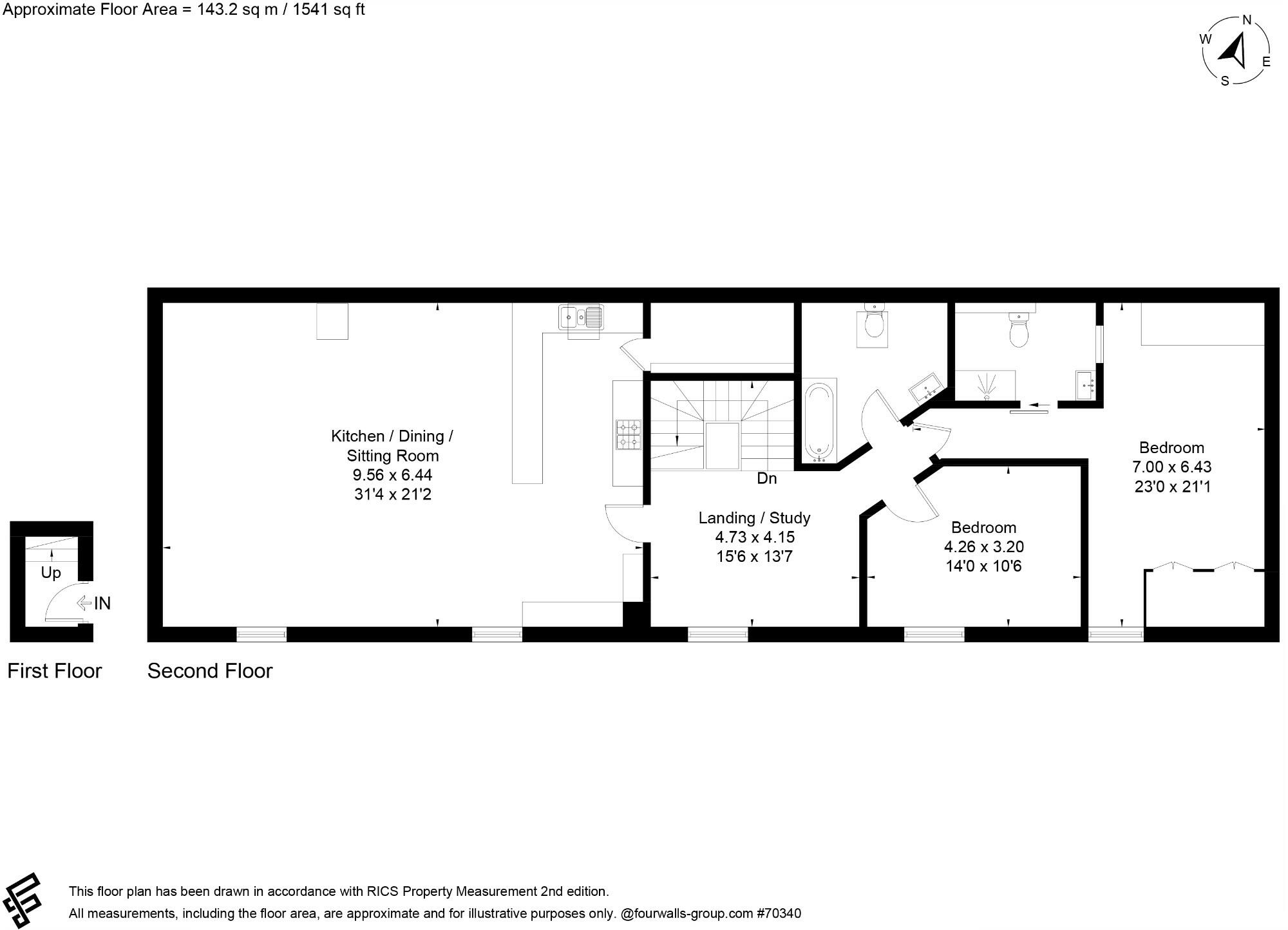
An incredibly spacious penthouse apartment of over 1500 sq ft, situated in the heart of the town.
Property Oracle says ..
This penthouse apartment in Bewick Mews, Hungerford, offers spacious accommodation with two bedrooms and two bathrooms, spanning approximately 1541 square feet. The property boasts a modern, contemporary design evident in the well-maintained interior and exterior. The kitchen is contemporary and well-equipped, while the living spaces are bright and airy. Two bathrooms cater to the residents’ needs. The interior photos suggest a move-in ready condition. The building itself looks newly constructed or recently renovated.
The location is a major selling point. Hungerford is a popular market town in West Berkshire, benefiting from good transport connections via the nearby Hungerford train station, providing links to major cities and commuter areas. Several well-regarded schools are also nearby, making it an attractive choice for families. The property’s central location offers easy access to the town’s amenities, including shops, restaurants and local attractions.
While the property benefits from a central location and modern features, one notable aspect is the absence of outdoor space typically associated with houses, though communal areas are available based on images. This might be a factor influencing buyer choices for families or individuals who value a private garden. The price appears to be reflective of the town and similar properties in close proximity but more comparative data would assist to provide more detail. Buyers should conduct thorough research and compare prices with other similar properties before making a purchasing decision. Overall, this penthouse apartment presents a desirable proposition for various buyer profiles in a convenient and sought-after location.
Therefore, we give this property 6 / 10. *Disclaimer: This is our option and does constitute a recommendation or financial advice. Do your own research. *
- Price
- 7
- Condition
- 8
- Location
- 9
- Land
- 1
- Bedrooms
- 2
- Bathrooms
- 2
- Sqft (est)
- 1,541.00
The heatmap indicates the level of crime in the area. The color of the heatmap indicates the crime severity and recency.
Metrics Year-on-Year
- Average area value
- 705,000.00 £Increased by 17.41 %
- Est sale value
- 470,005.00 £Decreased by 18.88 %
- Average area rental value
- 1,519.00 £/moDecreased by 28.69 %
- Est letting value
- 0.00 £/moDecreased by 100.00 %
- Est rental Yield
- 2.59 %Decreased by 39.20 %
- Crime Rate
- 57.00 %Unchanged by 0.00 %
Agent Activity
Marc Allen Estate Agents created the listing.
Nearby Schools
| Name | Type | Ofsted | Distance |
|---|---|---|---|
| Hungerford Primary School | Community School | Good | 0.40 KM |
| Hungerford Nursery School Centre For Children | Local Authority Nursery School | Outstanding | 0.56 KM |
| John O'Gaunt School | Academy Sponsor Led | Good | 1.07 KM |
| Chilton Foliat Church Of England Primary School | Voluntary Aided School | Good | 3.52 KM |
| Inkpen Primary School | Community School | Good | 6.21 KM |
Images
Nearby Streets
| Name | Average Price | Average Sqft | Distance |
|---|---|---|---|
| The Cuttings | £ 0 | 0 | 0.00 KM |
| Neates Yard | £ 0 | 0 | 0.00 KM |
| Everland Road | £ 0 | 0 | 0.00 KM |
| Townview | £ 475,000 | 0 | 0.00 KM |
| Barnards Court | £ 130,000 | 0 | 0.00 KM |
Nearby Transport
| Name | NLC | TLC | Distance |
|---|---|---|---|
| Hungerford | 3072 | HGD | 0.23 KM |
| Kintbury | 3073 | KIT | 7.68 KM |
Nearby Listings
| Address | Price | Type | Score | Distance |
|---|---|---|---|---|
| Bewick Mews, Hungerford, Berkshire, RG17 0QS | £ 280,000 | BUY | 6 / 10 | 0.00 KM |
| Bewick Mews, Hungerford, Berkshire, RG17 | £ 425,000 | BUY | 6 / 10 | 0.00 KM |
| Bewick Mews, Hungerford, Berkshire, RG17 0QS. | £ 294,950 | BUY | 6 / 10 | 0.04 KM |
| Williams Court, Park Street, Hungerford, Berkshire, RG17 | £ 425,000 | BUY | 7 / 10 | 0.04 KM |
| High Street, Hungerford, Berkshire, RG17 | £ 170,000 | BUY | Unknown | 0.08 KM |
Nearby Properties
| Address | Price | Distance |
|---|---|---|
| 5 Marlborough Court | £ 220,000 | 0.13 KM |
| 4 Marlborough Court | £ 187,000 | 0.13 KM |
| 7 Marlborough Court | £ 164,000 | 0.13 KM |
| 10 Marlborough Court | £ 132,500 | 0.13 KM |
| 3 Marlborough Court | £ 137,000 | 0.13 KM |