Miles & Bird says ..
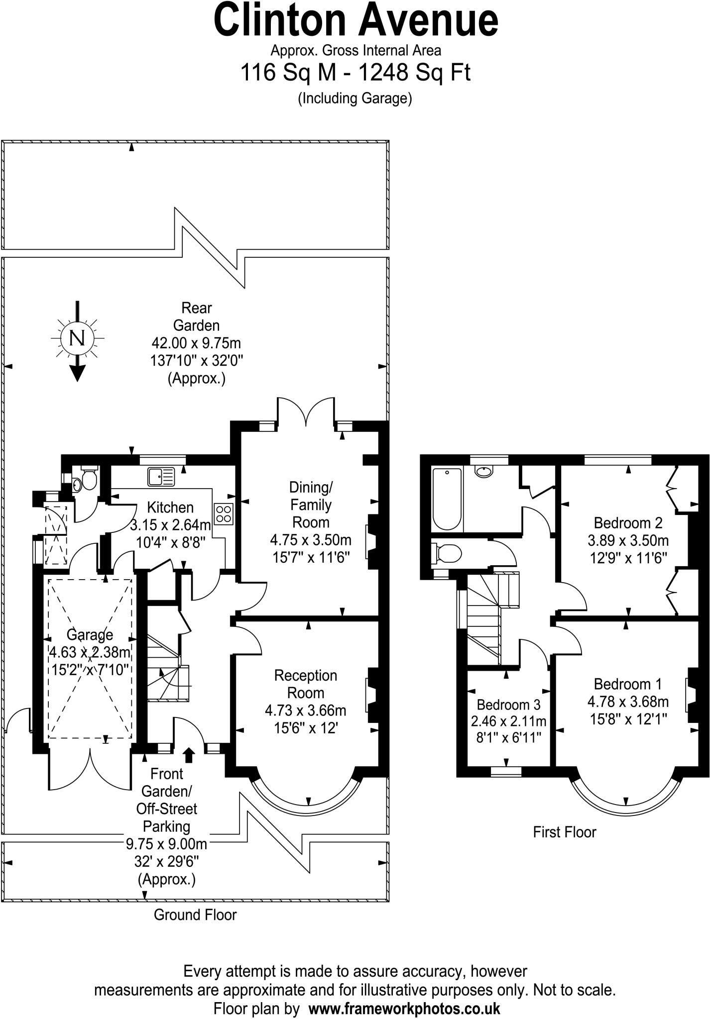
A traditional bay fronted semi-detached family home situated in a quiet and peaceful cul-de-sac yet with easy access to the high street and featuring an impressive 138ft south facing rear garden. Already a great home in its current shape and form, the property is well cared for both inside an...
Property Oracle says ..
This is a 3-bedroom semi-detached house located on Clinton Avenue in East Molesey. The property is in a desirable location, close to local amenities and schools. Hampton Court train station is within reasonable distance. The house has a good-sized garden. The property would benefit from some modernisation, but the kitchen and bathroom appear to have been updated. The price seems reasonable but not great value.
Therefore, we give this property 6 / 10. *Disclaimer: This is our option and does constitute a recommendation or financial advice. Do your own research. *
- Price
- 6
- Condition
- 6
- Location
- 7
- Land
- 7
- Bedrooms
- 3
- Bathrooms
- 1
- Lot (est)
- 42.00
The heatmap indicates the level of crime in the area. The color of the heatmap indicates the crime severity and recency.
Metrics Year-on-Year
- Average area value
- 736,658.00 £Decreased by 7.15 %
- Average area rental value
- 2,100.00 £/moDecreased by 8.93 %
- Est rental Yield
- 3.42 %Decreased by 2.01 %
- Crime Rate
- 6.00 %Unchanged by 0.00 %
Agent Activity
Miles & Bird created the listing.
Nearby Schools
| Name | Type | Ofsted | Distance |
|---|---|---|---|
| St Alban'S Catholic Primary School | Academy Converter | Good | 0.48 KM |
| St Lawrence Cofe Aided Junior School, East Molesey | Voluntary Aided School | Good | 0.57 KM |
| The Orchard Infant School | Foundation School | Outstanding | 0.99 KM |
| Chandlers Field Primary School | Foundation School | Good | 1.33 KM |
| Three Rivers Sure Start Children'S Centre | Children's Centre | 1.51 KM |
Images
Nearby Streets
| Name | Average Price | Average Sqft | Distance |
|---|---|---|---|
| Kent Road | £ 1,166,650 | 0 | 0.00 KM |
| Parabola Court | £ 0 | 0 | 0.00 KM |
| Manor Road | £ 1,525,000 | 0 | 0.00 KM |
| School Road | £ 573,429 | 0 | 0.00 KM |
| Grove Road | £ 1,087,500 | 0 | 0.00 KM |
Nearby Transport
| Name | NLC | TLC | Distance |
|---|---|---|---|
| Hampton Court | 5561 | HMC | 1.74 KM |
| Esher | 5558 | ESH | 2.29 KM |
| Hampton | 5560 | HMP | 2.36 KM |
| Thames Ditton | 5610 | THD | 2.43 KM |
| Hinchley Wood | 5591 | HYW | 3.39 KM |
Nearby Listings
| Address | Price | Type | Score | Distance |
|---|---|---|---|---|
| Clinton Avenue, East Molesey | £ 975,000 | BUY | 6 / 10 | 0.00 KM |
| Walton Road, East Molesey | £ 375,000 | BUY | 7 / 10 | 0.05 KM |
| Pemberton Terrace, East Molesey | £ 800,000 | BUY | 7 / 10 | 0.11 KM |
| Walton Road, East Molesey, KT8 | £ 750,000 | BUY | 7 / 10 | 0.11 KM |
| Park Road, East Molesey | £ 1,050,000 | BUY | 8 / 10 | 0.13 KM |
Nearby Properties
| Address | Price | Distance |
|---|---|---|
| 29 Clinton Avenue | £ 1,125,000 | 0.04 KM |
| 11 Clinton Avenue | £ 550,000 | 0.04 KM |
| 15 Clinton Avenue | £ 595,000 | 0.04 KM |
| 30 Clinton Avenue | £ 1,255,000 | 0.04 KM |
| 25 Clinton Avenue | £ 1,080,000 | 0.04 KM |