RU
Havelock Road, Hastings
By Rush Witt & Wilson
£ 125,000
Reviews
3 out of 5 stars
Rush Witt & Wilson says ..
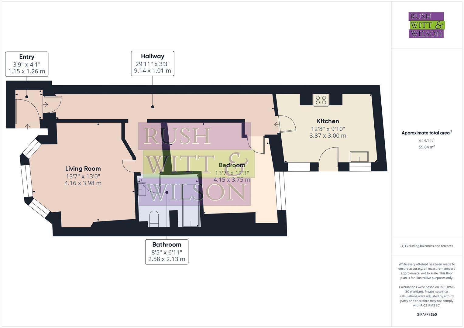
Nestled in the heart of Hastings on Havelock Road, this charming lower ground floor flat offers a delightful living space perfect for individuals or couples seeking a convenient lifestyle. The property features one well-proportioned bedroom, providing a comfortable retreat for rest and relaxation...
Property Oracle says ..
Therefore, we give this property 6 / 10. *Disclaimer: This is our option and does constitute a recommendation or financial advice. Do your own research. *
- Price
- 8
- Condition
- 6
- Location
- 7
- Land
- 3
- Bedrooms
- 1
- Bathrooms
- 1
- Sqft (est)
- 644.10
The heatmap indicates the level of crime in the area. The color of the heatmap indicates the crime severity and recency.
Metrics Year-on-Year
- Average area value
- 273,747.00 £Decreased by 7.23 %
- Est sale value
- 235,740.60 £Increased by 23.65 %
- Average area rental value
- 1,032.00 £/moDecreased by 0.77 %
- Est letting value
- 644.10 £/moUnchanged by 0.00 %
- Est rental Yield
- 4.52 %Increased by 6.86 %
- Crime Rate
- 74.00 %Unchanged by 0.00 %
from 295,097.00 £
from 190,653.60 £
from 1,040.00 £/mo
from 644.10 £/mo
from 4.23 %
from 74.00 %
Agent Activity
Rush Witt & Wilson created the listing.
Nearby Schools
| Name | Type | Ofsted | Distance |
|---|---|---|---|
| Hastings Town Children'S Centre | Children's Centre | 0.75 KM | |
| Ark Blacklands Primary Academy | Academy Sponsor Led | Outstanding | 1.46 KM |
| St Mary Star Of The Sea Catholic Primary School | Voluntary Aided School | Good | 1.46 KM |
| The Flagship School | Free Schools Special | 1.55 KM | |
| The Baird Primary Academy | Academy Sponsor Led | Good | 1.62 KM |
Images
Nearby Streets
| Name | Average Price | Average Sqft | Distance |
|---|---|---|---|
| Middle Street | £ 110,000 | 0 | 0.00 KM |
| Havelock Road | £ 145,000 | 0 | 0.00 KM |
| Priory Street | £ 0 | 0 | 0.00 KM |
| Robertson Street | £ 0 | 0 | 0.00 KM |
| Station Road | £ 0 | 0 | 0.00 KM |
Nearby Transport
| Name | NLC | TLC | Distance |
|---|---|---|---|
| Hastings | 5219 | HGS | 0.24 KM |
| Ore | 5021 | ORE | 1.84 KM |
| St Leonards Warrior Square | 5239 | SLQ | 2.02 KM |
| West St Leonards | 5242 | WLD | 4.28 KM |
| Three Oaks | 5028 | TOK | 6.25 KM |
Nearby Listings
| Address | Price | Type | Score | Distance |
|---|---|---|---|---|
| Havelock Road, Hastings | £ 125,000 | BUY | 6 / 10 | 0.00 KM |
| Havelock Road, Hastings | £ 110,000 | BUY | 5 / 10 | 0.00 KM |
| Havelock Road, Hastings | £ 180,000 | BUY | 5 / 10 | 0.02 KM |
| Havelock Road, Hastings | £ 89,995 | BUY | 4 / 10 | 0.02 KM |
| Havelock Road, Hastings, TN34 | £ 130,000 | BUY | 6 / 10 | 0.02 KM |
Nearby Properties
| Address | Price | Distance |
|---|---|---|
| 46d Havelock Road | £ 85,000 | 0.02 KM |
| 45c Havelock Road | £ 137,500 | 0.02 KM |
| 46a Havelock Road | £ 150,000 | 0.02 KM |
| 46c Havelock Road | £ 80,000 | 0.02 KM |
| 45d Havelock Road | £ 121,000 | 0.02 KM |