Mill Lane, Heswall, Wirral, CH60
By Bradshaw Farnham & Lea
£ 525,000
Reviews
3 out of 5 stars
Bradshaw Farnham & Lea says ..
This well-maintained detached dormer bungalow offers a perfect balance of space and convenience, ideally located within walking distance to the vibrant shops, restaurants, and bars of Heswall. Enjoy excellent transport links to Chester, Liverpool, and West Kirby, making it the perfect base for bo...
Property Oracle says ..
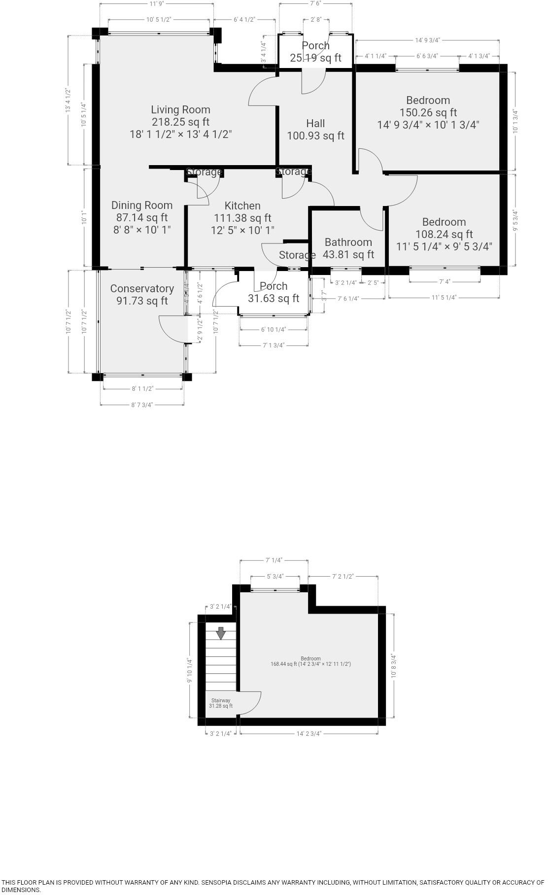
This property is a 3 bedroom, 1 bathroom bungalow located in Heswall, Wirral. The property benefits from a good sized garden, and appears to be in reasonable condition, although some modernisation may be desirable. The location is excellent, being within walking distance of Heswall town centre and well-regarded schools. However, the list price of £525,000 is slightly higher than the average price per square foot for the area, which is £388. Considering the condition and size of the property, and the lack of plot size information, a more competitive price might be necessary to attract buyers in the current market.
Therefore, we give this property 7 / 10. *Disclaimer: This is our option and does constitute a recommendation or financial advice. Do your own research. *
- Price
- 6
- Condition
- 7
- Location
- 9
- Land
- 7
- Bedrooms
- 3
- Bathrooms
- 1
- Sqft (est)
- 1,168.28
The heatmap indicates the level of crime in the area. The color of the heatmap indicates the crime severity and recency.
Metrics Year-on-Year
- Average area value
- 476,574.00 £Decreased by 12.58 %
- Est sale value
- 459,134.04 £Decreased by 7.75 %
- Average area rental value
- 1,200.00 £/moDecreased by 11.24 %
- Est letting value
- 0.00 £/moDecreased by 100.00 %
- Est rental Yield
- 3.02 %Increased by 1.34 %
- Crime Rate
- 1.00 %Unchanged by 0.00 %
Agent Activity
Bradshaw Farnham & Lea created the listing.
Nearby Schools
| Name | Type | Ofsted | Distance |
|---|---|---|---|
| Heswall Primary School | Community School | Good | 0.74 KM |
| Gayton Primary School | Community School | Good | 1.25 KM |
| Barnston Primary School | Community School | Good | 1.38 KM |
| Heswall St Peter'S Cofe Primary School | Voluntary Aided School | Good | 1.55 KM |
| Stanley School | Community Special School | Good | 1.81 KM |
Images
Nearby Streets
| Name | Average Price | Average Sqft | Distance |
|---|---|---|---|
| Hill Top Lane | £ 0 | 0 | 0.00 KM |
| Old Mill Close | £ 0 | 0 | 0.00 KM |
| Pine Wood Drive | £ 500,000 | 0 | 0.00 KM |
| Telegraph Road | £ 106,950 | 0 | 0.00 KM |
| Dunster Grove | £ 0 | 0 | 0.00 KM |
Nearby Transport
| Name | NLC | TLC | Distance |
|---|---|---|---|
| Heswall | 2138 | HSW | 1.67 KM |
| Neston | 2139 | NES | 4.83 KM |
| Upton (Merseyside) | 2141 | UPT | 6.62 KM |
| Leasowe | 2237 | LSW | 9.08 KM |
| Bidston | 2136 | BID | 9.18 KM |
Nearby Listings
| Address | Price | Type | Score | Distance |
|---|---|---|---|---|
| Mill Lane, Heswall, Wirral, CH60 | £ 525,000 | BUY | 7 / 10 | 0.00 KM |
| Mill Lane, Heswall, Wirral | £ 485,000 | BUY | 7 / 10 | 0.03 KM |
| Mill Lane, Heswall, Wirral | £ 250,000 | BUY | 6 / 10 | 0.05 KM |
| Moorway, Heswall, Wirral | £ 675,000 | BUY | 8 / 10 | 0.07 KM |
| Moorway, Heswall, Wirral | £ 775,000 | BUY | 7 / 10 | 0.10 KM |
Nearby Properties
| Address | Price | Distance |
|---|---|---|
| 27 Mill Lane | £ 335,000 | 0.06 KM |
| 29 Mill Lane | £ 280,000 | 0.06 KM |
| 53 Mill Lane | £ 330,000 | 0.06 KM |
| 43 Mill Lane | £ 517,500 | 0.06 KM |
| 61 Mill Lane | £ 170,000 | 0.06 KM |