Hackworthy Lane, Nadderwater, Exeter
By Wilkinson Grant & Co
£ 1,675,000
Reviews
4 out of 5 stars
Wilkinson Grant & Co says ..
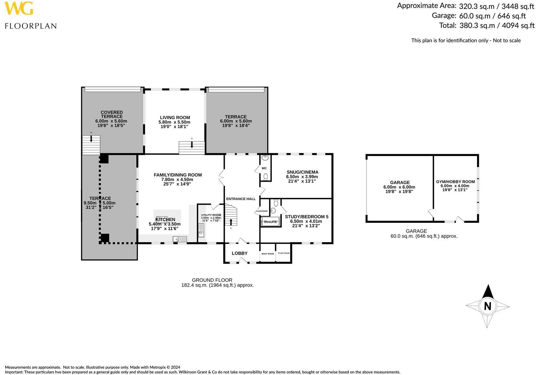
***NO ONWARD CHAIN*** Indulge in PURE LUXURY within this stunning family home, offering approximately 3900sq ft of exquisite living space. Secure an incredible, CONTEMPORARY residence, perfectly positioned to capture breath taking COUNTRYSIDE VIEWS. Experience a lifestyle of comfort an...
Property Oracle says ..
This property is a modern detached house located in Nadderwater, Exeter. It has 5 bedrooms and 3 bathrooms, and a total area of 3,446.60 sqft. The plot size is 4,093.52 sqft. The property is listed at £1,675,000. The average house price in the area is £357,857, with an average price per sqft of £356.00. The property appears to be in excellent condition, with modern finishes and a large garden. The location is rural, but within reasonable distance of Exeter and its amenities. Given the size, condition, and location, the asking price appears to be on the higher end of the market, but not unreasonable for a property of this caliber.
Therefore, we give this property 8 / 10. *Disclaimer: This is our option and does constitute a recommendation or financial advice. Do your own research. *
- Price
- 7
- Condition
- 10
- Location
- 8
- Land
- 10
- Bedrooms
- 5
- Bathrooms
- 3
- Sqft (est)
- 3,446.60
- Lot (est)
- 4,093.52
The heatmap indicates the level of crime in the area. The color of the heatmap indicates the crime severity and recency.
Metrics Year-on-Year
- Average area value
- 287,463.00 £Decreased by 27.54 %
- Est sale value
- 1,161,504.20 £Increased by 8.71 %
- Average area rental value
- 1,250.00 £/moDecreased by 10.65 %
- Est letting value
- 3,446.60 £/moUnchanged by 0.00 %
- Est rental Yield
- 5.22 %Increased by 23.40 %
- Crime Rate
- 0.00 %
Agent Activity
Wilkinson Grant & Co created the listing.
Nearby Schools
| Name | Type | Ofsted | Distance |
|---|---|---|---|
| Newton St Cyres Primary School | Community School | Good | 3.90 KM |
| Exwick Heights Primary School | Academy Converter | 4.08 KM | |
| Barley Lane School | Foundation Special School | Good | 4.60 KM |
| Redhills Primary School | Academy Converter | Good | 5.13 KM |
| Torlands Academy | Academy Alternative Provision Converter | 5.34 KM |
Images
Nearby Streets
| Name | Average Price | Average Sqft | Distance |
|---|---|---|---|
| Crossways | £ 0 | 0 | 0.00 KM |
| Nadder Bottom | £ 0 | 0 | 0.00 KM |
| Marylands | £ 0 | 0 | 0.00 KM |
Nearby Transport
| Name | NLC | TLC | Distance |
|---|---|---|---|
| Newton St Cyres | 5828 | NTC | 4.53 KM |
| Exeter St David'S | 3410 | EXD | 5.64 KM |
| Exeter St Thomas | 3414 | EXT | 6.49 KM |
| Exeter Central | 5755 | EXC | 6.79 KM |
| Crediton | 5754 | CDI | 7.72 KM |
Nearby Listings
| Address | Price | Type | Score | Distance |
|---|---|---|---|---|
| Hackworthy Lane, Nadderwater, Exeter | £ 1,675,000 | BUY | 8 / 10 | 0.00 KM |
| Hackworthy Lane, Nadderwater, Exeter | £ 1,675,000 | BUY | 7 / 10 | 0.05 KM |
| Hackworthy Lane, Nadderwater, Exeter | £ 1,675,000 | BUY | 7 / 10 | 0.05 KM |
| The Willows, Halsfordwood Lane, Exeter | £ 750,000 | BUY | 7 / 10 | 0.62 KM |
| Halsfordwood Lane, Nadderwater, Exeter, Devon | £ 1,250,000 | BUY | 7 / 10 | 0.69 KM |
Nearby Properties
| Address | Price | Distance |
|---|---|---|
| Russetts | £ 380,000 | 0.61 KM |
| Applehay | £ 570,000 | 0.61 KM |
| Nizhoni | £ 527,500 | 0.61 KM |
| Connetts | £ 570,000 | 0.61 KM |
| Trillow House | £ 985,000 | 0.61 KM |