Orchard Rise, Hill Street, Hyde, Greater Manchester, SK14
By Taylor & Wood Estate Agents
£ 550,000
Reviews
3 out of 5 stars
Taylor & Wood Estate Agents says ..
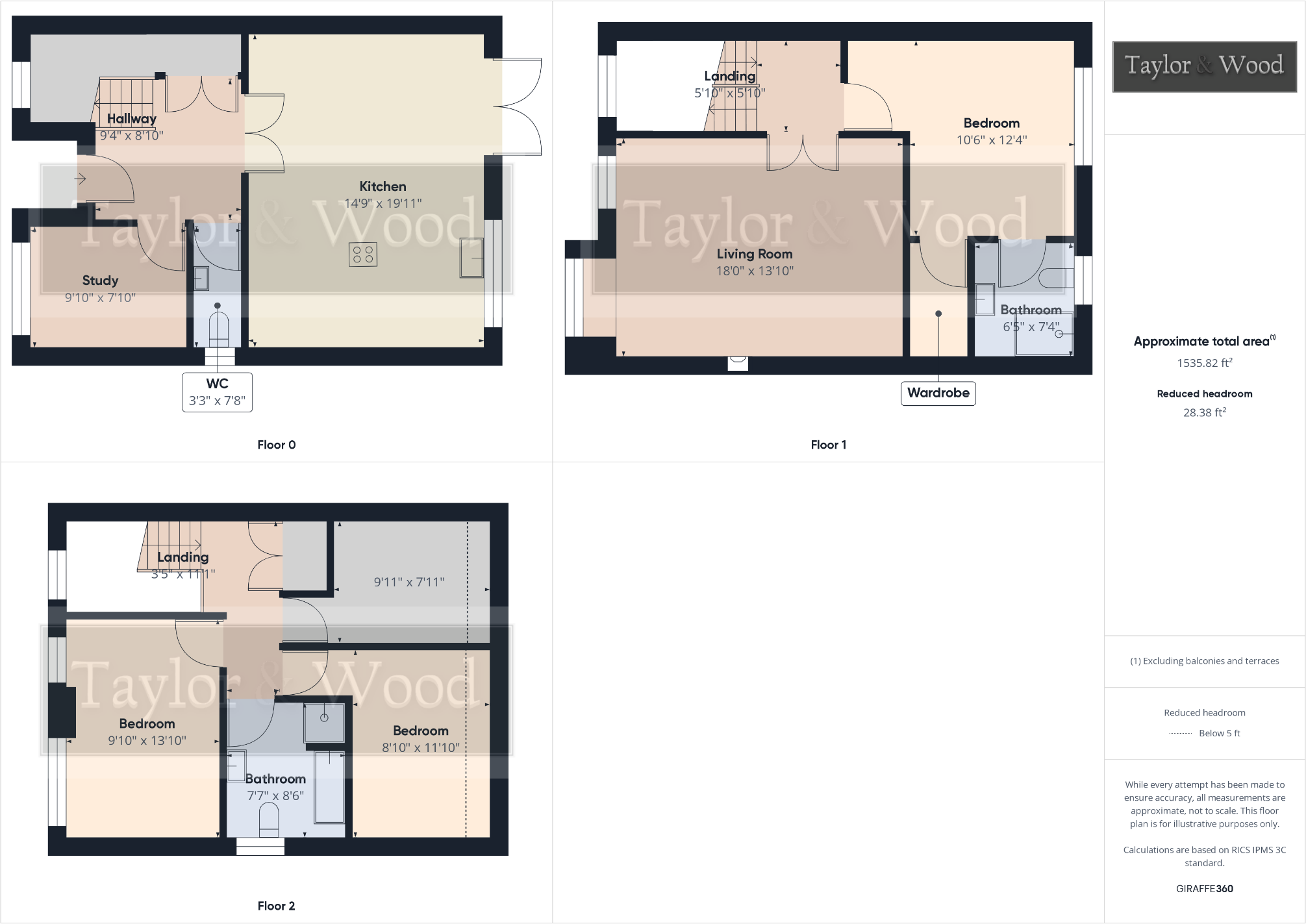
This simply pristine three-storey contemporary detached townhouse forms part of an exclusive development in a prime Gee Cross location. Tucked away in a particularly private spot, the property offers tastefully presented and unusually spacious accommodation over three floors.
Property Oracle says ..
This three-storey contemporary detached townhouse in Gee Cross, Hyde, presents a well-maintained and tastefully presented home. The property benefits from a modern design and offers spacious accommodation over three floors. Interior photos showcase a modern, recently updated kitchen with island, and multiple well-sized bedrooms and bathrooms. The property is located within a relatively short distance to several local primary and secondary schools and to nearby train stations. While further details on amenities and the precise dimensions of the property and garden could solidify the assessment, the available information paints a picture of a generally attractive property. The relatively high asking price seems justifiable based on the appearance of the property and its location within a desirable area of Hyde. However, a more in-depth analysis requires further data on local property prices per square foot and plot size for a complete and definitive conclusion on value.
Therefore, we give this property 6 / 10. *Disclaimer: This is our option and does constitute a recommendation or financial advice. Do your own research. *
- Price
- 7
- Condition
- 8
- Location
- 7
- Land
- 4
- Bedrooms
- 4
- Bathrooms
- 2
- Sqft (est)
- 529.80
The heatmap indicates the level of crime in the area. The color of the heatmap indicates the crime severity and recency.
Metrics Year-on-Year
- Average area value
- 349,167.00 £Increased by 12.91 %
- Est sale value
- 219,337.20 £Increased by 40.82 %
- Average area rental value
- 1,000.00 £/moDecreased by 13.49 %
- Est letting value
- 529.80 £/moUnchanged by 0.00 %
- Est rental Yield
- 3.44 %Decreased by 23.39 %
- Crime Rate
- 0.00 %
Agent Activity
Taylor & Wood Estate Agents created the listing.
Nearby Schools
| Name | Type | Ofsted | Distance |
|---|---|---|---|
| Gee Cross Holy Trinity Cofe (Vc) Primary School | Voluntary Controlled School | Good | 0.24 KM |
| Dowson Primary Academy | Academy Converter | Good | 0.68 KM |
| Alder Community High School | Community School | Good | 0.82 KM |
| Greenfield Primary Academy | Academy Sponsor Led | 1.18 KM | |
| Endeavour Primary Academy | Academy Converter | 1.24 KM |
Images
Nearby Streets
| Name | Average Price | Average Sqft | Distance |
|---|---|---|---|
| Hill Street | £ 0 | 0 | 0.00 KM |
| Nether Street | £ 0 | 0 | 0.00 KM |
| Queens Drive | £ 0 | 0 | 0.00 KM |
| Queens Close | £ 210,000 | 0 | 0.00 KM |
| Arnold Road | £ 0 | 0 | 0.00 KM |
Nearby Transport
| Name | NLC | TLC | Distance |
|---|---|---|---|
| Newton For Hyde | 2789 | NWN | 2.03 KM |
| Godley | 2948 | GDL | 2.08 KM |
| Hyde Central | 2829 | HYC | 2.47 KM |
| Woodley | 2835 | WLY | 2.99 KM |
| Flowery Field | 2786 | FLF | 3.03 KM |
Nearby Listings
| Address | Price | Type | Score | Distance |
|---|---|---|---|---|
| Orchard Rise, Hill Street, Hyde, Greater Manchester, SK14 | £ 550,000 | BUY | 6 / 10 | 0.00 KM |
| Orchard Rise, Gee Cross, Hyde | £ 470,000 | BUY | 7 / 10 | 0.06 KM |
| Harrison Street, Gee Cross, Hyde | £ 225,000 | BUY | 6 / 10 | 0.07 KM |
| Mottram Old Road, Hyde, Greater Manchester, SK14 | £ 220,000 | BUY | 5 / 10 | 0.09 KM |
| The Old Tannery, Hyde, Greater Manchester, SK14 | £ 135,000 | BUY | 6 / 10 | 0.13 KM |
Nearby Properties
| Address | Price | Distance |
|---|---|---|
| 46 Baron Road | £ 214,000 | 0.05 KM |
| 24 Baron Road | £ 36,500 | 0.05 KM |
| 4 Baron Road | £ 142,500 | 0.05 KM |
| 32 Baron Road | £ 125,000 | 0.05 KM |
| 1 Baron Road | £ 135,000 | 0.05 KM |