Rampton Baseley says ..
A fantastic opportunity to purchase this unmodernised, mid-terraced Victorian family home on this popular residential street close to King George’s Park with no onward chain.
Property Oracle says ..
This mid-terraced Victorian house in Wandsworth Common presents a mixed bag for potential buyers. Its location is a key strength. The proximity to Wandsworth Common, King George’s Park and various transport links, makes it highly attractive for families and professionals. The presence of well-rated schools nearby further enhances its appeal. However, the property’s condition represents a considerable drawback. The images clearly indicate a need for substantial renovation throughout. The kitchen and bedrooms require modernisation, implying that a buyer needs to factor in significant refurbishment costs post-purchase. While the property has a garden it appears relatively small and would require landscaping. A lack of detailed information on plot size reduces the clarity of assessment. Ultimately, this property offers a great location and a potential opportunity for renovation. However, potential purchasers should meticulously factor the renovation costs into their assessment to ensure the purchase remains financially viable. Without a clarified plot size and detailed square footage data for comparison properties, a comprehensive assessment on the price per square foot and overall value is limited.
Therefore, we give this property 5 / 10. *Disclaimer: This is our option and does constitute a recommendation or financial advice. Do your own research. *
- Price
- 7
- Condition
- 4
- Location
- 7
- Land
- 3
- Bedrooms
- 3
- Bathrooms
- 1
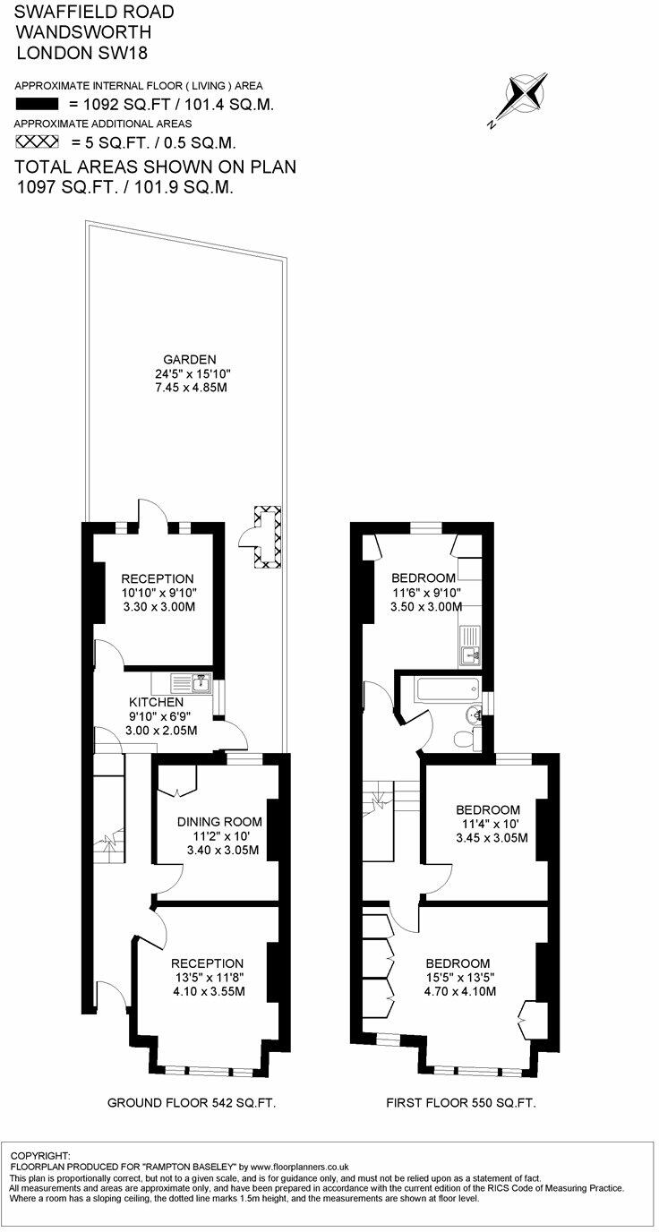
- Sqft (est)
- 1,097.00
The heatmap indicates the level of crime in the area. The color of the heatmap indicates the crime severity and recency.
Metrics Year-on-Year
- Average area value
- 813,044.00 £Decreased by 21.38 %
- Est sale value
- 1,046,538.00 £Increased by 5.30 %
- Average area rental value
- 2,565.00 £/moDecreased by 6.42 %
- Est letting value
- 3,291.00 £/moIncreased by 50.00 %
- Est rental Yield
- 3.79 %Increased by 19.18 %
- Crime Rate
- 5.00 %Unchanged by 0.00 %
Agent Activity
Rampton Baseley created the listing.
Nearby Schools
| Name | Type | Ofsted | Distance |
|---|---|---|---|
| Swaffield School | Community School | Good | 0.10 KM |
| Allfarthing Primary School | Community School | Good | 0.34 KM |
| Wandsworth Preparatory School | Other Independent School | 0.42 KM | |
| Floreat Wandsworth Primary School | Academy Sponsor Led | Good | 0.54 KM |
| St Anne'S Cofe Primary School | Voluntary Aided School | Good | 0.77 KM |
Images
Nearby Streets
| Name | Average Price | Average Sqft | Distance |
|---|---|---|---|
| Saint Ann's Hill | £ 708,333 | 0 | 0.00 KM |
| Cader Road | £ 650,000 | 0 | 0.00 KM |
| Wells Place | £ 0 | 0 | 0.00 KM |
| Allfarthing Lane | £ 330,000 | 0 | 0.00 KM |
| Marshall Close | £ 0 | 0 | 0.00 KM |
Nearby Transport
| Name | NLC | TLC | Distance |
|---|---|---|---|
| Earlsfield | 5584 | EAD | 0.94 KM |
| Wandsworth Town | 5576 | WNT | 1.22 KM |
| Clapham Junction | 5595 | CLJ | 2.25 KM |
| Wandsworth Common | 5395 | WSW | 2.46 KM |
| Imperial Wharf | 9586 | IMW | 2.74 KM |
Nearby Listings
| Address | Price | Type | Score | Distance |
|---|---|---|---|---|
| Swaffield Road, SW18 | £ 850,000 | BUY | 5 / 10 | 0.00 KM |
| Bassingham Road, London, SW18 | £ 1,600,000 | BUY | 7 / 10 | 0.02 KM |
| Bassingham Road, Earlsfield | £ 525,000 | BUY | Unknown | 0.05 KM |
| 81 Bassingham Road, London, SW18 | £ 400,000 | BUY | 6 / 10 | 0.06 KM |
| Swaffield Road, Earlsfield | £ 650,000 | BUY | Unknown | 0.06 KM |
Nearby Properties
| Address | Price | Distance |
|---|---|---|
| 71 Swaffield Road | £ 510,000 | 0.04 KM |
| 56 St Anns Hill | £ 1,356,500 | 0.07 KM |
| 74 St Anns Hill | £ 1,040,000 | 0.07 KM |
| 48 St Anns Hill | £ 400,000 | 0.07 KM |
| 54 St Anns Hill | £ 1,000,000 | 0.07 KM |