Pearsons says ..
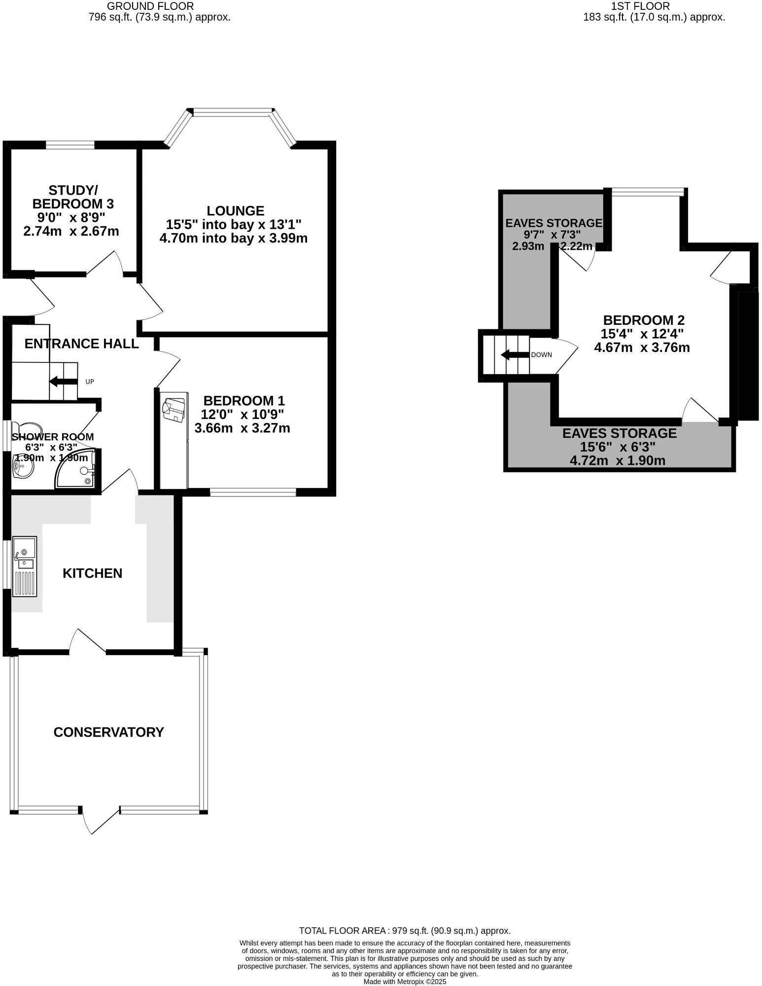
NO FORWARD CHAIN. A two/three bedroom detached chalet style bungalow located to the north of Fareham within easy access to Highlands Road shops and amenities. The property's accommodation briefly comprises; entrance hall, lounge, kitchen and conservatory. The principle bedroom is located on the g...
Property Oracle says ..
Therefore, we give this property 7 / 10. *Disclaimer: This is our option and does constitute a recommendation or financial advice. Do your own research. *
- Price
- 8
- Condition
- 6
- Location
- 7
- Land
- 7
- Bedrooms
- 2
- Bathrooms
- 1
- Sqft (est)
- 810.27
The heatmap indicates the level of crime in the area. The color of the heatmap indicates the crime severity and recency.
Metrics Year-on-Year
- Average area value
- 323,750.00 £Increased by 2.59 %
- Est sale value
- 273,871.26 £Increased by 9.03 %
- Average area rental value
- 1,309.00 £/moIncreased by 25.26 %
- Est letting value
- 810.27 £/moUnchanged by 0.00 %
- Est rental Yield
- 4.85 %Increased by 22.17 %
- Crime Rate
- 7.00 %Unchanged by 0.00 %
from 315,578.00 £
from 251,183.70 £
from 1,045.00 £/mo
from 810.27 £/mo
from 3.97 %
from 7.00 %
Agent Activity
Pearsons created the listing.
Nearby Schools
| Name | Type | Ofsted | Distance |
|---|---|---|---|
| Orchard Lea Infant School | Community School | Good | 0.15 KM |
| Orchard Lea Junior School | Community School | Good | 0.27 KM |
| Oak Meadow Children'S Centre | Children's Centre | 1.00 KM | |
| St Columba Ce Primary School | Academy Sponsor Led | 1.13 KM | |
| St Jude'S Catholic Primary School | Voluntary Aided School | Good | 1.31 KM |
Images
Nearby Streets
| Name | Average Price | Average Sqft | Distance |
|---|---|---|---|
| Craven Court | £ 315,000 | 0 | 0.00 KM |
| Coppice Way | £ 440,000 | 0 | 0.00 KM |
| Braemar Close | £ 0 | 0 | 0.00 KM |
| Poppy Gardens | £ 0 | 0 | 0.00 KM |
| Hillary Close | £ 355,000 | 0 | 0.00 KM |
Nearby Transport
| Name | NLC | TLC | Distance |
|---|---|---|---|
| Fareham | 5900 | FRM | 1.75 KM |
| Swanwick | 5920 | SNW | 6.93 KM |
| Botley | 5894 | BOE | 8.50 KM |
| Portchester | 5928 | PTC | 9.01 KM |
Nearby Listings
| Address | Price | Type | Score | Distance |
|---|---|---|---|---|
| HIGHLANDS ROAD, FAREHAM | £ 350,000 | BUY | 7 / 10 | 0.00 KM |
| HIGHLANDS ROAD, FAREHAM | £ 399,950 | BUY | 6 / 10 | 0.02 KM |
| Kennedy Avenue, Fareham, PO15 | £ 450,000 | BUY | 8 / 10 | 0.07 KM |
| Kennedy Avenue, Fareham | £ 450,000 | BUY | 7 / 10 | 0.07 KM |
| Beaumont Rise, Fareham, Hampshire, PO15 | £ 270,000 | BUY | 7 / 10 | 0.08 KM |
Nearby Properties
| Address | Price | Distance |
|---|---|---|
| 11 Beaumont Rise | £ 127,500 | 0.07 KM |
| 7 Beaumont Rise | £ 185,000 | 0.07 KM |
| 9 Beaumont Rise | £ 141,000 | 0.07 KM |
| 15 Beaumont Rise | £ 243,000 | 0.07 KM |
| 12 Beaumont Rise | £ 284,950 | 0.07 KM |