Roxalina Street, Bolton, BL3
By Madina Property
£ 210,000
Reviews
2 out of 5 stars
Madina Property says ..
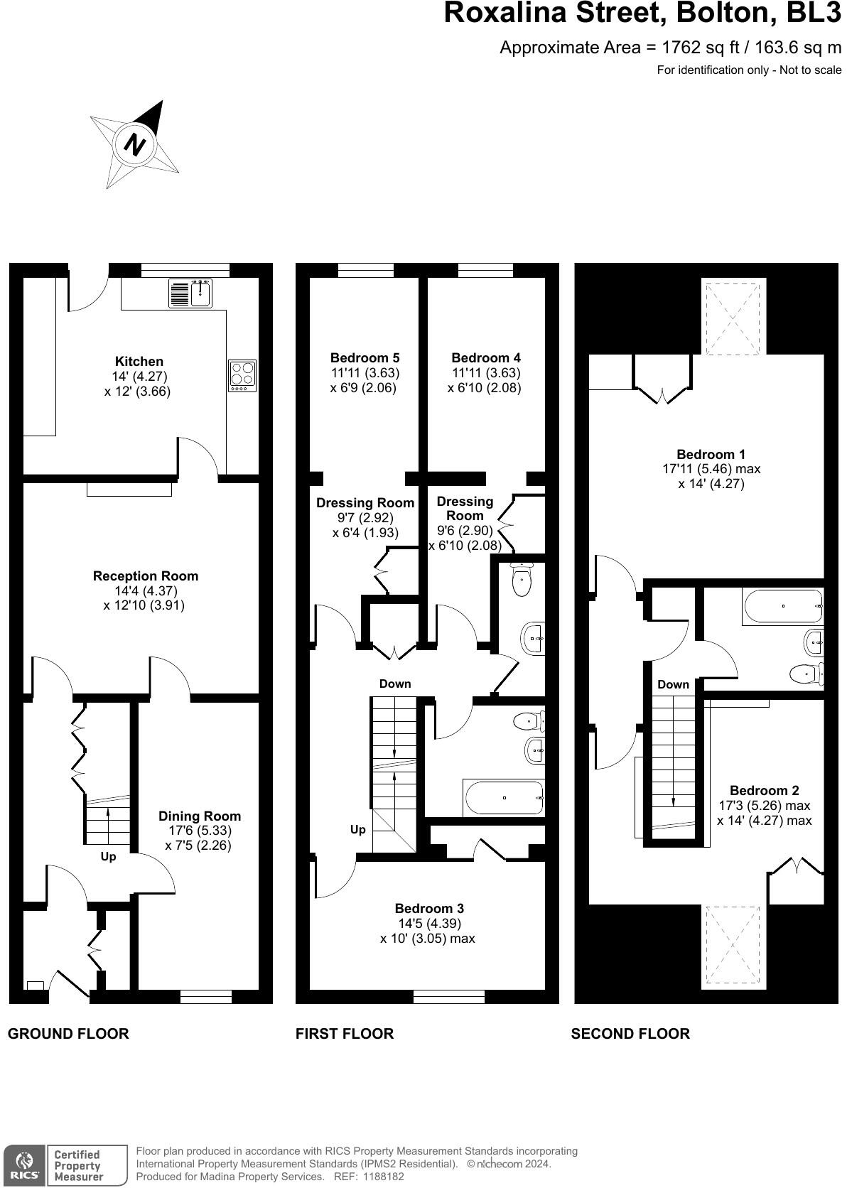
Discover the perfect blend of comfort and potential with this spacious 5-bedroom, 3-bathroom terrace property in Roxalina Street, Bolton. Featuring a garage, off-street parking, and a desirable location close to shops and amenities, this home offers huge potential for personalization and expansio...
Property Oracle says ..
This is a large terraced property in Great Lever, Bolton, featuring five bedrooms and three bathrooms. The property is located close to local schools and transportation links. However, the property requires extensive renovation throughout. The asking price of £210,000 reflects the work needed, presenting an opportunity for buyers willing to invest in refurbishment. The property includes a rear garden with a brick building, adding to its potential.
Therefore, we give this property 5 / 10. *Disclaimer: This is our option and does constitute a recommendation or financial advice. Do your own research. *
- Price
- 7
- Condition
- 3
- Location
- 6
- Land
- 5
- Bedrooms
- 5
- Bathrooms
- 3
- Sqft (est)
- 1,762.00
The heatmap indicates the level of crime in the area. The color of the heatmap indicates the crime severity and recency.
Metrics Year-on-Year
- Average area value
- 550,000.00 £Increased by 32.27 %
- Est sale value
- 387,640.00 £Decreased by 57.12 %
- Average area rental value
- 1,864.00 £/moIncreased by 17.16 %
- Est letting value
- 0.00 £/moDecreased by 100.00 %
- Est rental Yield
- 4.07 %Decreased by 11.33 %
- Crime Rate
- 0.00 %
Agent Activity
Madina Property created the listing.
Nearby Schools
| Name | Type | Ofsted | Distance |
|---|---|---|---|
| Clarendon Primary School | Community School | Good | 0.21 KM |
| Bishop Bridgeman Cofe Primary School | Academy Converter | Good | 0.26 KM |
| St William Of York Catholic Primary School | Voluntary Aided School | Good | 0.54 KM |
| Great Lever Start Well Children'S Centre | Children's Centre Linked Site | 0.54 KM | |
| Harvey Start Well Link Centre | Children's Centre | 0.63 KM |
Images
Nearby Streets
| Name | Average Price | Average Sqft | Distance |
|---|---|---|---|
| Mill Beck Grove | £ 0 | 0 | 0.00 KM |
| Back High Street South | £ 0 | 0 | 0.00 KM |
| Back Broach Street | £ 0 | 0 | 0.00 KM |
| Back South Street | £ 0 | 0 | 0.00 KM |
| Teal Street | £ 150,000 | 0 | 0.00 KM |
Nearby Transport
| Name | NLC | TLC | Distance |
|---|---|---|---|
| Bolton | 2599 | BON | 1.38 KM |
| Moses Gate | 2606 | MSS | 3.82 KM |
| Hall-I'-Th'-Wood | 2572 | HID | 4.30 KM |
| Farnworth | 2811 | FNW | 5.42 KM |
| Bromley Cross (Lancs) | 2697 | BMC | 6.03 KM |
Nearby Listings
| Address | Price | Type | Score | Distance |
|---|---|---|---|---|
| Roxalina Street, Bolton, BL3 | £ 210,000 | BUY | 5 / 10 | 0.00 KM |
| Roxalina Street, Bolton, BL3 | £ 229,950 | BUY | 5 / 10 | 0.00 KM |
| John Cross Street, Bolton, BL3 | £ 210,000 | BUY | 5 / 10 | 0.13 KM |
| John Cross Street, Bolton, BL3 | £ 229,950 | BUY | Unknown | 0.13 KM |
| Broach Street, Bolton, Greater Manchester, BL3 | £ 130,000 | BUY | 5 / 10 | 0.18 KM |
Nearby Properties
| Address | Price | Distance |
|---|---|---|
| 33 Roxalina Street | £ 71,950 | 0.01 KM |
| 45 Roxalina Street | £ 21,200 | 0.01 KM |
| 7 Roxalina Street | £ 69,000 | 0.01 KM |
| 27 Roxalina Street | £ 60,000 | 0.01 KM |
| 25 Roxalina Street | £ 61,000 | 0.01 KM |