Plot 30, Monks Dyke Road Development, Louth
By TES Property (Lincolnshire) Limited
£ 287,495
Reviews
3 out of 5 stars
TES Property (Lincolnshire) Limited says ..
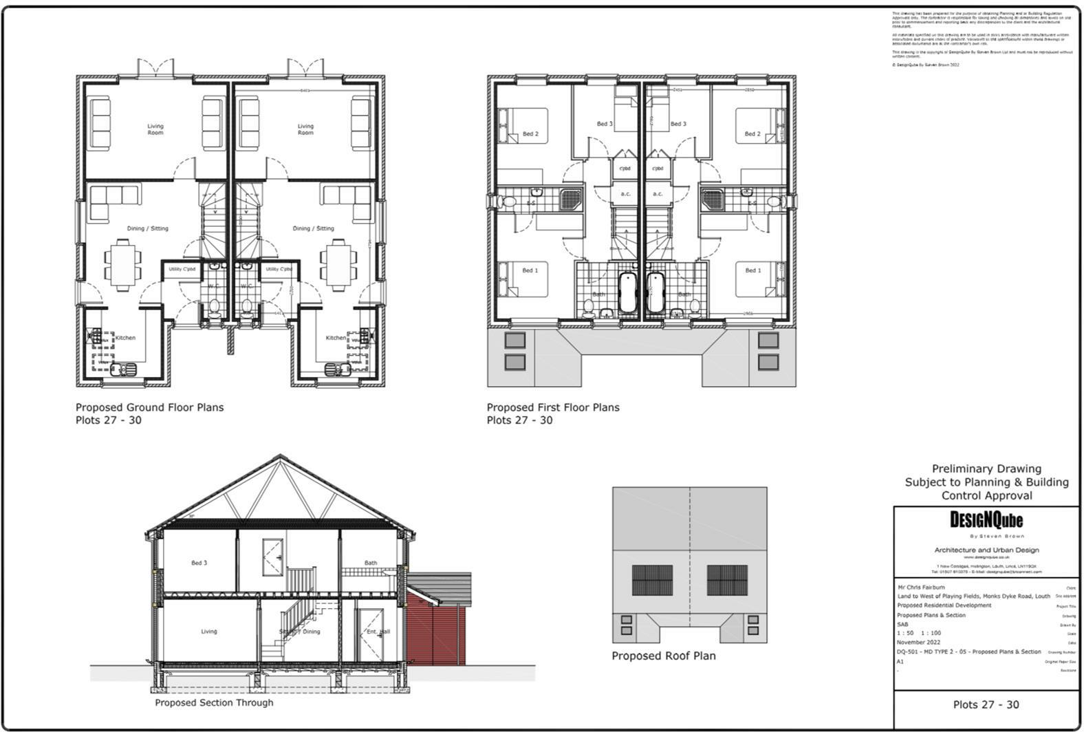
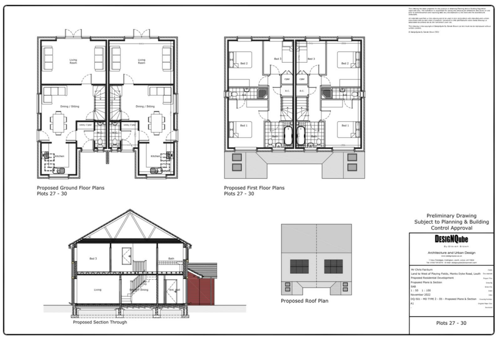
It is a pleasure for TES Property to offer for sale Plot 30 a luxury semi-detached house located on the Monks Dyke Road Development built by the well known C & L Fairburn Properties. This exclusive development offers a variety of semi-detached, mid terrace and end terrace properties, all...
Property Oracle says ..
This new build semi-detached house located on Monks Dyke Road Development in Louth, Lincolnshire, offers a modern and seemingly well-maintained living space. The property boasts three bedrooms and three bathrooms, a layout depicted in the provided floor plans. Images suggest a modern design with a potentially small but present garden. The location is advantageous due to its proximity to schools, but additional details on local amenities and transportation links are needed for a complete evaluation. The list price is seemingly competitive with similar properties in the immediate vicinity but more detailed comparable data would be necessary for a definitive conclusion on value. The absence of specific plot size information and more detailed images of the interior and garden limits a more thorough analysis.
Therefore, we give this property 6 / 10. *Disclaimer: This is our option and does constitute a recommendation or financial advice. Do your own research. *
- Price
- 7
- Condition
- 8
- Location
- 7
- Land
- 4
- Bedrooms
- 3
- Bathrooms
- 3
- Sqft (est)
- 1,200.00
The heatmap indicates the level of crime in the area. The color of the heatmap indicates the crime severity and recency.
Metrics Year-on-Year
- Average area value
- 197,200.00 £Decreased by 6.39 %
- Est sale value
- 267,600.00 £Decreased by 6.69 %
- Average area rental value
- 547.00 £/moDecreased by 9.88 %
- Est letting value
- 0.00 £/mo
- Est rental Yield
- 3.33 %Decreased by 3.76 %
- Crime Rate
- 5.00 %Unchanged by 0.00 %
Agent Activity
TES Property (Lincolnshire) Limited created the listing.
Nearby Schools
| Name | Type | Ofsted | Distance |
|---|---|---|---|
| Louth Academy | Academy Sponsor Led | 0.11 KM | |
| St Michael'S Church Of England School, Louth | Voluntary Controlled School | Good | 0.18 KM |
| Eastfield Infants And Nursery Academy | Academy Converter | 0.58 KM | |
| Louth Kidgate Primary Academy | Academy Converter | Outstanding | 0.66 KM |
| Louth And Holton-Le-Clay Children'S Centre | Children's Centre | 0.67 KM |
Images
Nearby Streets
| Name | Average Price | Average Sqft | Distance |
|---|---|---|---|
| Orme Lane | £ 256,424 | 0 | 0.00 KM |
| Priory Close | £ 239,950 | 0 | 0.00 KM |
| Railway Walk | £ 0 | 0 | 0.00 KM |
| Commercial Road | £ 142,473 | 0 | 0.00 KM |
| Tennyson Road | £ 172,000 | 0 | 0.00 KM |
Nearby Listings
| Address | Price | Type | Score | Distance |
|---|---|---|---|---|
| Plot 30, Monks Dyke Road Development, Louth | £ 287,495 | BUY | 6 / 10 | 0.00 KM |
| Plot 28, Monks Dyke Road Development, Louth | £ 287,495 | BUY | 6 / 10 | 0.00 KM |
| Plot 26, Monks Dyke Road Development, Louth | £ 229,995 | BUY | 6 / 10 | 0.03 KM |
| Priory Road, Louth | £ 239,950 | BUY | 7 / 10 | 0.03 KM |
| Plot 24, Monks Dyke Road Development, Louth | £ 219,995 | BUY | 6 / 10 | 0.05 KM |
Nearby Properties
| Address | Price | Distance |
|---|---|---|
| 11a Priory Road | £ 182,500 | 0.08 KM |
| 30 Priory Road | £ 92,000 | 0.08 KM |
| 9 Priory Road | £ 30,900 | 0.08 KM |
| 32 Priory Road | £ 91,000 | 0.08 KM |
| 2 Priory Road | £ 95,000 | 0.08 KM |