3 Marcus Astill Way, Warwick, CV34 6ZG
By L&Q Counties
£ 625,000
Reviews
3 out of 5 stars
L&Q Counties says ..
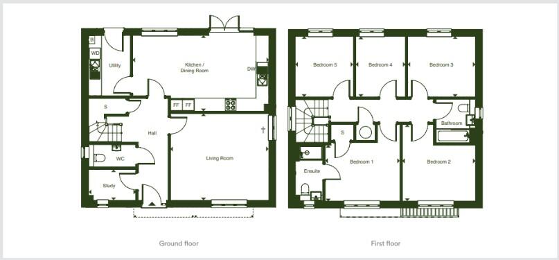
Reserve a 5 bedroom house between the 2nd January -31st January and receive £15,000 towards buying costs*.Find out more about The Framlingham â�" Plot 404, a stunning detached five-bedroom house featuring a garage, a large garden, and multiple parking spaces. The ...
Property Oracle says ..
This is a modern, detached property located in a desirable area of Warwick. The house is well-presented and appears to be in excellent condition. With five bedrooms, it’s suitable for a large family. The proximity to good schools and transport links adds to its appeal. The price is reasonable for the location and condition.
Therefore, we give this property 7 / 10. *Disclaimer: This is our option and does constitute a recommendation or financial advice. Do your own research. *
- Price
- 7
- Condition
- 9
- Location
- 7
- Land
- 6
- Bedrooms
- 5
- Bathrooms
- 0
- Sqft (est)
- 1,160.00
The heatmap indicates the level of crime in the area. The color of the heatmap indicates the crime severity and recency.
Metrics Year-on-Year
- Average area value
- 362,200.00 £Decreased by 11.07 %
- Est sale value
- 394,400.00 £Decreased by 19.62 %
- Average area rental value
- 1,540.00 £/moIncreased by 7.09 %
- Est letting value
- 1,160.00 £/moUnchanged by 0.00 %
- Est rental Yield
- 5.10 %Increased by 20.28 %
- Crime Rate
- 10.00 %Unchanged by 0.00 %
Agent Activity
L&Q Counties created the listing.
Nearby Schools
| Name | Type | Ofsted | Distance |
|---|---|---|---|
| Myton School | Academy Converter | Good | 1.03 KM |
| King'S High School | Other Independent School | 1.41 KM | |
| Warwick School | Other Independent School | 1.45 KM | |
| Heathcote Primary School | Free Schools | 1.55 KM | |
| Warwick Preparatory School | Other Independent School | 1.65 KM |
Images
Nearby Streets
| Name | Average Price | Average Sqft | Distance |
|---|---|---|---|
| John Sugar Way | £ 0 | 0 | 0.00 KM |
| Springfield Lane | £ 186,667 | 0 | 0.00 KM |
| Four Acres | £ 0 | 0 | 0.00 KM |
| Honey Lane | £ 0 | 0 | 0.00 KM |
| Cloverfield Drive | £ 0 | 0 | 0.00 KM |
Nearby Transport
| Name | NLC | TLC | Distance |
|---|---|---|---|
| Warwick | 4600 | WRW | 2.65 KM |
| Leamington Spa | 4597 | LMS | 3.43 KM |
| Warwick Parkway | 8530 | WRP | 5.59 KM |
| Kenilworth | 7985 | KNW | 8.07 KM |
Nearby Listings
| Address | Price | Type | Score | Distance |
|---|---|---|---|---|
| 3 Marcus Astill Way, Warwick, CV34 6ZG | £ 655,000 | BUY | 7 / 10 | 0.00 KM |
| 3 Marcus Astill Way, Warwick, CV34 6ZG | £ 655,000 | BUY | 7 / 10 | 0.00 KM |
| 3 Marcus Astill Way, Warwick, CV34 6ZG | £ 625,000 | BUY | 7 / 10 | 0.00 KM |
| 3 Marcus Astill Way, Warwick, CV34 6ZG | £ 760,000 | BUY | 7 / 10 | 0.00 KM |
| 3 Marcus Astill Way, Warwick, CV34 6ZG | £ 655,000 | BUY | Unknown | 0.00 KM |
Nearby Properties
| Address | Price | Distance |
|---|---|---|
| 17 Lynnon Field | £ 170,000 | 0.47 KM |
| Tollgate Cottage | £ 550,000 | 0.81 KM |
| 5 Palmer Crescent | £ 780,000 | 1.01 KM |
| 31 Myton Crescent | £ 620,000 | 1.04 KM |
| 9 Myton Crescent | £ 249,500 | 1.04 KM |