Chancellors says ..
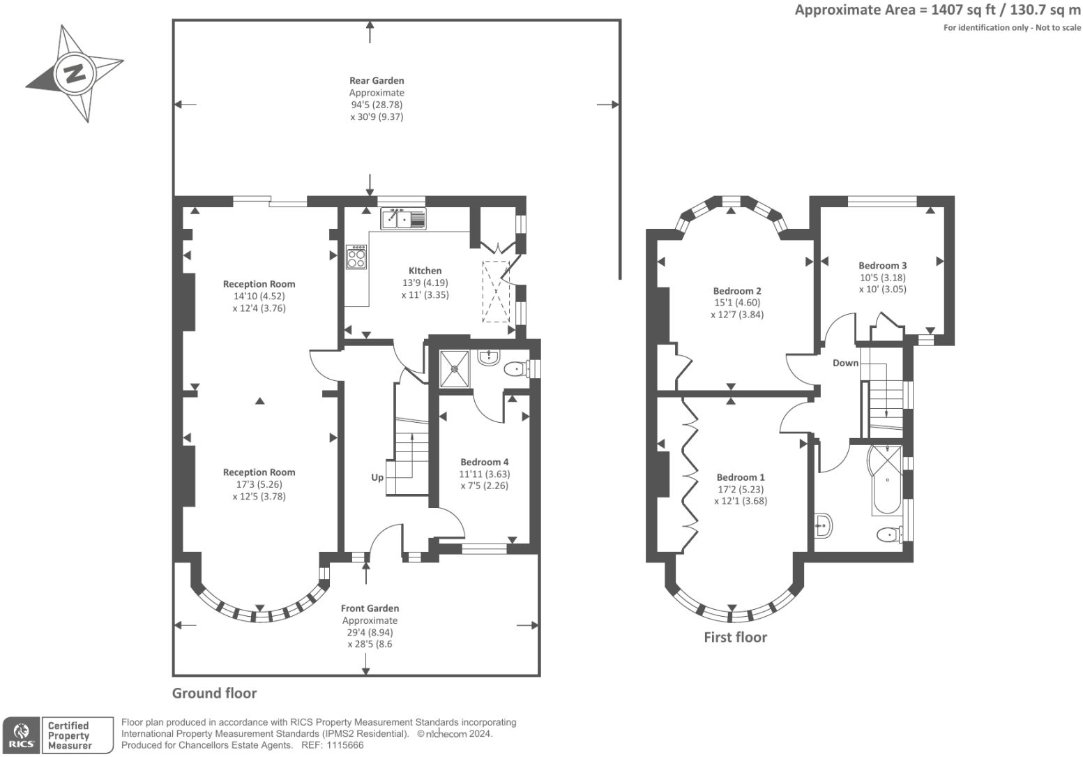
Chancellors are delighted to offer this four double bedroom home situated on a tree-lined road, just 0.1 miles from local shops and transport. Offered to the market with no chain, this property has potential to extend (STPP)
Property Oracle says ..
This four-bedroom semi-detached house in Totteridge, London, presents a mixed bag. The location in Totteridge is a strong asset, offering a blend of suburban peacefulness with good access to transport links via the Northern Line. Nearby schools receive good Ofsted ratings, making it attractive to families. The property itself is in habitable condition, but it’s clearly dated and would benefit from modernisation. While the bathroom showcases recent improvements, most other rooms need updating; carpets, kitchen units and interior decor. The garden is a welcome feature, though its size appears to be average rather than exceptionally large. The price point of £1,000,000 positions it competitively within the market, although not representing an outstanding bargain. Potential buyers should factor in the cost of modernisation when making their decision. Overall, it is a livable house in a highly sought after location; however, the property requires a considerable level of renovation.
Therefore, we give this property 6 / 10. *Disclaimer: This is our option and does constitute a recommendation or financial advice. Do your own research. *
- Price
- 7
- Condition
- 6
- Location
- 7
- Land
- 4
- Bedrooms
- 4
- Bathrooms
- 2
- Sqft (est)
- 1,406.84
The heatmap indicates the level of crime in the area. The color of the heatmap indicates the crime severity and recency.
Metrics Year-on-Year
- Average area value
- 1,077,389.00 £Increased by 1.83 %
- Est sale value
- 917,259.68 £Increased by 8.49 %
- Average area rental value
- 2,772.00 £/moIncreased by 5.36 %
- Est letting value
- 1,406.84 £/moUnchanged by 0.00 %
- Est rental Yield
- 3.09 %Increased by 3.69 %
- Crime Rate
- 5.00 %Unchanged by 0.00 %
Agent Activity
Chancellors marked this listing as sold.
Chancellors created the listing.
Nearby Schools
| Name | Type | Ofsted | Distance |
|---|---|---|---|
| Woodridge Primary School | Community School | Good | 0.74 KM |
| Finchley Catholic High School | Voluntary Aided School | Good | 0.74 KM |
| The Holmewood School | Other Independent Special School | Good | 0.84 KM |
| St John'S Cofe Primary School | Voluntary Aided School | Good | 1.13 KM |
| St Andrew'S Cofe Voluntary Aided Primary School, Totteridge | Voluntary Aided School | Good | 1.15 KM |
Images
Nearby Streets
| Name | Average Price | Average Sqft | Distance |
|---|---|---|---|
| Station Approach | £ 0 | 0 | 0.00 KM |
| Woodside Court | £ 850,000 | 0 | 0.00 KM |
| The Close | £ 3,950,000 | 0 | 0.00 KM |
| High Road | £ 0 | 0 | 0.00 KM |
| Coleridge Road | £ 0 | 0 | 0.00 KM |
Nearby Transport
| Name | NLC | TLC | Distance |
|---|---|---|---|
| Oakleigh Park | 6020 | OKL | 2.70 KM |
| New Barnet | 6018 | NBA | 3.04 KM |
| Hadley Wood | 6075 | HDW | 4.97 KM |
| New Southgate | 6019 | NSG | 5.04 KM |
| Mill Hill Broadway | 1527 | MIL | 6.99 KM |
Nearby Listings
| Address | Price | Type | Score | Distance |
|---|---|---|---|---|
| Totteridge, London, N20 | £ 1,000,000 | BUY | 6 / 10 | 0.00 KM |
| Ventnor Drive, London | £ 1,200,000 | BUY | 7 / 10 | 0.01 KM |
| Ventnor Drive, Totteridge | £ 1,300,000 | BUY | 7 / 10 | 0.07 KM |
| Ventnor Drive, Totteridge, London, N20 | £ 1,200,000 | BUY | 7 / 10 | 0.07 KM |
| Lynton Mead, Totteridge, London, N20 | £ 950,000 | BUY | Unknown | 0.14 KM |
Nearby Properties
| Address | Price | Distance |
|---|---|---|
| 8 Ventnor Drive | £ 1,200,000 | 0.01 KM |
| 46 Ventnor Drive | £ 568,500 | 0.01 KM |
| 50 Ventnor Drive | £ 1,050,000 | 0.01 KM |
| 32 Ventnor Drive | £ 499,999 | 0.01 KM |
| 30 Ventnor Drive | £ 720,000 | 0.01 KM |