Keates says ..
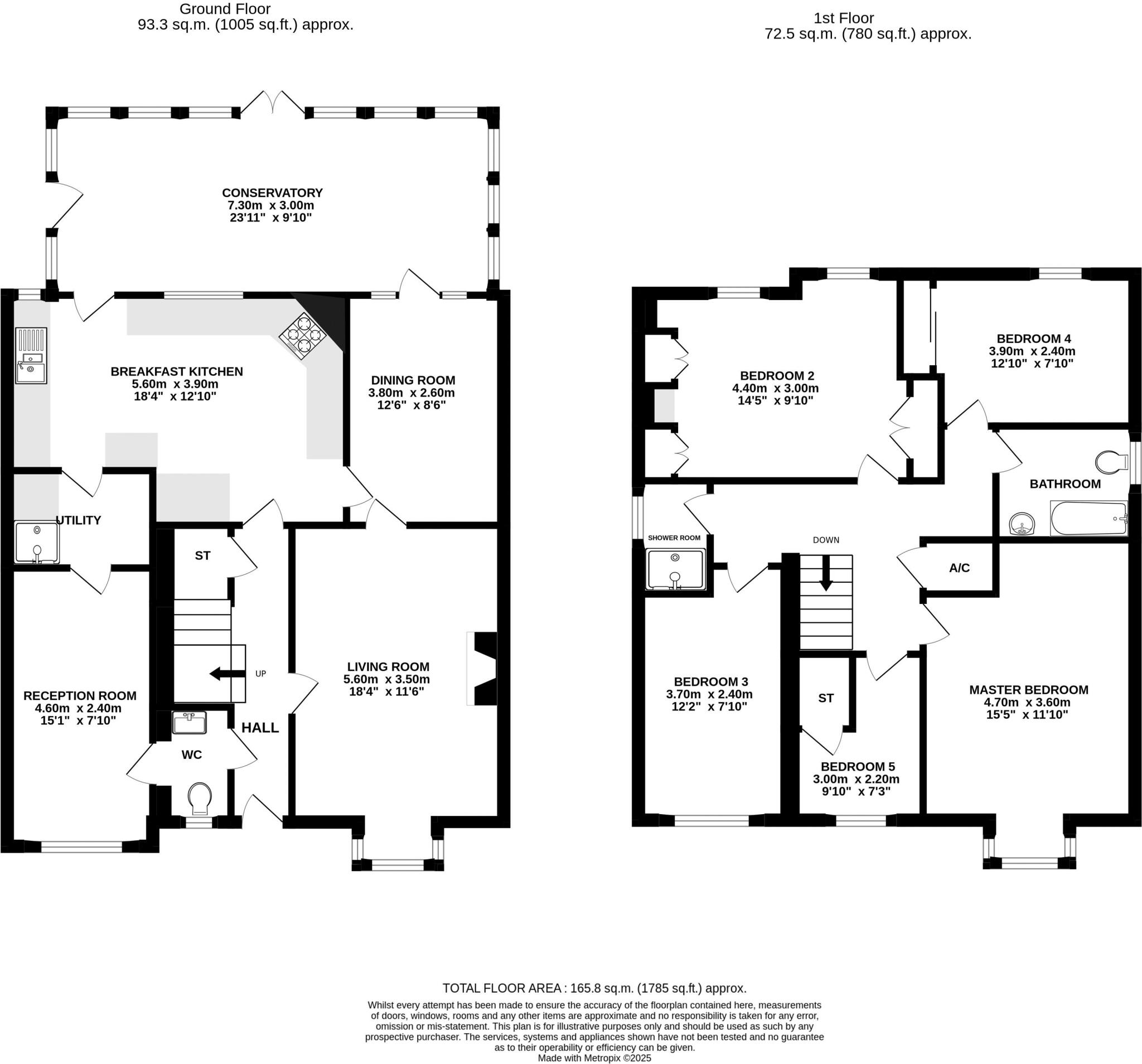
A rare opportunity to purchase a five bedroom detached property situated on Lidgate Close off Cockster Brook Lane. This detached property sits on a large plot with ample parking and is situated in a tree lined setting within easy reach of Cockster Brook nature reserve. The property benefits ...
Property Oracle says ..
Therefore, we give this property 7 / 10. *Disclaimer: This is our option and does constitute a recommendation or financial advice. Do your own research. *
- Price
- 7
- Condition
- 7
- Location
- 7
- Land
- 7
- Bedrooms
- 5
- Bathrooms
- 3
The heatmap indicates the level of crime in the area. The color of the heatmap indicates the crime severity and recency.
Metrics Year-on-Year
- Average area value
- 274,990.00 £Decreased by 21.89 %
- Average area rental value
- 838.00 £/moDecreased by 3.12 %
- Est rental Yield
- 3.66 %Increased by 24.07 %
- Crime Rate
- 2.00 %Unchanged by 0.00 %
from 352,053.00 £
from 865.00 £/mo
from 2.95 %
from 2.00 %
Agent Activity
Keates created the listing.
Nearby Schools
| Name | Type | Ofsted | Distance |
|---|---|---|---|
| Sure Start Blurton Children'S Centre | Children's Centre | 0.49 KM | |
| The Meadows Primary Academy | Academy Converter | 0.50 KM | |
| Sutherland Primary Academy | Academy Converter | Good | 0.72 KM |
| St Thomas More Catholic Academy | Academy Converter | Good | 1.10 KM |
| Glebedale School | Other Independent Special School | Good | 1.23 KM |
Images
Nearby Streets
| Name | Average Price | Average Sqft | Distance |
|---|---|---|---|
| Lidgate Grove | £ 0 | 0 | 0.00 KM |
| Shetland Road | £ 125,000 | 0 | 0.00 KM |
| Linden Place | £ 0 | 0 | 0.00 KM |
| Swingle Hill Road | £ 155,000 | 0 | 0.00 KM |
| The Orchards | £ 275,000 | 0 | 0.00 KM |
Nearby Transport
| Name | NLC | TLC | Distance |
|---|---|---|---|
| Longton | 1306 | LGN | 2.23 KM |
| Stoke-On-Trent | 1314 | SOT | 3.84 KM |
| Stone (Staffs) | 1316 | SNE | 8.40 KM |
| Longport | 1305 | LPT | 9.28 KM |
Nearby Listings
| Address | Price | Type | Score | Distance |
|---|---|---|---|---|
| Lidgate Grove, Stoke-On-Trent | £ 415,000 | BUY | 7 / 10 | 0.00 KM |
| Lidgate Grove, Blurton, Stoke-on-trent, ST3 | £ 325,000 | BUY | Unknown | 0.07 KM |
| Longton Hall Road, Stoke-On-Trent | £ 160,000 | BUY | Unknown | 0.10 KM |
| Longton Hall Road, Stoke-On-Trent | £ 145,000 | BUY | 6 / 10 | 0.14 KM |
| Perton Wood View, Stoke-on-Trent, Staffordshire, ST3 | £ 300,000 | BUY | 7 / 10 | 0.15 KM |
Nearby Properties
| Address | Price | Distance |
|---|---|---|
| 12 Knowle Wood View | £ 225,000 | 0.12 KM |
| 1 Knowle Wood View | £ 280,000 | 0.12 KM |
| 44 Cockster Brook Lane | £ 63,000 | 0.13 KM |
| 24 Cockster Brook Lane | £ 132,000 | 0.13 KM |
| 17 Cockster Brook Lane | £ 140,000 | 0.13 KM |