Tintern Road, Allington, Maidstone ME16
By Hatch Batten Estates
£ 515,000
Reviews
4 out of 5 stars
Hatch Batten Estates says ..
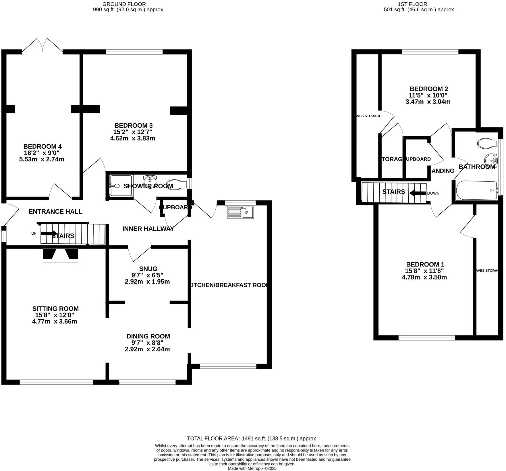
WELL PRESENTED DETACHED CHALET BUNGALOW.FOUR DOUBLE BEDROOMS.GROUND FLOOR SHOWER ROOM.FIRST FLOOR BATHROOM.KITCHEN / BREAKFAST ROOM.LIVING ROOM. DINING ROOM AND SNUG.DRIVEWAY. GARAGE AND GARDENS.
Property Oracle says ..
This property is a 4-bedroom, 2-bathroom detached bungalow situated in Allington, Maidstone. The location benefits from being within a reasonable distance of several primary and secondary schools, all with good Ofsted ratings. Multiple Southeastern train stations are also within a few kilometers, providing convenient access to other towns and cities. The property itself appears to be well-maintained and in good condition, with modern updates to the kitchen and bathrooms evident in the photographs. There is a sizable garden with a patio area, adding to the overall appeal. Compared to similar properties in the area, the list price of £515,000 seems slightly higher than the average, but the larger plot size and modern updates could justify this to some extent.
Therefore, we give this property 8 / 10. *Disclaimer: This is our option and does constitute a recommendation or financial advice. Do your own research. *
- Price
- 7
- Condition
- 9
- Location
- 9
- Land
- 8
- Bedrooms
- 4
- Bathrooms
- 2
- Sqft (est)
- 985.57
- Lot (est)
- 1,491.00
The heatmap indicates the level of crime in the area. The color of the heatmap indicates the crime severity and recency.
Metrics Year-on-Year
- Average area value
- 444,370.00 £Decreased by 0.41 %
- Est sale value
- 539,106.79 £Increased by 35.06 %
- Average area rental value
- 1,706.00 £/moIncreased by 21.86 %
- Est letting value
- 1,971.14 £/moIncreased by 100.00 %
- Est rental Yield
- 4.61 %Increased by 22.61 %
- Crime Rate
- 0.00 %
Agent Activity
Hatch Batten Estates marked this listing as sold.
Hatch Batten Estates created the listing.
Nearby Schools
| Name | Type | Ofsted | Distance |
|---|---|---|---|
| Allington Primary School | Academy Converter | 0.48 KM | |
| Palace Wood Primary School | Community School | Good | 0.49 KM |
| The Maplesden Noakes School | Academy Converter | Good | 1.32 KM |
| St Francis' Catholic Primary School, Maidstone | Voluntary Aided School | Good | 1.36 KM |
| St Simon Stock Catholic School | Academy Converter | Good | 1.40 KM |
Images
Nearby Streets
| Name | Average Price | Average Sqft | Distance |
|---|---|---|---|
| Beauelieu Walk | £ 0 | 0 | 0.00 KM |
| Newbury Avenue | £ 345,000 | 0 | 0.00 KM |
| Palmar Road | £ 550,000 | 0 | 0.00 KM |
| Beech Drive | £ 600,000 | 0 | 0.00 KM |
| Nursery Avenue | £ 583,333 | 0 | 0.00 KM |
Nearby Transport
| Name | NLC | TLC | Distance |
|---|---|---|---|
| Maidstone Barracks | 5237 | MDB | 1.88 KM |
| Barming | 5133 | BMG | 2.22 KM |
| Maidstone West | 5222 | MDW | 2.47 KM |
| Maidstone East | 5115 | MDE | 2.59 KM |
| East Farleigh | 5234 | EFL | 3.69 KM |
Nearby Listings
| Address | Price | Type | Score | Distance |
|---|---|---|---|---|
| Tintern Road, Allington, Maidstone ME16 | £ 515,000 | BUY | 8 / 10 | 0.00 KM |
| Midley Close, Allington, Maidstone ME16 | £ 300,000 | BUY | 5 / 10 | 0.09 KM |
| Flaxman Drive, Maidstone | £ 350,000 | BUY | 6 / 10 | 0.10 KM |
| Newbury Avenue, Allington, Maidstone ME16 | £ 385,000 | BUY | 7 / 10 | 0.10 KM |
| Eversley Close, Maidstone | £ 375,000 | BUY | 7 / 10 | 0.11 KM |
Nearby Properties
| Address | Price | Distance |
|---|---|---|
| 5 Tintern Road | £ 305,000 | 0.00 KM |
| 2 Tintern Road | £ 385,000 | 0.00 KM |
| 11 Tintern Road | £ 295,000 | 0.00 KM |
| 15 Tintern Road | £ 192,500 | 0.00 KM |
| 3 Tintern Road | £ 250,000 | 0.00 KM |