Llanfwrog, Llanfwrog, LL65
By Williams & Goodwin The Property People
£ 359,950
Reviews
2 out of 5 stars
Williams & Goodwin The Property People says ..
Set in a stunning rural location with rolling countryside landscapes, this former Welsh long house is a property full of character, with ample room and scope to expand
Property Oracle says ..
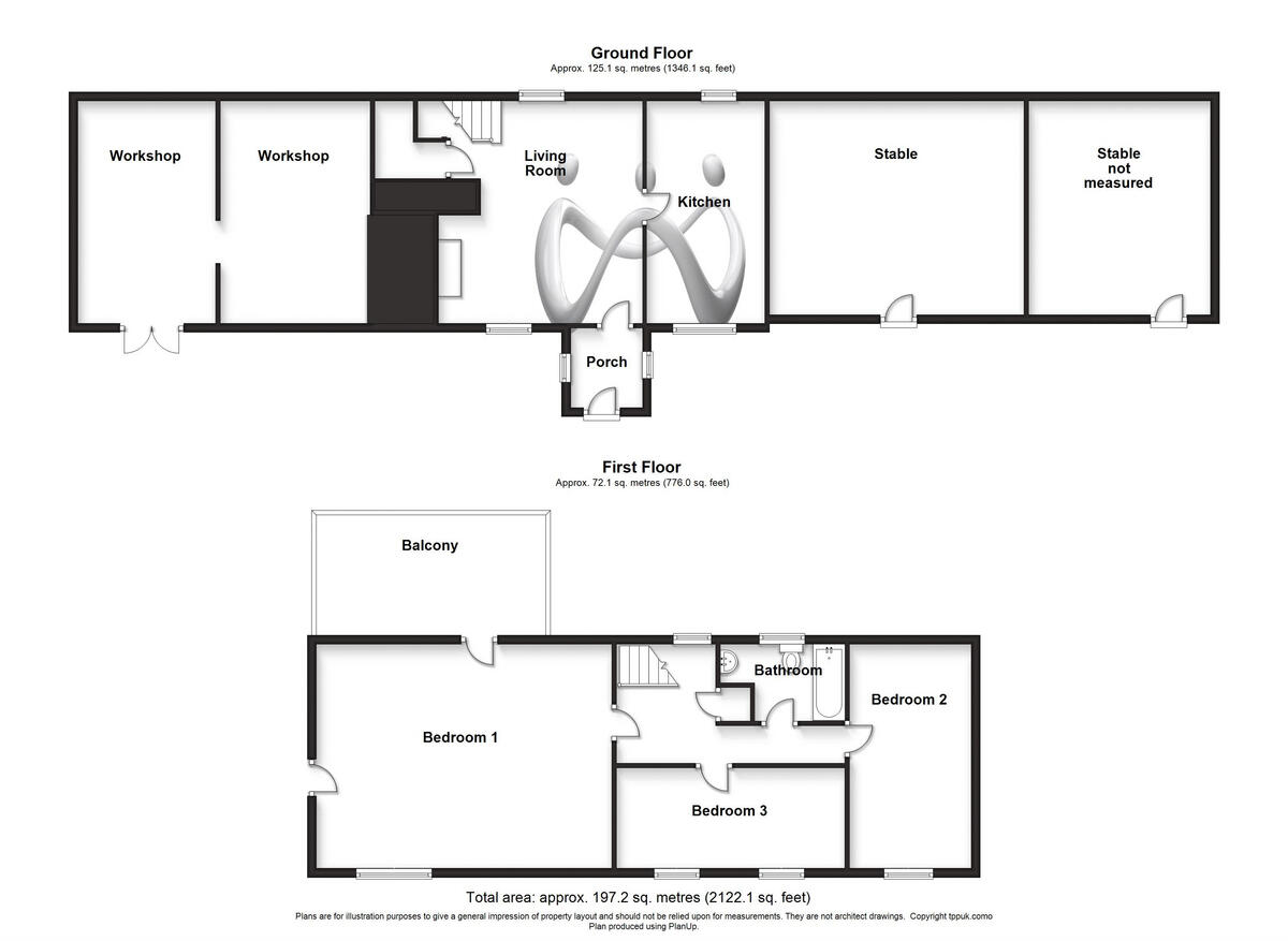
This property is a 3 bedroom, 1 bathroom cottage situated in Llanfwrog, Isle of Anglesey. The property benefits from a large plot size of 2,122.10 sqft and is within 7km of several primary schools and two train stations. The property itself appears to be in need of modernisation and some repair. Whilst the location offers some benefits, the condition of the property and the need for modernisation must be considered when assessing value for money. The list price of £359,950 is significantly higher than the average house price in the area (£264,442) and given that the property requires significant work, this may be considered overpriced.
Therefore, we give this property 5 / 10. *Disclaimer: This is our option and does constitute a recommendation or financial advice. Do your own research. *
- Price
- 4
- Condition
- 4
- Location
- 6
- Land
- 8
- Bedrooms
- 3
- Bathrooms
- 1
- Sqft (est)
- 2,200.00
- Lot (est)
- 2,122.10
The heatmap indicates the level of crime in the area. The color of the heatmap indicates the crime severity and recency.
Metrics Year-on-Year
- Average area value
- 262,500.00 £Decreased by 10.08 %
- Est sale value
- 686,400.00 £Increased by 5.41 %
- Average area rental value
- 1,150.00 £/moIncreased by 8.29 %
- Est letting value
- 2,200.00 £/moUnchanged by 0.00 %
- Est rental Yield
- 5.26 %Increased by 20.37 %
- Crime Rate
- 0.00 %
Agent Activity
Williams & Goodwin The Property People created the listing.
Nearby Schools
| Name | Type | Ofsted | Distance |
|---|---|---|---|
| Ysgol Gymuned Fali | Welsh Establishment | 4.85 KM | |
| Ysgol Llanfawr | Welsh Establishment | 6.33 KM | |
| Ysgol Gynradd Kingsland | Welsh Establishment | 6.96 KM | |
| Ysgol Gymraeg Morswyn | Welsh Establishment | 6.96 KM | |
| Ysgol Y Tywyn | Welsh Establishment | 7.04 KM |
Images
Nearby Streets
| Name | Average Price | Average Sqft | Distance |
|---|---|---|---|
| Trem Y Mor | £ 0 | 0 | 0.00 KM |
| Beach Road | £ 0 | 0 | 0.00 KM |
Nearby Transport
| Name | NLC | TLC | Distance |
|---|---|---|---|
| Valley | 2440 | VAL | 4.92 KM |
| Holyhead | 2437 | HHD | 7.09 KM |
Nearby Listings
| Address | Price | Type | Score | Distance |
|---|---|---|---|---|
| Llanfwrog, Llanfwrog, LL65 | £ 359,950 | BUY | 5 / 10 | 0.00 KM |
| Llanfwrog, Isle of Anglesey, LL65 | £ 355,000 | BUY | 6 / 10 | 0.31 KM |
| Llanfwrog, Holyhead, Isle of Anglesey, LL65 | £ 385,000 | BUY | 7 / 10 | 0.81 KM |
| Llanfaethlu, Holyhead, Anglesey, LL65 | £ 1,250,000 | BUY | 7 / 10 | 1.65 KM |