Junction Terrace, Ince, Wigan, WN3
By Thomas James Sales and Lettings
£ 100,000
Reviews
3 out of 5 stars
Thomas James Sales and Lettings says ..
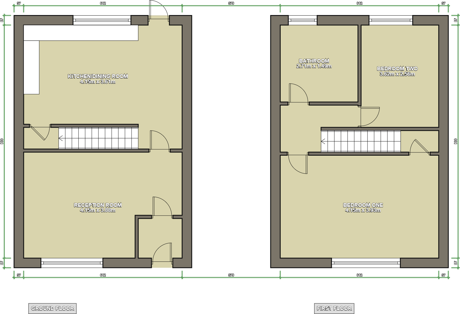
New to the Market – Two-Bedroom Mid-Terraced Property with Huge Potential This spacious two-bedroom mid-terraced home is full of potential and presents a fantastic opportunity for investors or first-time buyers alike. Situated in a popular and convenient location, the property benefits from of...
Property Oracle says ..
Therefore, we give this property 6 / 10. *Disclaimer: This is our option and does constitute a recommendation or financial advice. Do your own research. *
- Price
- 9
- Condition
- 3
- Location
- 7
- Land
- 6
- Bedrooms
- 2
- Bathrooms
- 1
- Sqft (est)
- 653.35
The heatmap indicates the level of crime in the area. The color of the heatmap indicates the crime severity and recency.
Metrics Year-on-Year
- Average area value
- 348,000.00 £Decreased by 28.05 %
- Est sale value
- 271,140.25 £Decreased by 22.72 %
- Average area rental value
- 1,967.00 £/moUnchanged by 0.00 %
- Est letting value
- 1,306.70 £/moUnchanged by 0.00 %
- Est rental Yield
- 6.78 %Increased by 38.93 %
- Crime Rate
- 0.00 %
Agent Activity
Thomas James Sales and Lettings marked this listing as sold.
Thomas James Sales and Lettings created the listing.
Nearby Schools
| Name | Type | Ofsted | Distance |
|---|---|---|---|
| Britannia Bridge Primary School | Community School | Good | 0.46 KM |
| St William'S Catholic Primary School | Voluntary Aided School | Good | 0.96 KM |
| St Catharine'S Cofe Primary School | Voluntary Aided School | Good | 0.99 KM |
| St Patrick'S Catholic Primary School | Voluntary Aided School | Outstanding | 1.07 KM |
| Dean Trust Rose Bridge | Academy Sponsor Led | 1.11 KM |
Images
Nearby Streets
| Name | Average Price | Average Sqft | Distance |
|---|---|---|---|
| Woodlands Avenue | £ 0 | 0 | 0.00 KM |
| The Grove | £ 0 | 0 | 0.00 KM |
| Bryn Street | £ 0 | 0 | 0.00 KM |
| Greenfield Avenue | £ 175,000 | 0 | 0.00 KM |
| Sherbourne Place | £ 0 | 0 | 0.00 KM |
Nearby Transport
| Name | NLC | TLC | Distance |
|---|---|---|---|
| Ince (Manchester) | 2236 | INC | 0.37 KM |
| Wigan North Western | 2363 | WGN | 2.20 KM |
| Wigan Wallgate | 2406 | WGW | 2.23 KM |
| Hindley | 2398 | HIN | 4.34 KM |
| Bryn | 2222 | BYN | 5.51 KM |
Nearby Listings
| Address | Price | Type | Score | Distance |
|---|---|---|---|---|
| Junction Terrace, Ince, Wigan, WN3 | £ 100,000 | BUY | 6 / 10 | 0.00 KM |
| Violet Street, Ince, WN3 | £ 220,000 | BUY | 7 / 10 | 0.05 KM |
| 11 Violet Street, Ince, Wigan, WN3 4QS | £ 40,000 | BUY | 5 / 10 | 0.08 KM |
| Violet Street, Ince, Wigan, Greater Manchester, WN3 | £ 100,000 | BUY | Unknown | 0.08 KM |
| Junction Terrace, Ince, WN3 | £ 100,000 | BUY | 4 / 10 | 0.09 KM |
Nearby Properties
| Address | Price | Distance |
|---|---|---|
| 14 Junction Terrace | £ 29,995 | 0.04 KM |
| 8 Junction Terrace | £ 74,950 | 0.04 KM |
| 4 Junction Terrace | £ 110,000 | 0.04 KM |
| 26 Junction Terrace | £ 80,000 | 0.04 KM |
| 10 Junction Terrace | £ 133,000 | 0.04 KM |