Fir Street, Southport, Merseyside, PR8 6HD
By Flexi-Agent
£ 260,000
Reviews
3 out of 5 stars
Flexi-Agent says ..
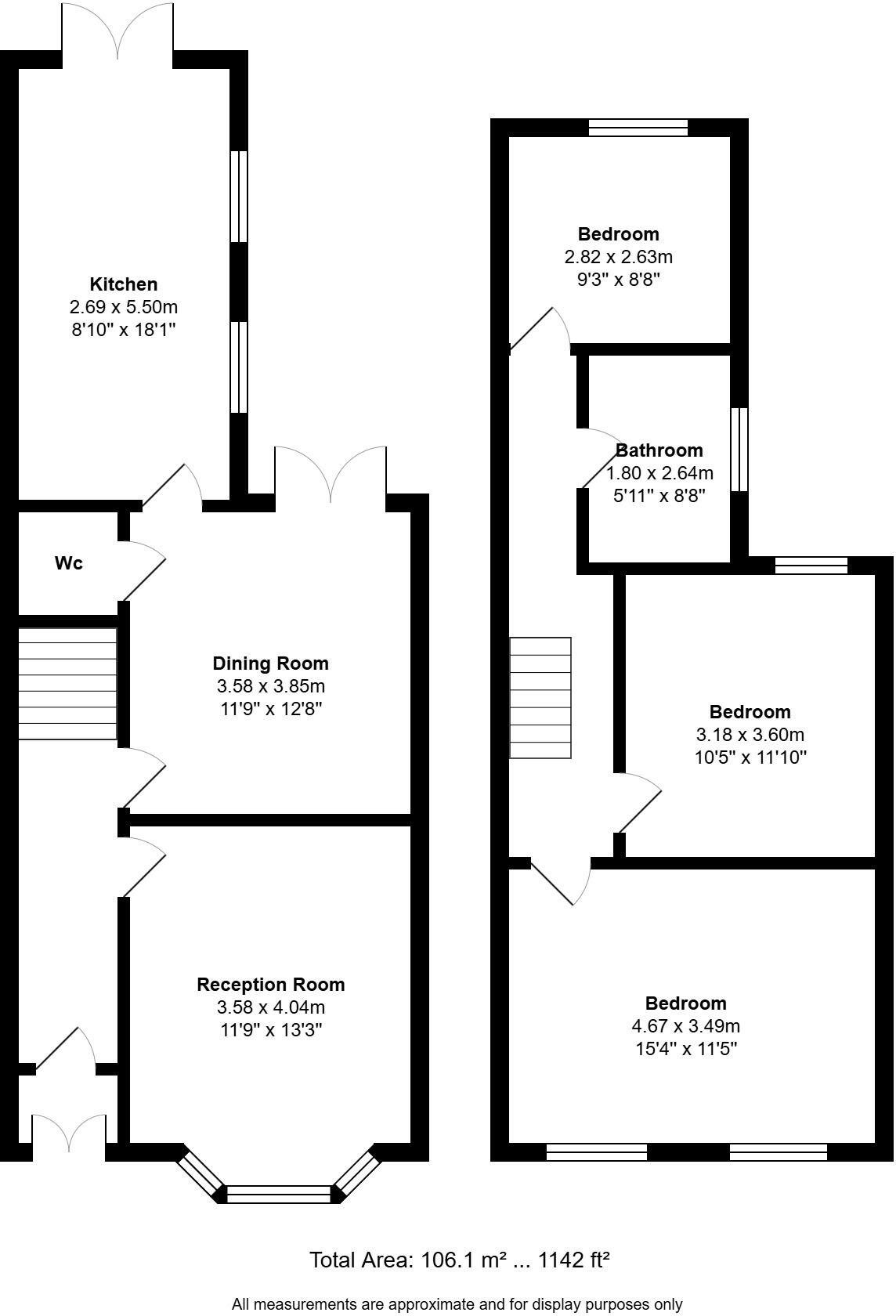
Extended Three Bedroom Semi-Detached Home in Sought-After Southport Location
Property Oracle says ..
Therefore, we give this property 7 / 10. *Disclaimer: This is our option and does constitute a recommendation or financial advice. Do your own research. *
- Price
- 7
- Condition
- 8
- Location
- 8
- Land
- 7
- Bedrooms
- 3
- Bathrooms
- 1
- Sqft (est)
- 1,142.05
The heatmap indicates the level of crime in the area. The color of the heatmap indicates the crime severity and recency.
Metrics Year-on-Year
- Average area value
- 273,000.00 £Increased by 27.13 %
- Est sale value
- 255,819.20 £Increased by 16.06 %
- Average area rental value
- 938.00 £/moDecreased by 8.75 %
- Est letting value
- 0.00 £/mo
- Est rental Yield
- 4.12 %Decreased by 28.22 %
- Crime Rate
- 3.00 %Unchanged by 0.00 %
from 214,740.00 £
from 220,415.65 £
from 1,028.00 £/mo
from 0.00 £/mo
from 5.74 %
from 3.00 %
Agent Activity
Flexi-Agent created the listing.
Nearby Schools
| Name | Type | Ofsted | Distance |
|---|---|---|---|
| Norwood Primary School | Community School | Good | 0.59 KM |
| Meols Cop High School | Community School | Outstanding | 0.60 KM |
| Holy Family Catholic Primary School | Voluntary Aided School | Good | 0.69 KM |
| Kew Woods Primary School | Academy Converter | 1.47 KM | |
| Bishop David Sheppard Children'S Centre | Children's Centre Linked Site | 1.61 KM |
Images
Nearby Streets
| Name | Average Price | Average Sqft | Distance |
|---|---|---|---|
| Keats Terrace | £ 190,000 | 0 | 0.00 KM |
| Brompton Road | £ 0 | 0 | 0.00 KM |
| Princes Gardens | £ 60,000 | 0 | 0.00 KM |
| Haig Avenue | £ 170,000 | 0 | 0.00 KM |
| Butts Lane | £ 0 | 0 | 0.00 KM |
Nearby Transport
| Name | NLC | TLC | Distance |
|---|---|---|---|
| Meols Cop | 2357 | MEC | 0.31 KM |
| Southport | 2262 | SOP | 2.87 KM |
| Birkdale | 2352 | BDL | 4.31 KM |
| Hillside | 2231 | HIL | 5.82 KM |
| Bescar Lane | 2351 | BES | 7.21 KM |
Nearby Listings
| Address | Price | Type | Score | Distance |
|---|---|---|---|---|
| Fir Street, Southport, Merseyside, PR8 6HD | £ 260,000 | BUY | 7 / 10 | 0.00 KM |
| Fir Street, Southport | £ 265,000 | BUY | 7 / 10 | 0.06 KM |
| Fir Street, Southport | £ 240,000 | BUY | Unknown | 0.06 KM |
| Cypress Road, Southport, Merseyside, PR8 6HF | £ 245,000 | BUY | 7 / 10 | 0.11 KM |
| Cypress Road, Southport, PR8 6HF | £ 250,000 | BUY | 7 / 10 | 0.13 KM |
Nearby Properties
| Address | Price | Distance |
|---|---|---|
| 19 Fir Street | £ 210,000 | 0.02 KM |
| 22 Fir Street | £ 151,000 | 0.02 KM |
| 43 Fir Street | £ 170,000 | 0.02 KM |
| 7 Fir Street | £ 135,000 | 0.02 KM |
| 29 Fir Street | £ 184,500 | 0.02 KM |