Forest Knight says ..
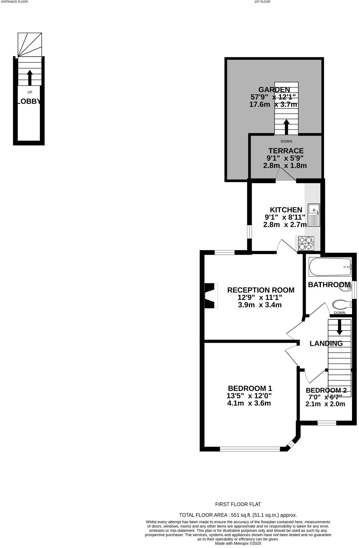
A bright and well-proportioned first-floor maisonette in NW10, featuring two double bedrooms, a modern finish throughout, and exclusive access to a private rear garden. Set on a quiet residential street close to transport and loca
Property Oracle says ..
This maisonette is located in Dudden Hill, Brent, London. The property is a two-bedroom, one-bathroom maisonette with a small garden. While the images show a recently updated kitchen and bathroom, the overall condition of the property appears to be fair. Some minor cosmetic work may be needed, but no major renovations seem necessary. The property is listed at £365,000, which is significantly lower than the average price for the area (£545,086). The average price per square foot in the area is £537, while this property is listed at approximately £662 per square foot. Considering the lower-than-average price and the property’s condition, location, and size, the list price might be considered reasonable, although further investigation into comparable properties would be beneficial. The property is conveniently located near several schools with good Ofsted ratings and is within a reasonable distance of public transport options.
Therefore, we give this property 6 / 10. *Disclaimer: This is our option and does constitute a recommendation or financial advice. Do your own research. *
- Price
- 8
- Condition
- 6
- Location
- 7
- Land
- 4
- Bedrooms
- 2
- Bathrooms
- 1
- Sqft (est)
- 551.00
The heatmap indicates the level of crime in the area. The color of the heatmap indicates the crime severity and recency.
Metrics Year-on-Year
- Average area value
- 601,250.00 £Decreased by 12.11 %
- Est sale value
- 230,318.00 £Decreased by 27.18 %
- Average area rental value
- 2,507.00 £/moIncreased by 10.78 %
- Est letting value
- 551.00 £/moUnchanged by 0.00 %
- Est rental Yield
- 5.00 %Increased by 25.94 %
- Crime Rate
- 5.00 %Unchanged by 0.00 %
Agent Activity
Forest Knight created the listing.
Nearby Schools
| Name | Type | Ofsted | Distance |
|---|---|---|---|
| Northview Junior And Infant School | Community School | Good | 0.39 KM |
| Braintcroft E-Act Primary Academy | Academy Sponsor Led | 0.69 KM | |
| E-Act Crest Academy | Academy Sponsor Led | Good | 0.71 KM |
| Menorah High School For Girls | Voluntary Aided School | Good | 0.77 KM |
| Unity Girls High School | Other Independent School | Good | 1.05 KM |
Images
Nearby Streets
| Name | Average Price | Average Sqft | Distance |
|---|---|---|---|
| Prout Grove | £ 570,000 | 0 | 0.00 KM |
| Northview Crescent | £ 0 | 0 | 0.00 KM |
| A4088 | £ 0 | 0 | 0.00 KM |
| Links Road | £ 0 | 0 | 0.00 KM |
| Chartley Avenue | £ 0 | 0 | 0.00 KM |
Nearby Transport
| Name | NLC | TLC | Distance |
|---|---|---|---|
| Hendon | 1522 | HEN | 2.52 KM |
| Harlesden | 1521 | HDN | 2.82 KM |
| Willesden Junction | 1457 | WIJ | 2.88 KM |
| Cricklewood | 1519 | CRI | 3.60 KM |
| Stonebridge Park | 1454 | SBP | 3.73 KM |
Nearby Listings
| Address | Price | Type | Score | Distance |
|---|---|---|---|---|
| Clifford Way, London, NW10 | £ 365,000 | BUY | 6 / 10 | 0.00 KM |
| Clifford Way, London, NW10 | £ 620,000 | BUY | 6 / 10 | 0.02 KM |
| Clifford Way, London, NW10 | £ 725,000 | BUY | 6 / 10 | 0.02 KM |
| Clifford Way, London, NW10 | £ 699,950 | BUY | 6 / 10 | 0.02 KM |
| Clifford Way, Dollis Hill, London, NW10 | £ 800,000 | BUY | 6 / 10 | 0.02 KM |
Nearby Properties
| Address | Price | Distance |
|---|---|---|
| 52 Clifford Way | £ 70,000 | 0.00 KM |
| 12 Clifford Way | £ 105,000 | 0.00 KM |
| 10 Clifford Way | £ 405,000 | 0.02 KM |
| 54a Clifford Way | £ 330,000 | 0.02 KM |
| 42 Clifford Way | £ 370,000 | 0.02 KM |