haart says ..
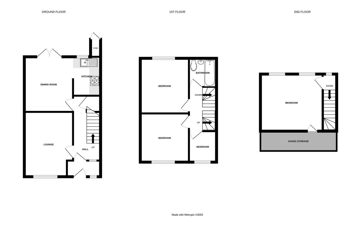
A deceptively spacious four bedroom family home with generous garden and large double garage
Property Oracle says ..
This four-bedroom terraced house in Coventry is listed at £220,000. The property benefits from being close to good schools such as Holbrook Primary School and John Shelton Community Primary School, both rated as ‘Good’ by Ofsted. Transport links are also convenient, with Coventry Arena station within a reasonable distance. However, the property shows signs of needing some renovation and updating. The images show the interior needing some modernisation and the garden requires attention. The plot size is listed as 0.00 sqft, which suggests a small or non-existent garden. While the average house price in the area is £294,913, and the average price per sqft is £362, this property is significantly below average in price. Considering its condition and the need for potential renovations, the asking price might be considered reasonable, but a thorough survey is recommended before purchasing.
Therefore, we give this property 5 / 10. *Disclaimer: This is our option and does constitute a recommendation or financial advice. Do your own research. *
- Price
- 7
- Condition
- 5
- Location
- 7
- Land
- 3
- Bedrooms
- 4
- Bathrooms
- 1
- Sqft (est)
- 1,089.00
The heatmap indicates the level of crime in the area. The color of the heatmap indicates the crime severity and recency.
Metrics Year-on-Year
- Average area value
- 322,273.00 £Increased by 42.93 %
- Est sale value
- 486,783.00 £Increased by 83.20 %
- Average area rental value
- 1,229.00 £/moIncreased by 3.19 %
- Est letting value
- 1,089.00 £/moUnchanged by 0.00 %
- Est rental Yield
- 4.58 %Decreased by 27.76 %
- Crime Rate
- 9.00 %Unchanged by 0.00 %
Agent Activity
haart created the listing.
Nearby Schools
| Name | Type | Ofsted | Distance |
|---|---|---|---|
| Holbrook Primary School | Community School | Good | 0.73 KM |
| Flutterbies Children'S Centre, Holbrooks | Children's Centre | 0.77 KM | |
| John Shelton Community Primary School | Community School | Good | 0.88 KM |
| Exhall Grange Specialist School | Community Special School | Good | 1.44 KM |
| Lote Tree Primary School | Other Independent School | Good | 1.45 KM |
Images
Nearby Streets
| Name | Average Price | Average Sqft | Distance |
|---|---|---|---|
| Jimmy Hill Way | £ 280,000 | 0 | 0.00 KM |
| Gateside Road | £ 0 | 0 | 0.00 KM |
| The Ridings | £ 0 | 0 | 0.00 KM |
| Park Avenue | £ 140,000 | 0 | 0.00 KM |
| Achal Close | £ 0 | 0 | 0.00 KM |
Nearby Transport
| Name | NLC | TLC | Distance |
|---|---|---|---|
| Coventry Arena | 7416 | CAA | 0.83 KM |
| Coventry | 1030 | COV | 5.05 KM |
| Bedworth | 1165 | BEH | 5.36 KM |
| Bermuda Park | 6543 | BEP | 7.09 KM |
| Canley | 1129 | CNL | 7.21 KM |
Nearby Listings
| Address | Price | Type | Score | Distance |
|---|---|---|---|---|
| Dunster Place, Coventry | £ 220,000 | BUY | 5 / 10 | 0.00 KM |
| Dunster Place, Holbrooks, Coventry | £ 180,000 | BUY | 6 / 10 | 0.03 KM |
| Selworthy Road Newly Renovated | £ 230,000 | BUY | 6 / 10 | 0.07 KM |
| Leyburn Close, Holbrooks, Coventry, CV6 | £ 200,000 | BUY | 6 / 10 | 0.09 KM |
| Selworthy Road, Holbrooks, Coventry | £ 200,000 | BUY | 7 / 10 | 0.10 KM |
Nearby Properties
| Address | Price | Distance |
|---|---|---|
| 26 Selworthy Road | £ 36,500 | 0.07 KM |
| 28 Selworthy Road | £ 87,000 | 0.07 KM |
| 12 Selworthy Road | £ 117,000 | 0.07 KM |
| 6 Selworthy Road | £ 124,995 | 0.07 KM |
| 2 Selworthy Road | £ 210,000 | 0.07 KM |