Union Lane, Oulton Broad, Lowestoft, Suffolk NR32
By Aldreds
£ 395,000
Reviews
3 out of 5 stars
Aldreds says ..
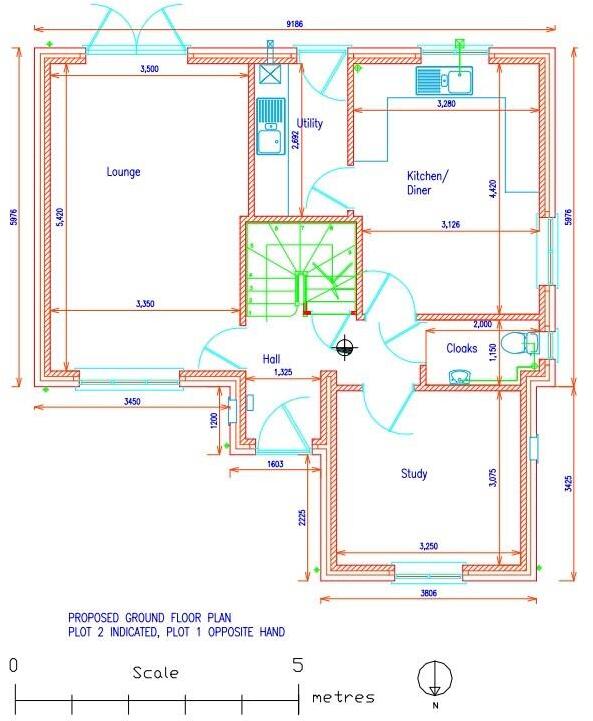
Aldreds are delighted to offer this brand new executive 4 bedroom detached house situated in the very desirable Oulton Village location. This quality built family home has a 10 year buildings guarantee and offers versatile accommodation including a wide entrance hall, front to back lounge, open p...
Property Oracle says ..
This detached property on Union Lane in Oulton Broad offers four bedrooms and two bathrooms. The house appears to be in excellent condition, possibly newly built or recently renovated. It includes a garden and off-street parking. While the price per square foot is above the local average, the overall condition and detached nature of the property contribute to its value. The location is convenient, with proximity to schools and transportation, making it a desirable family home.
Therefore, we give this property 7 / 10. *Disclaimer: This is our option and does constitute a recommendation or financial advice. Do your own research. *
- Price
- 7
- Condition
- 9
- Location
- 7
- Land
- 6
- Bedrooms
- 4
- Bathrooms
- 2
- Sqft (est)
- 195.50
The heatmap indicates the level of crime in the area. The color of the heatmap indicates the crime severity and recency.
Metrics Year-on-Year
- Average area value
- 223,471.00 £Decreased by 26.58 %
- Est sale value
- 46,333.50 £Decreased by 14.13 %
- Average area rental value
- 1,004.00 £/moDecreased by 12.47 %
- Est letting value
- 195.50 £/moUnchanged by 0.00 %
- Est rental Yield
- 5.39 %Increased by 19.25 %
- Crime Rate
- 9.00 %Unchanged by 0.00 %
Agent Activity
Aldreds created the listing.
Nearby Schools
| Name | Type | Ofsted | Distance |
|---|---|---|---|
| Woods Loke Primary School | Academy Converter | 1.02 KM | |
| Benjamin Britten Academy Of Music And Mathematics | Academy Sponsor Led | Good | 1.21 KM |
| Village Rise Children'S Centre | Children's Centre | 1.25 KM | |
| Roman Hill Children'S Centre | Children's Centre | 1.25 KM | |
| The Limes Primary Academy | Free Schools | 1.38 KM |
Images
Nearby Streets
| Name | Average Price | Average Sqft | Distance |
|---|---|---|---|
| Glebe Crescent | £ 0 | 0 | 0.00 KM |
| Sanders Close | £ 260,000 | 0 | 0.00 KM |
| Herivan Close | £ 220,000 | 0 | 0.00 KM |
| Hobart Close | £ 329,375 | 0 | 0.00 KM |
| Lavenham Way | £ 270,000 | 0 | 0.00 KM |
Nearby Transport
| Name | NLC | TLC | Distance |
|---|---|---|---|
| Oulton Broad North | 7273 | OUN | 2.08 KM |
| Oulton Broad South | 7274 | OUS | 3.25 KM |
| Lowestoft | 7268 | LWT | 4.03 KM |
| Somerleyton | 7320 | SYT | 7.70 KM |
Nearby Listings
| Address | Price | Type | Score | Distance |
|---|---|---|---|---|
| Union Lane, Oulton Broad, Lowestoft, Suffolk NR32 | £ 395,000 | BUY | 7 / 10 | 0.00 KM |
| Oulton Street Oulton Village, NR32 | £ 160,000 | BUY | Unknown | 0.07 KM |
| Oulton Street, Oulton | £ 160,000 | BUY | 6 / 10 | 0.10 KM |
| Union Lane, Oulton, Lowestoft, NR32 3AX | £ 230,000 | BUY | 7 / 10 | 0.17 KM |
| Oulton Street, Oulton | £ 500,000 | BUY | 6 / 10 | 0.17 KM |
Nearby Properties
| Address | Price | Distance |
|---|---|---|
| 5 Lothingland Close | £ 218,000 | 0.09 KM |
| 7 Lothingland Close | £ 290,000 | 0.09 KM |
| 9 Lothingland Close | £ 247,000 | 0.09 KM |
| 1 Lothingland Close | £ 228,000 | 0.09 KM |
| 17 Red House Close | £ 172,995 | 0.09 KM |