Springfield Crescent, Northam
By Morris and Bott
£ 419,950
Reviews
3 out of 5 stars
Morris and Bott says ..
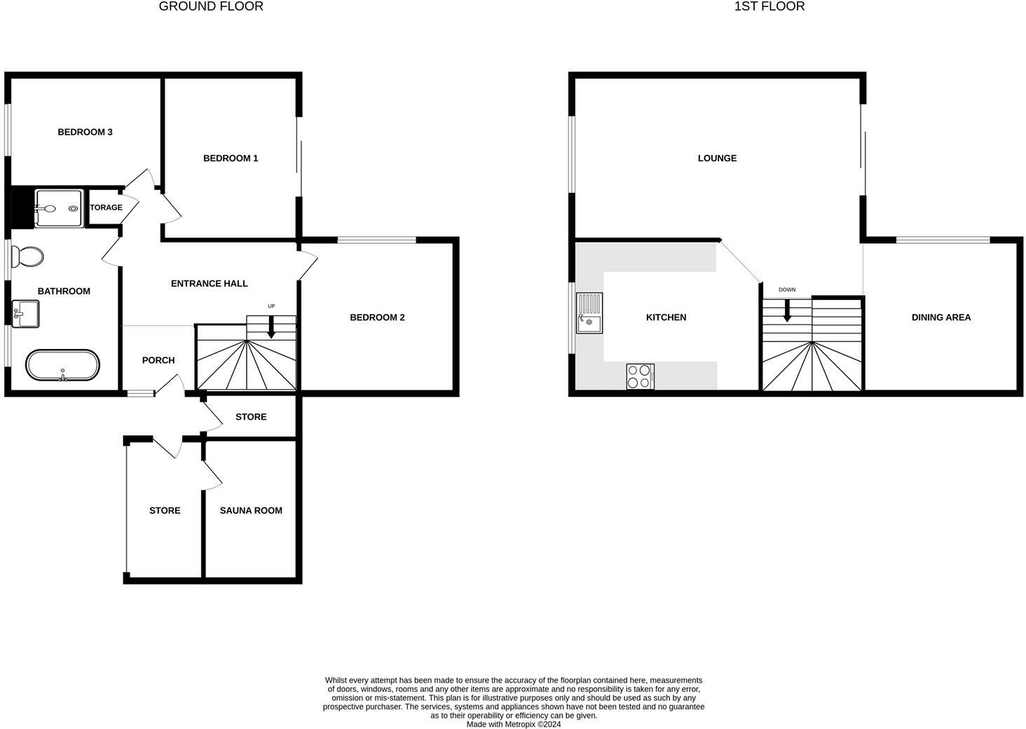
Introducing this impressive detached home, nestled in a private, tucked-away location just a stone's throw from Northam Village Square. Offering delightful sea views, the property features reverse-level accommodation, showcasing a stunning open-plan living space upstairs. The ground floor hosts t...
Property Oracle says ..
This three-bedroom detached house located on Springfield Crescent in Northam, Devon is presented for sale by Morris and Bott. The property benefits from a desirable coastal location in a picturesque village setting. Northam is known for its local amenities, easy access to the beach and the presence of nearby well-regarded primary schools. The house itself appears to be well-maintained and boasts a contemporary style, showcasing modern upgrades in the kitchen and bathroom. Images reveal a good-sized garden area which has been landscaped, including a hot tub and patio. Given the average price of comparable properties on Springfield Crescent, the asking price is slightly elevated, suggesting a premium is being charged possibly due to the property’s superior condition and outdoor space. While further information regarding the plot size and the precise quality of fittings would be needed for a definitive valuation, it appears that the property represents a solid investment opportunity for buyers seeking a well-appointed home in a beautiful coastal location. The proximity to well-regarded local primary schools makes this an attractive proposition for families. The absence of detailed information regarding plot size and transportation limitations is a minor drawback that may influence some buyers.
Therefore, we give this property 7 / 10. *Disclaimer: This is our option and does constitute a recommendation or financial advice. Do your own research. *
- Price
- 7
- Condition
- 8
- Location
- 7
- Land
- 6
- Bedrooms
- 3
- Bathrooms
- 1
- Sqft (est)
- 1,100.00
The heatmap indicates the level of crime in the area. The color of the heatmap indicates the crime severity and recency.
Metrics Year-on-Year
- Average area value
- 450,000.00 £Increased by 14.46 %
- Est sale value
- 394,900.00 £Increased by 8.79 %
- Average area rental value
- 850.00 £/moDecreased by 4.39 %
- Est letting value
- 0.00 £/mo
- Est rental Yield
- 2.27 %Decreased by 16.24 %
- Crime Rate
- 106.00 %Unchanged by 0.00 %
Agent Activity
Morris and Bott created the listing.
Nearby Schools
| Name | Type | Ofsted | Distance |
|---|---|---|---|
| St Margaret'S Church Of England (Aided) Junior School | Voluntary Aided School | Requires improvement | 0.17 KM |
| St George'S Church Of England (Va) Infant And Nursery School | Voluntary Aided School | Good | 0.33 KM |
| Bideford Bay Children'S Centre | Children's Centre | 1.99 KM | |
| St Mary'S Church Of England Primary School | Voluntary Controlled School | Good | 2.00 KM |
| Appledore School | Foundation School | Good | 2.14 KM |
Images
Nearby Streets
| Name | Average Price | Average Sqft | Distance |
|---|---|---|---|
| Springfield Crescent | £ 334,975 | 0 | 0.00 KM |
| Jackets Lane | £ 0 | 0 | 0.00 KM |
| Churchill Way | £ 275,000 | 0 | 0.00 KM |
| Lansdowne Park | £ 325,000 | 0 | 0.00 KM |
| Tudor Court | £ 0 | 0 | 0.00 KM |
Nearby Listings
| Address | Price | Type | Score | Distance |
|---|---|---|---|---|
| Springfield Crescent, Northam | £ 419,950 | BUY | 7 / 10 | 0.00 KM |
| Northam, Bideford | £ 217,500 | BUY | 6 / 10 | 0.08 KM |
| Springfield Terrace, Northam | £ 275,000 | BUY | Unknown | 0.12 KM |
| The Square, Northam | £ 150,000 | BUY | 6 / 10 | 0.15 KM |
| Morwenna Park Road, Northam, Bideford, Devon, EX39 | £ 195,000 | BUY | Unknown | 0.15 KM |
Nearby Properties
| Address | Price | Distance |
|---|---|---|
| Green Pastures | £ 215,000 | 0.04 KM |
| 2 Springfield Crescent | £ 76,000 | 0.04 KM |
| Hillside | £ 235,000 | 0.04 KM |
| 8 Seaview Road | £ 145,000 | 0.07 KM |
| 9 Seaview Road | £ 145,000 | 0.07 KM |