Your Move says ..
***Guide Price £425,000 - £450,000*** Step into the tranquillity of this three-bedroom bungalow, where charm meets practicality. With a spacious and well-maintained interior, this home offers a comfortable living space for your family. The large upstairs third bedroom ...
Property Oracle says ..
This three-bedroom bungalow located on Methuen Road in Belvedere, Bexley, offers a comfortable family home. The property’s proximity to Belvedere station provides excellent commuter links into Central London. Nearby schools, including Belvedere Junior School (rated ‘Good’ by Ofsted), cater well to families. The images showcase a property that is habitable and relatively clean, though some cosmetic updates might enhance its overall appeal. The garden provides outdoor space, although it is rather modest in size and may require landscaping. While specific details regarding the property’s square footage are limited, the asking price appears to be relatively competitive based on the information available, although more comprehensive data would solidify the assessment. Overall, the property represents a decent family home in a convenient location, suitable for those seeking a balance of accessibility and affordability within Greater London. Buyers should be prepared to make minor updates and enhancements to fully realise the property’s potential.
Therefore, we give this property 6 / 10. *Disclaimer: This is our option and does constitute a recommendation or financial advice. Do your own research. *
- Price
- 7
- Condition
- 6
- Location
- 7
- Land
- 4
- Bedrooms
- 3
- Bathrooms
- 1
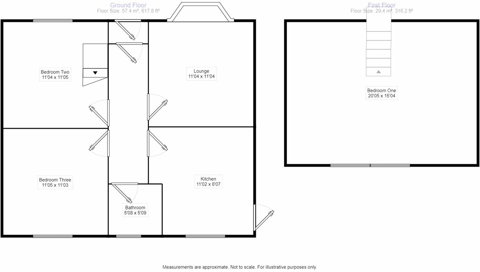
- Sqft (est)
- 617.80
The heatmap indicates the level of crime in the area. The color of the heatmap indicates the crime severity and recency.
Metrics Year-on-Year
- Average area value
- 395,833.00 £Increased by 7.53 %
- Est sale value
- 341,643.40 £Increased by 34.55 %
- Average area rental value
- 1,588.00 £/moDecreased by 8.68 %
- Est letting value
- 1,235.60 £/moIncreased by 100.00 %
- Est rental Yield
- 4.81 %Decreased by 15.17 %
- Crime Rate
- 5.00 %Unchanged by 0.00 %
Agent Activity
Your Move created the listing.
Nearby Schools
| Name | Type | Ofsted | Distance |
|---|---|---|---|
| Belvedere Infant School | Academy Converter | 0.15 KM | |
| Belvedere Junior School | Academy Sponsor Led | Good | 0.15 KM |
| Cornerstone School | Free Schools Special | 0.24 KM | |
| Trinity Church Of England School, Belvedere | Academy Converter | Good | 0.53 KM |
| Lessness Heath Primary School | Academy Sponsor Led | Good | 1.25 KM |
Images
Nearby Streets
| Name | Average Price | Average Sqft | Distance |
|---|---|---|---|
| Fox House Road | £ 0 | 0 | 0.00 KM |
| Picardy Manorway | £ 0 | 0 | 0.00 KM |
| Baltimore Close | £ 0 | 0 | 0.00 KM |
| Tower Court | £ 0 | 0 | 0.00 KM |
| B253 | £ 0 | 0 | 0.00 KM |
Nearby Transport
| Name | NLC | TLC | Distance |
|---|---|---|---|
| Belvedere | 5092 | BVD | 0.69 KM |
| Erith | 5104 | ERH | 2.08 KM |
| Barnehurst | 5089 | BNH | 2.76 KM |
| Bexleyheath | 5094 | BXH | 3.97 KM |
| Abbey Wood | 5131 | ABW | 4.06 KM |
Nearby Listings
| Address | Price | Type | Score | Distance |
|---|---|---|---|---|
| Methuen Road, Belvedere, DA17 | £ 425,000 | BUY | 6 / 10 | 0.00 KM |
| Lower Road, Belvedere, Kent, DA17 | £ 425,000 | BUY | Unknown | 0.05 KM |
| Lower Road, Belvedere, Kent, DA17 | £ 450,000 | BUY | 6 / 10 | 0.05 KM |
| Parkside Road, Belvedere, DA17 | £ 450,000 | BUY | 7 / 10 | 0.07 KM |
| Parkside Road, Belvedere, DA17 | £ 430,000 | BUY | 6 / 10 | 0.07 KM |
Nearby Properties
| Address | Price | Distance |
|---|---|---|
| 5 Methuen Road | £ 147,000 | 0.01 KM |
| 13 Methuen Road | £ 387,000 | 0.01 KM |
| 2 Methuen Road | £ 310,000 | 0.01 KM |
| 4 Methuen Road | £ 345,000 | 0.01 KM |
| 10 Methuen Road | £ 375,000 | 0.01 KM |