The Address says ..
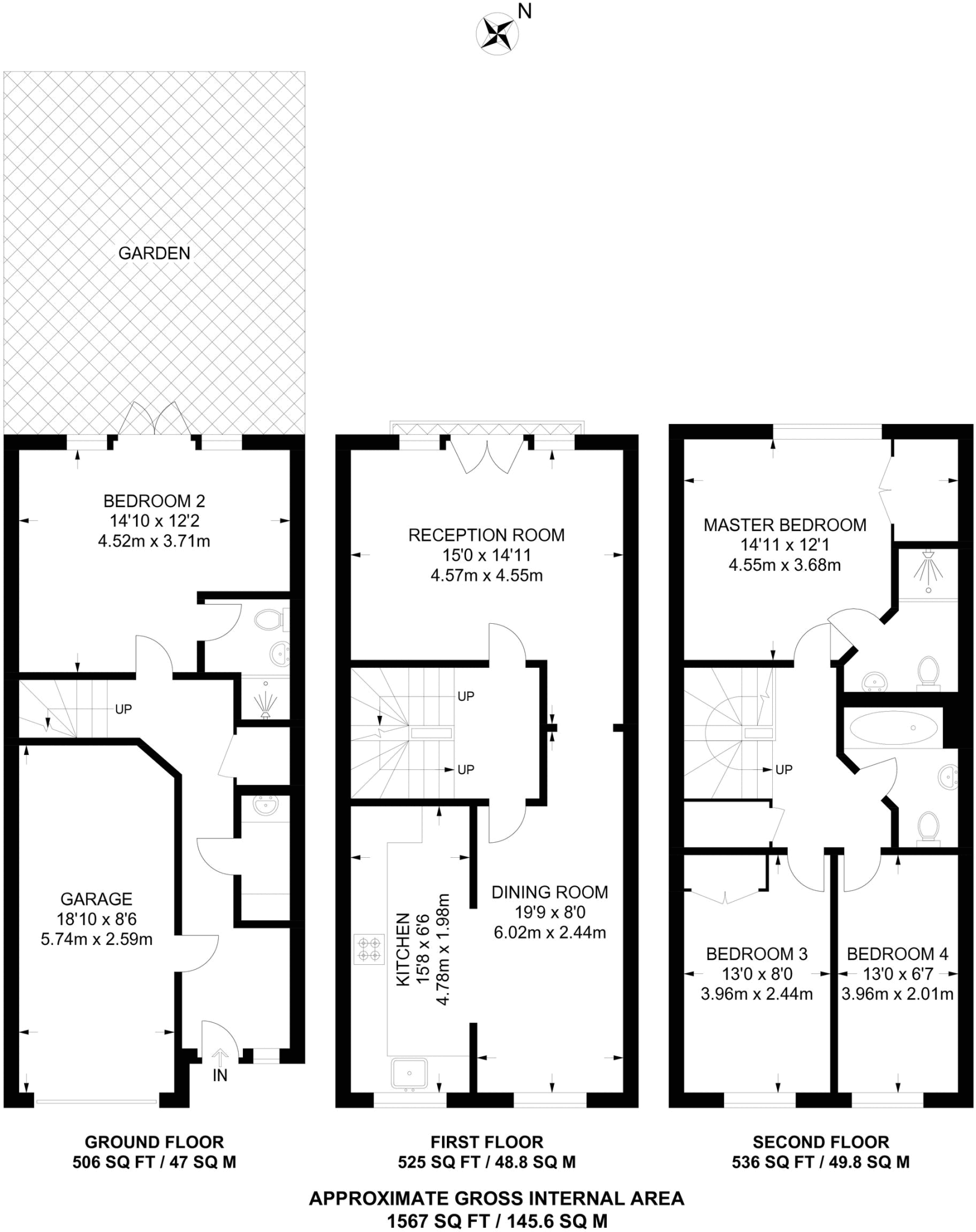
The Address are pleased to present this spacious four bedroom terraced townhouse in a private mews set back from the road with integral garage and off street parking for two cars.
Property Oracle says ..
The property is located in Croydon Road, Beckenham, BR3 which is in a convenient location with nearby transportation links such as Clock House station (0.88km away). There are also several schools within a reasonable distance, including Balgowan Primary School (0.44km) and Kings London (0.90km). The property itself appears to be in good condition based on the provided photos. It seems well-maintained and modern. The property includes a garden, which is a desirable feature. Given the condition, location, and inclusion of a garden, the list price of £650,000 seems reasonable compared to other properties in the area. However, without specific square footage data for comparable properties, a precise price-per-square-foot analysis cannot be provided.
Therefore, we give this property 7 / 10. *Disclaimer: This is our option and does constitute a recommendation or financial advice. Do your own research. *
- Price
- 7
- Condition
- 8
- Location
- 8
- Land
- 7
- Bedrooms
- 4
- Bathrooms
- 3
- Sqft (est)
- 1,567.23
The heatmap indicates the level of crime in the area. The color of the heatmap indicates the crime severity and recency.
Metrics Year-on-Year
- Average area value
- 666,950.00 £Increased by 20.68 %
- Est sale value
- 1,111,166.07 £Increased by 27.98 %
- Average area rental value
- 1,565.00 £/moDecreased by 5.89 %
- Est letting value
- 1,567.23 £/moUnchanged by 0.00 %
- Est rental Yield
- 2.82 %Decreased by 21.88 %
- Crime Rate
- 7.00 %Unchanged by 0.00 %
Agent Activity
The Address created the listing.
Nearby Schools
| Name | Type | Ofsted | Distance |
|---|---|---|---|
| Balgowan Primary School | Academy Converter | Good | 0.44 KM |
| Eden Park High School | Free Schools | 0.72 KM | |
| Kings London | Other Independent School | Good | 0.90 KM |
| Churchfields Primary School | Academy Converter | 0.93 KM | |
| Marian Vian Primary School | Academy Converter | Good | 0.93 KM |
Images
Nearby Streets
| Name | Average Price | Average Sqft | Distance |
|---|---|---|---|
| Priory Close | £ 625,000 | 0 | 0.00 KM |
| Chaffinch Road | £ 700,000 | 0 | 0.00 KM |
| Uplands | £ 950,000 | 0 | 0.00 KM |
| Fontaime Court | £ 0 | 0 | 0.00 KM |
| Ash Tree Close | £ 725,000 | 0 | 0.00 KM |
Nearby Transport
| Name | NLC | TLC | Distance |
|---|---|---|---|
| Clock House | 5048 | CLK | 0.88 KM |
| Elmers End | 5049 | ELE | 1.11 KM |
| Kent House | 5080 | KTH | 1.42 KM |
| Birkbeck | 5401 | BIK | 1.80 KM |
| New Beckenham | 5058 | NBC | 1.86 KM |
Nearby Listings
| Address | Price | Type | Score | Distance |
|---|---|---|---|---|
| Croydon Road, Beckenham, BR3 | £ 650,000 | BUY | 7 / 10 | 0.00 KM |
| Dukes Court, 250 Croydon Road, Beckenham | £ 255,000 | BUY | 5 / 10 | 0.06 KM |
| Croydon Road, Beckenham, Kent, BR3 | £ 675,000 | BUY | Unknown | 0.07 KM |
| Croydon Road, Beckenham, BR3 | £ 250,000 | BUY | 6 / 10 | 0.07 KM |
| Croydon Road, Beckenham | £ 265,000 | BUY | 6 / 10 | 0.07 KM |
Nearby Properties
| Address | Price | Distance |
|---|---|---|
| 215 Croydon Road | £ 325,000 | 0.07 KM |
| 195 Croydon Road | £ 395,000 | 0.07 KM |
| 151a Croydon Road | £ 325,000 | 0.07 KM |
| 201 Croydon Road | £ 323,000 | 0.07 KM |
| 165 Croydon Road | £ 355,000 | 0.07 KM |