Corporation Road, Workington, CA14
By Lillingtons Estate Agents
£ 50,000
Reviews
2 out of 5 stars
Lillingtons Estate Agents says ..
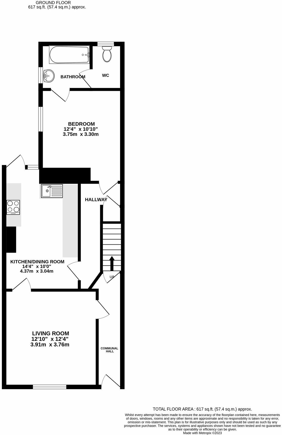
A spacious ground floor flat in a quiet position yet accessible to the town centre, which has been modernised and is available chain free. The property comprises of communal entrance hall with access to two flats, a spacious light and airy lounge, a modern fitted kitchen/dining room, plus a do...
Property Oracle says ..
This one-bedroom property located on Corporation Road in Workington, Cumbria offers a potentially affordable entry point into the UK housing market. Its proximity to Workington’s amenities, including transport links and schools rated as ‘Good’ or ‘Outstanding’ by Ofsted, makes it attractive to first-time buyers or investors. The interior appears generally well-maintained, although the fixtures and fittings in the kitchen and bathroom appear to be somewhat dated. The small rear yard offers a limited amount of outdoor space but would require some landscaping. The property’s list price is competitive compared to other one-bedroom properties in the same area, especially given the fact the property is listed as ‘chain free’. However, potential buyers should budget for some minor cosmetic upgrades and potential maintenance issues to the exterior brickwork. Overall, it represents a practical option in a convenient location, albeit with some room for improvement and limited outdoor space.
Therefore, we give this property 5 / 10. *Disclaimer: This is our option and does constitute a recommendation or financial advice. Do your own research. *
- Price
- 7
- Condition
- 6
- Location
- 7
- Land
- 2
- Bedrooms
- 1
- Bathrooms
- 1
- Sqft (est)
- 617.85
The heatmap indicates the level of crime in the area. The color of the heatmap indicates the crime severity and recency.
Metrics Year-on-Year
- Average area value
- 234,977.00 £Increased by 10.88 %
- Est sale value
- 181,647.90 £Increased by 28.95 %
- Average area rental value
- 1,065.00 £/moDecreased by 1.11 %
- Est letting value
- 617.85 £/moUnchanged by 0.00 %
- Est rental Yield
- 5.44 %Decreased by 10.82 %
- Crime Rate
- 13.00 %Unchanged by 0.00 %
Agent Activity
Lillingtons Estate Agents created the listing.
Nearby Schools
| Name | Type | Ofsted | Distance |
|---|---|---|---|
| Victoria Junior School | Community School | Good | 0.29 KM |
| St Michael'S Nursery And Infant School | Community School | Good | 0.45 KM |
| Victoria Infant And Nursery School | Community School | Outstanding | 0.52 KM |
| St Patrick'S Catholic Primary School | Voluntary Aided School | Good | 0.77 KM |
| St Josephs Catholic High School, Workington | Academy Converter | 1.21 KM |
Images
Nearby Streets
| Name | Average Price | Average Sqft | Distance |
|---|---|---|---|
| Princess Street | £ 0 | 0 | 0.00 KM |
| Queen Street | £ 0 | 0 | 0.00 KM |
| Canning Street | £ 0 | 0 | 0.00 KM |
| Brook Street | £ 0 | 0 | 0.00 KM |
| Darcy Street | £ 75,000 | 0 | 0.00 KM |
Nearby Transport
| Name | NLC | TLC | Distance |
|---|---|---|---|
| Workington | 2040 | WKG | 0.59 KM |
| Harrington | 2027 | HRR | 3.24 KM |
| Flimby | 2026 | FLM | 6.64 KM |
| Parton | 2032 | PRN | 8.32 KM |
Nearby Listings
| Address | Price | Type | Score | Distance |
|---|---|---|---|---|
| Corporation Road, Workington, CA14 | £ 50,000 | BUY | 5 / 10 | 0.00 KM |
| Corporation Road, Workington, CA14 2PN | £ 80,000 | BUY | Unknown | 0.01 KM |
| Corporation Road, Workington, CA14 | £ 45,000 | BUY | 5 / 10 | 0.03 KM |
| Corporation Road, Workington, CA14 | £ 130,000 | BUY | 6 / 10 | 0.03 KM |
| Napier Street, Workington, CA14 | £ 120,000 | BUY | 6 / 10 | 0.06 KM |
Nearby Properties
| Address | Price | Distance |
|---|---|---|
| 115 Corporation Road | £ 105,000 | 0.01 KM |
| 120 Corporation Road | £ 105,000 | 0.01 KM |
| 116 Corporation Road | £ 120,000 | 0.01 KM |
| 134 Corporation Road | £ 113,000 | 0.01 KM |
| 99 Corporation Road | £ 104,500 | 0.02 KM |