Jacobs Steel says ..
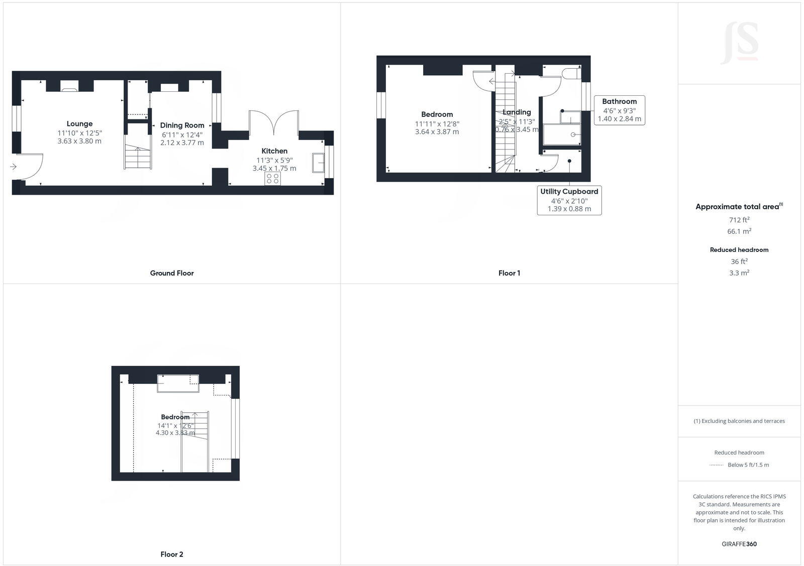
*** GUIDE PRICE £400,000 - £450,000 *** We are delighted to offer for sale this spacious extended two double bedroom mid terrace grade two listed cottage situated in this popular Shoreham Town Centre location benefitting with no onward chain.
Property Oracle says ..
This is a charming cottage located in Shoreham-By-Sea. The property features two bedrooms and two bathrooms, making it suitable for a small family or couple. The interior has been updated with a modern kitchen and bathrooms, while retaining some of its original character. The property benefits from a garden with a shed. While the property is in generally good condition, some areas may benefit from cosmetic improvements. The location is convenient, with easy access to local amenities, schools, and transportation. The price is reasonable for the area, making this a potentially attractive purchase.
Therefore, we give this property 6 / 10. *Disclaimer: This is our option and does constitute a recommendation or financial advice. Do your own research. *
- Price
- 7
- Condition
- 7
- Location
- 7
- Land
- 6
- Bedrooms
- 2
- Bathrooms
- 2
- Sqft (est)
- 330.45
The heatmap indicates the level of crime in the area. The color of the heatmap indicates the crime severity and recency.
Metrics Year-on-Year
- Average area value
- 524,714.00 £Increased by 15.54 %
- Est sale value
- 203,887.65 £Increased by 48.67 %
- Average area rental value
- 1,989.00 £/moIncreased by 4.74 %
- Est letting value
- 660.90 £/moIncreased by 100.00 %
- Est rental Yield
- 4.55 %Decreased by 9.36 %
- Crime Rate
- 53.00 %Unchanged by 0.00 %
Agent Activity
Jacobs Steel created the listing.
Nearby Schools
| Name | Type | Ofsted | Distance |
|---|---|---|---|
| Swiss Gardens Primary School | Community School | Good | 0.35 KM |
| Buckingham Park Primary School | Community School | Good | 1.01 KM |
| Shoreham Beach Primary School | Community School | Good | 1.29 KM |
| St Peter'S Catholic Primary School, Shoreham-By-Sea | Voluntary Aided School | Good | 1.69 KM |
| Kingston Buci Children & Family Centre | Children's Centre | 1.87 KM |
Images
Nearby Streets
| Name | Average Price | Average Sqft | Distance |
|---|---|---|---|
| High Street | £ 289,975 | 0 | 0.00 KM |
| John Street | £ 449,982 | 0 | 0.00 KM |
| Bridges Bank | £ 0 | 0 | 0.00 KM |
| St Mary's Road | £ 349,975 | 0 | 0.00 KM |
| Raleigh Close | £ 0 | 0 | 0.00 KM |
Nearby Transport
| Name | NLC | TLC | Distance |
|---|---|---|---|
| Shoreham-By-Sea | 5277 | SSE | 0.68 KM |
| Southwick | 5286 | SWK | 4.61 KM |
| Lancing | 5275 | LAC | 5.07 KM |
| Fishersgate | 5284 | FSG | 6.44 KM |
| Portslade | 5276 | PLD | 8.00 KM |
Nearby Listings
| Address | Price | Type | Score | Distance |
|---|---|---|---|---|
| West Street, Shoreham By Sea | £ 400,000 | BUY | 6 / 10 | 0.00 KM |
| West Street, Shoreham-By-Sea | £ 399,950 | BUY | 6 / 10 | 0.01 KM |
| West Street, Shoreham-By-Sea | £ 350,000 | BUY | Unknown | 0.01 KM |
| West Street, Shoreham-By-Sea | £ 450,000 | BUY | 5 / 10 | 0.01 KM |
| West Street, Shoreham-By-Sea | £ 350,000 | BUY | 6 / 10 | 0.01 KM |
Nearby Properties
| Address | Price | Distance |
|---|---|---|
| 80a High Street | £ 92,000 | 0.05 KM |
| 92a High Street | £ 140,000 | 0.07 KM |
| 14 Ship Street | £ 272,500 | 0.08 KM |
| 39 Ship Street | £ 242,500 | 0.08 KM |
| 31 Ship Street | £ 310,000 | 0.08 KM |